Jack Charles says ..
Jack Charles are delighted to offer for sale this three bedroom terrace house that has undergone complete modernisation and refurbishment by the present owners whom have restored its original charm and character. The property has had new wiring and provides elegant lighting in each room ...
Property Oracle says ..
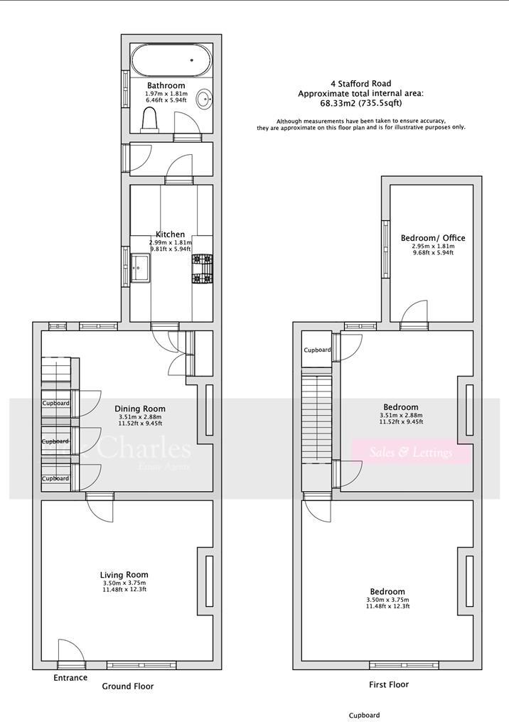
This is a three-bedroom terraced house on Stafford Road in Tonbridge, presented by Jack Charles estate agents. The property features a modern kitchen and bathroom, suggesting recent updates. It includes a small, low-maintenance rear garden. Located in the Castle locality, the house benefits from proximity to local schools and Tonbridge train station. While the property is in good condition, some areas could benefit from further modernisation. The asking price of £375,000 appears reasonable given the location and condition, aligning with similar properties in the area.
Therefore, we give this property 6 / 10. *Disclaimer: This is our option and does constitute a recommendation or financial advice. Do your own research. *
- Price
- 6
- Condition
- 7
- Location
- 7
- Land
- 4
- Bedrooms
- 3
- Bathrooms
- 1
The heatmap indicates the level of crime in the area. The color of the heatmap indicates the crime severity and recency.
Metrics Year-on-Year
- Average area value
- 273,747.00 £Decreased by 7.23 %
- Average area rental value
- 1,032.00 £/moDecreased by 0.77 %
- Est rental Yield
- 4.52 %Increased by 6.86 %
- Crime Rate
- 6.00 %Unchanged by 0.00 %
Agent Activity
Jack Charles created the listing.
Nearby Schools
| Name | Type | Ofsted | Distance |
|---|---|---|---|
| Slade Primary School And Attached Unit For Children With Hearing Impairment | Community School | Outstanding | 0.07 KM |
| Tonbridge School | Other Independent School | 0.38 KM | |
| South Tonbridge Children'S Centre | Children's Centre | 0.67 KM | |
| Hilden Grange School | Other Independent School | 0.67 KM | |
| Hilden Oaks Preparatory School And Nursery | Other Independent School | 0.67 KM |
Images
Nearby Streets
| Name | Average Price | Average Sqft | Distance |
|---|---|---|---|
| Stafford Road | £ 0 | 0 | 0.00 KM |
| The Avenue | £ 0 | 0 | 0.00 KM |
| Castle Street | £ 290,000 | 0 | 0.00 KM |
| High Street | £ 260,500 | 0 | 0.00 KM |
| Lyons Crescent | £ 330,357 | 0 | 0.00 KM |
Nearby Transport
| Name | NLC | TLC | Distance |
|---|---|---|---|
| Tonbridge | 5229 | TON | 0.81 KM |
| Hildenborough | 5236 | HLB | 5.25 KM |
| High Brooms | 5235 | HIB | 5.50 KM |
| Leigh (Kent) | 5294 | LIH | 6.86 KM |
| Tunbridge Wells | 5230 | TBW | 7.68 KM |
Nearby Listings
| Address | Price | Type | Score | Distance |
|---|---|---|---|---|
| Stafford Road, Tonbridge | £ 375,000 | BUY | 6 / 10 | 0.00 KM |
| Stafford Road, Tonbridge | £ 1,100,000 | BUY | 4 / 10 | 0.01 KM |
| Lodge Road, Tonbridge, Kent, TN9 | £ 375,000 | BUY | 6 / 10 | 0.06 KM |
| Havelock Road, Tonbridge, Kent, TN9 | £ 400,000 | BUY | 7 / 10 | 0.10 KM |
| Lodge Road, Tonbridge, Kent, TN9 | £ 400,000 | BUY | 6 / 10 | 0.11 KM |
Nearby Properties
| Address | Price | Distance |
|---|---|---|
| 10 Stafford Road | £ 425,000 | 0.01 KM |
| 13 Stafford Road | £ 325,000 | 0.01 KM |
| 2 Stafford Road | £ 295,000 | 0.01 KM |
| 28 Lodge Road | £ 192,500 | 0.05 KM |
| 37 Lodge Road | £ 305,000 | 0.05 KM |