Selborne Terrace, Shipley, West Yorkshire, BD18
By YOUR MOVE Roebuck Residential Ltd
£ 230,000
Reviews
2 out of 5 stars
YOUR MOVE Roebuck Residential Ltd says ..
** Unexpectedly back on market ** Viewing is highly recommended to fully appreciate this well presented mid terrace property situated in this popular location close to excellent local amenities and within walking distance of Shipley train station offering excellent commuter access to Leeds...
Property Oracle says ..
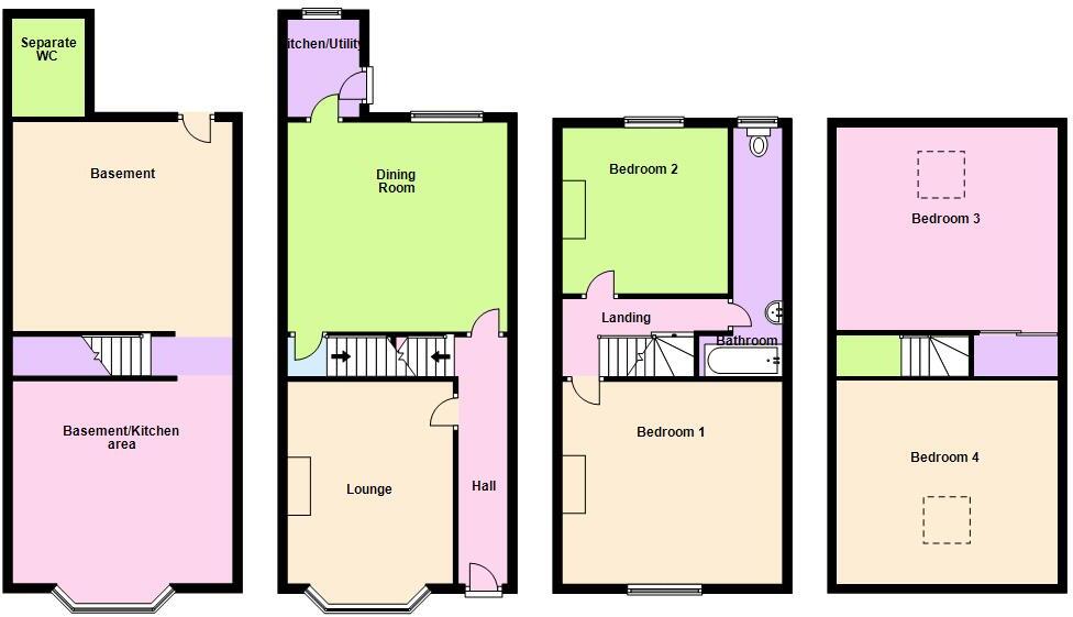
This is a four-bedroom terraced house in Shipley, West Yorkshire, listed for £230,000. The property boasts a substantial 1,601 sqft of living space. While the house benefits from its proximity to local schools and transportation, it requires renovation, particularly in the kitchen and bathroom. The property includes a small garden. Considering the average property price in Shipley and the square footage offered, the asking price represents reasonable value, making it an attractive opportunity for buyers willing to invest in refurbishment.
Therefore, we give this property 5 / 10. *Disclaimer: This is our option and does constitute a recommendation or financial advice. Do your own research. *
- Price
- 7
- Condition
- 4
- Location
- 7
- Land
- 3
- Bedrooms
- 4
- Bathrooms
- 1
- Sqft (est)
- 1,601.00
The heatmap indicates the level of crime in the area. The color of the heatmap indicates the crime severity and recency.
Metrics Year-on-Year
- Average area value
- 256,364.00 £Increased by 21.19 %
- Est sale value
- 446,679.00 £Increased by 30.37 %
- Average area rental value
- 934.00 £/moIncreased by 31.00 %
- Est letting value
- 1,601.00 £/mo
- Est rental Yield
- 4.37 %Increased by 8.17 %
- Crime Rate
- 4.00 %Unchanged by 0.00 %
Agent Activity
YOUR MOVE Roebuck Residential Ltd created the listing.
Nearby Schools
| Name | Type | Ofsted | Distance |
|---|---|---|---|
| Shipley Cofe Primary School | Academy Sponsor Led | 0.14 KM | |
| High Crags Primary Leadership Academy | Academy Sponsor Led | Good | 1.03 KM |
| Wycliffe Cofe Primary School | Academy Sponsor Led | 1.05 KM | |
| St Walburga'S Catholic Primary School, A Voluntary Academy | Academy Converter | Good | 1.10 KM |
| Bradford Alternative Provision Academy | Academy Alternative Provision Converter | 1.11 KM |
Images
Nearby Streets
| Name | Average Price | Average Sqft | Distance |
|---|---|---|---|
| Well Croft | £ 69,125 | 0 | 0.00 KM |
| Grange Terrace | £ 160,000 | 0 | 0.00 KM |
| Charles Court | £ 234,950 | 0 | 0.00 KM |
| Croft Street | £ 0 | 0 | 0.00 KM |
| Ashfield Avenue | £ 260,000 | 0 | 0.00 KM |
Nearby Transport
| Name | NLC | TLC | Distance |
|---|---|---|---|
| Shipley (Yorks) | 8347 | SHY | 0.89 KM |
| Frizinghall | 8556 | FZH | 1.56 KM |
| Saltaire | 8561 | SAE | 1.56 KM |
| Baildon | 8552 | BLD | 3.79 KM |
| Bradford Forster Square | 8346 | BDQ | 4.65 KM |
Nearby Listings
| Address | Price | Type | Score | Distance |
|---|---|---|---|---|
| Selborne Terrace, Shipley, West Yorkshire, BD18 | £ 230,000 | BUY | 5 / 10 | 0.00 KM |
| Otley Road, Shipley | £ 245,000 | BUY | 4 / 10 | 0.10 KM |
| Birklands Road, Shipley | £ 240,000 | BUY | 7 / 10 | 0.10 KM |
| Birklands Road, Shipley, West Yorkshire, BD18 | £ 235,000 | BUY | Unknown | 0.11 KM |
| Hall Royd, Shipley, BD18 | £ 210,000 | BUY | 4 / 10 | 0.18 KM |
Nearby Properties
| Address | Price | Distance |
|---|---|---|
| 20 Selborne Terrace | £ 120,000 | 0.02 KM |
| 22 Selborne Terrace | £ 190,000 | 0.02 KM |
| 19 Selborne Terrace | £ 110,000 | 0.02 KM |
| 15 Selborne Terrace | £ 118,000 | 0.02 KM |
| 17 Selborne Terrace | £ 96,000 | 0.02 KM |