Norwich Road, Ipswich, IP1
By Marks & Mann Estate Agents Ltd
£ 300,000
Reviews
3 out of 5 stars
Marks & Mann Estate Agents Ltd says ..
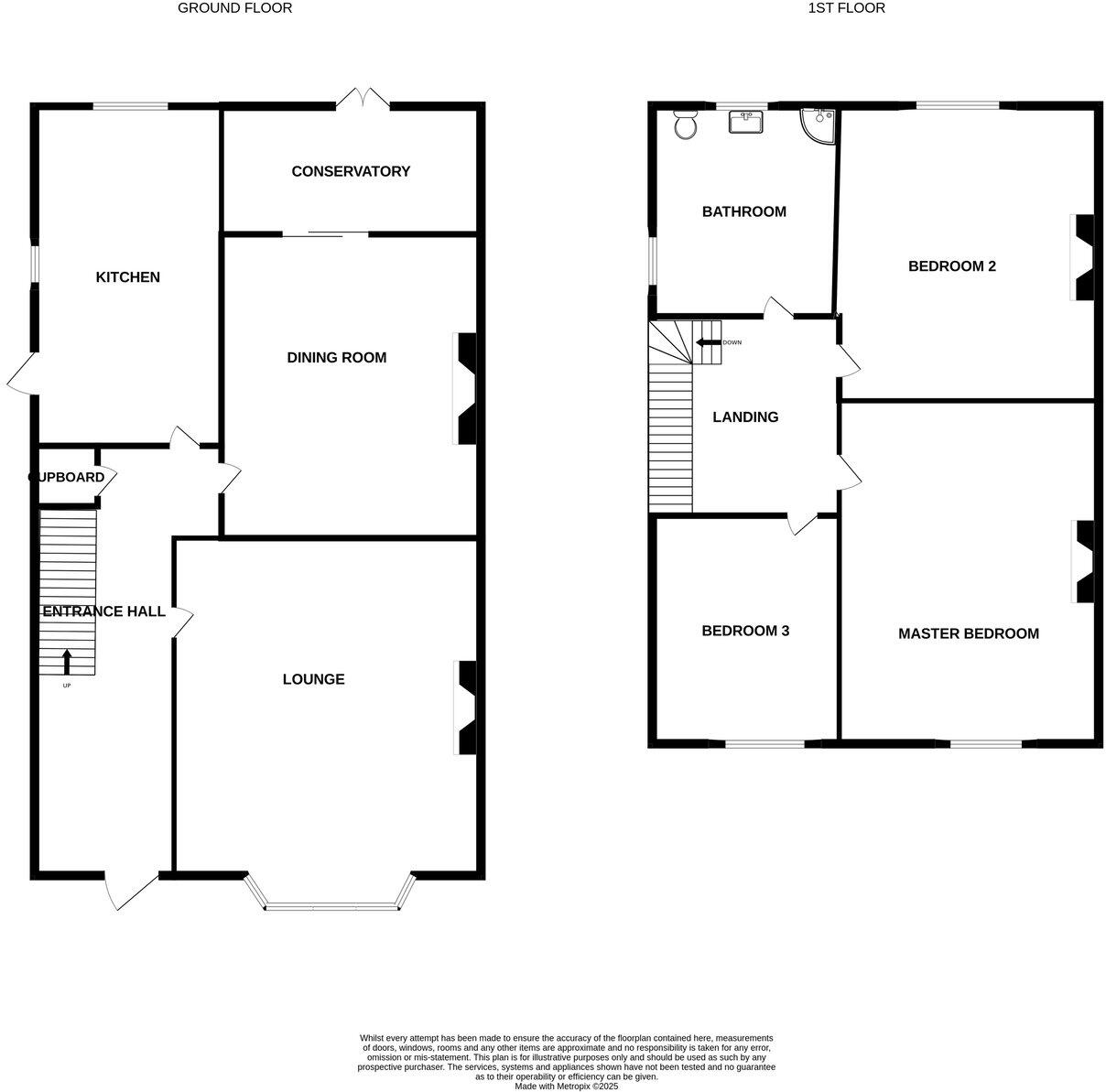
We are pleased to be marketing this well kept and well presented three bedroom semi-detached home in the west of Ipswich. The property is in an ideal location close to amenities and gives easy access to A12/A14.Internally the property benefits from, on the ground floor: Entrance hall, l...
Property Oracle says ..
This semi-detached property on Norwich Road in Ipswich presents a blend of potential and convenience. Its location offers good access to schools and transportation, making it suitable for families and commuters. While the property requires some renovation to modernize its interior, it features a generously sized garden, adding significant value. The asking price of £300,000 appears fair, considering the property’s size, location, and the scope for improvement. Overall, this property offers a solid foundation for creating a comfortable and stylish home.
Therefore, we give this property 6 / 10. *Disclaimer: This is our option and does constitute a recommendation or financial advice. Do your own research. *
- Price
- 7
- Condition
- 5
- Location
- 7
- Land
- 8
- Bedrooms
- 3
- Bathrooms
- 1
- Sqft (est)
- 1,168.00
The heatmap indicates the level of crime in the area. The color of the heatmap indicates the crime severity and recency.
Metrics Year-on-Year
- Average area value
- 275,000.00 £Decreased by 9.87 %
- Est sale value
- 344,560.00 £Decreased by 8.67 %
- Average area rental value
- 1,300.00 £/moIncreased by 27.45 %
- Est letting value
- 1,168.00 £/moUnchanged by 0.00 %
- Est rental Yield
- 5.67 %Increased by 41.40 %
- Crime Rate
- 5.00 %Unchanged by 0.00 %
Agent Activity
Marks & Mann Estate Agents Ltd created the listing.
Nearby Schools
| Name | Type | Ofsted | Distance |
|---|---|---|---|
| The Beeches Community Primary School | Academy Converter | Good | 0.52 KM |
| Thomas Wolsey Ormiston Academy | Academy Special Converter | Outstanding | 0.57 KM |
| Highfield Children'S Centre | Children's Centre | 0.61 KM | |
| St Pancras Catholic Primary School | Academy Converter | 0.63 KM | |
| Westbourne Academy | Academy Converter | Good | 0.66 KM |
Images
Nearby Streets
| Name | Average Price | Average Sqft | Distance |
|---|---|---|---|
| Meredith Road | £ 0 | 0 | 0.00 KM |
| Stratford Road | £ 245,000 | 0 | 0.00 KM |
| Charlton Avenue | £ 315,000 | 0 | 0.00 KM |
| Tyrone Close | £ 0 | 0 | 0.00 KM |
| Blake Road | £ 0 | 0 | 0.00 KM |
Nearby Transport
| Name | NLC | TLC | Distance |
|---|---|---|---|
| Ipswich | 7217 | IPS | 3.54 KM |
| Westerfield | 7226 | WFI | 4.38 KM |
| Derby Road (Ipswich) | 7212 | DBR | 6.87 KM |
Nearby Listings
| Address | Price | Type | Score | Distance |
|---|---|---|---|---|
| Norwich Road, Ipswich, IP1 | £ 300,000 | BUY | 6 / 10 | 0.00 KM |
| Norwich Road, Ipswich, IP1 | £ 260,000 | BUY | 6 / 10 | 0.00 KM |
| Norwich Road, Ipswich, Suffolk, IP1 | £ 285,000 | BUY | 7 / 10 | 0.01 KM |
| Norwich Road, Ipswich | £ 300,000 | BUY | 6 / 10 | 0.01 KM |
| Norwich Road, Ipswich | £ 320,000 | BUY | 8 / 10 | 0.04 KM |
Nearby Properties
| Address | Price | Distance |
|---|---|---|
| 597 Norwich Road | £ 78,500 | 0.01 KM |
| 581 Norwich Road | £ 238,000 | 0.01 KM |
| 565 Norwich Road | £ 195,000 | 0.01 KM |
| 599 Norwich Road | £ 280,500 | 0.01 KM |
| 559 Norwich Road | £ 168,500 | 0.01 KM |