Sears Property says ..
**NO ONWARD CHAIN** A Stunning Two Bedroom Apartment in the Highly Sought-After Drey House Development
Property Oracle says ..
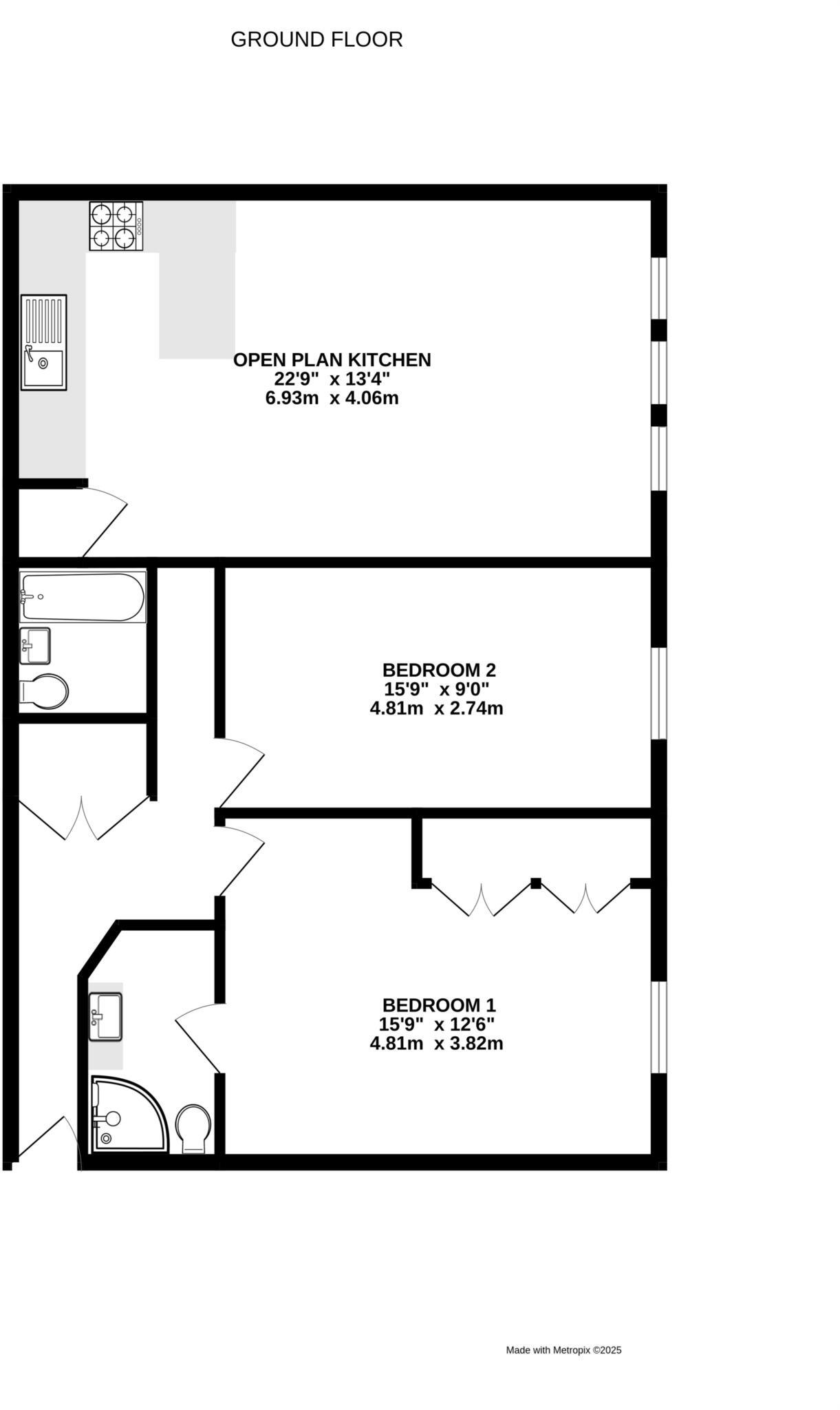
This is a two-bedroom apartment in Emmbrook, Wokingham. The property is in a good location, close to schools and transport links. The condition is reasonable, but the property could benefit from some modernisation. The asking price of £300,000 seems reasonable for the area and property type. The property benefits from communal grounds.
Therefore, we give this property 5 / 10. *Disclaimer: This is our option and does constitute a recommendation or financial advice. Do your own research. *
- Price
- 7
- Condition
- 6
- Location
- 7
- Land
- 3
- Bedrooms
- 2
- Bathrooms
- 1
- Sqft (est)
- 642.39
The heatmap indicates the level of crime in the area. The color of the heatmap indicates the crime severity and recency.
Metrics Year-on-Year
- Average area value
- 396,500.00 £Decreased by 15.78 %
- Est sale value
- 314,771.10 £Decreased by 18.74 %
- Average area rental value
- 2,064.00 £/moIncreased by 24.26 %
- Est letting value
- 1,284.78 £/moUnchanged by 0.00 %
- Est rental Yield
- 6.25 %Increased by 47.75 %
- Crime Rate
- 10.00 %Unchanged by 0.00 %
Agent Activity
Sears Property created the listing.
Nearby Schools
| Name | Type | Ofsted | Distance |
|---|---|---|---|
| Windmill Primary School | Academy Sponsor Led | Good | 0.49 KM |
| The Emmbrook School | Academy Converter | 0.51 KM | |
| Emmbrook Infant School | Community School | Outstanding | 0.65 KM |
| Emmbrook Junior School | Community School | Requires improvement | 0.65 KM |
| The Hawthorns Primary School | Community School | Good | 0.84 KM |
Images
Nearby Streets
| Name | Average Price | Average Sqft | Distance |
|---|---|---|---|
| A329 | £ 0 | 0 | 0.00 KM |
| Chestnut Court | £ 375,000 | 0 | 0.00 KM |
| Rotherfield Avenue | £ 675,000 | 0 | 0.00 KM |
| Ferndale Crescent | £ 0 | 0 | 0.00 KM |
| Windmill Close | £ 835,000 | 0 | 0.00 KM |
Nearby Transport
| Name | NLC | TLC | Distance |
|---|---|---|---|
| Wokingham | 5696 | WKM | 1.53 KM |
| Winnersh | 5697 | WNS | 2.81 KM |
| Winnersh Triangle | 5698 | WTI | 4.57 KM |
| Twyford | 3155 | TWY | 6.46 KM |
| Crowthorne | 5628 | CRN | 6.93 KM |
Nearby Listings
| Address | Price | Type | Score | Distance |
|---|---|---|---|---|
| Squirrel Walk, Wokingham | £ 300,000 | BUY | 5 / 10 | 0.00 KM |
| Squirrel Walk, Wokingham, RG41 | £ 300,000 | BUY | 5 / 10 | 0.00 KM |
| Squirrel Walk, Wokingham, RG41 | £ 300,000 | BUY | 6 / 10 | 0.00 KM |
| Drey House, Squirrel Walk, Wokingham, Berkshire, RG41 3AA | £ 275,000 | BUY | 6 / 10 | 0.07 KM |
| Copper Beach Place, 130 Reading Road, RG41 | £ 295,000 | BUY | Unknown | 0.08 KM |
Nearby Properties
| Address | Price | Distance |
|---|---|---|
| 130 Reading Road | £ 361,000 | 0.09 KM |
| 5 Westward Road | £ 335,000 | 0.14 KM |
| 8 Westward Road | £ 570,000 | 0.14 KM |
| 4 Westward Road | £ 788,000 | 0.14 KM |
| 14 Westward Road | £ 467,500 | 0.14 KM |