The Old Orchard, Payhembury
By Urpad Devon Ltd
£ 920,000
Reviews
4 out of 5 stars
Urpad Devon Ltd says ..
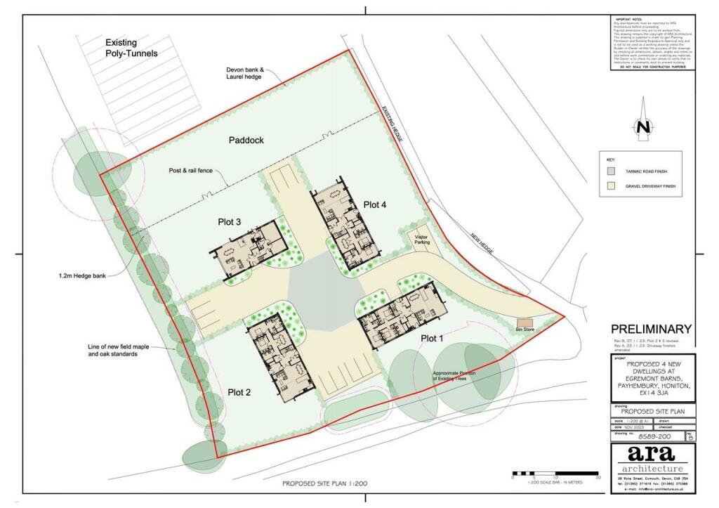
A unique private courtyard development. Offering 4 (only 3 left) bespoke 4 bedroom detached eco homes: a modern 4 bed country house and 3, 4 bed modern barns. All sitting in large plots offering the perfect balance between luxury and sustainability. Externals finished in natural wood and sto (cont.)
Property Oracle says ..
The property is a detached house located in Payhembury, East Devon. The list price is £920,000. Nearby similar properties range from £750,000 to £900,000. The average price for properties in the area is £642,500, with an average price per square foot of £452. The images show a modern, newly constructed property with a patio area and what appears to be a sizeable garden or paddock. The plot size is not specified, but the site plan indicates a relatively large plot. The property appears to be in excellent condition, as it is newly built. The location is within reasonable proximity to Payhembury Church of England Primary School (rated ‘Good’ by Ofsted) and other schools. Transportation links are available via South Western Railway stations at Feniton and Whimple, although the distances are several kilometers. Given the modern construction, the apparent size of the property and land, and the comparable prices of nearby properties, the list price of £920,000 appears to be within the range of market value for similar properties in the area. However, without knowing the square footage of the property, a definitive assessment of price per square foot and overall value is impossible.
Therefore, we give this property 8 / 10. *Disclaimer: This is our option and does constitute a recommendation or financial advice. Do your own research. *
- Price
- 7
- Condition
- 10
- Location
- 7
- Land
- 8
- Bedrooms
- 4
- Bathrooms
- 4
The heatmap indicates the level of crime in the area. The color of the heatmap indicates the crime severity and recency.
Metrics Year-on-Year
- Average area value
- 622,500.00 £Decreased by 32.15 %
- Average area rental value
- 1,150.00 £/moDecreased by 16.79 %
- Est rental Yield
- 2.22 %Increased by 22.65 %
- Crime Rate
- 0.00 %
Agent Activity
Urpad Devon Ltd created the listing.
Nearby Schools
| Name | Type | Ofsted | Distance |
|---|---|---|---|
| Payhembury Church Of England Primary School | Voluntary Controlled School | Good | 1.93 KM |
| Broadhembury Church Of England Primary School | Voluntary Controlled School | Good | 3.29 KM |
| The Wildings | Other Independent Special School | 3.81 KM | |
| Plymtree Church Of England Primary School | Voluntary Controlled School | Good | 4.51 KM |
| K-Hq | Other Independent Special School | Good | 4.63 KM |
Images
Nearby Streets
| Name | Average Price | Average Sqft | Distance |
|---|---|---|---|
| Colliton Barton Cottages | £ 0 | 0 | 0.00 KM |
| Colliton Cross | £ 0 | 0 | 0.00 KM |
| Raymonds | £ 895,000 | 0 | 0.00 KM |
Nearby Transport
| Name | NLC | TLC | Distance |
|---|---|---|---|
| Feniton | 5808 | FNT | 4.56 KM |
| Whimple | 5759 | WHM | 8.23 KM |
Nearby Listings
| Address | Price | Type | Score | Distance |
|---|---|---|---|---|
| The Old Orchard, Payhembury | £ 920,000 | BUY | 8 / 10 | 0.00 KM |
| Payhembury, Honiton, Devon | £ 800,000 | BUY | 7 / 10 | 0.12 KM |
| Payhembury, Honiton, Devon, EX14 | £ 750,000 | BUY | 7 / 10 | 0.48 KM |
| Payhembury, Honiton, Devon | £ 1,250,000 | BUY | 7 / 10 | 0.54 KM |
| Payhembury, Honiton | £ 850,000 | BUY | 8 / 10 | 0.55 KM |
Nearby Properties
| Address | Price | Distance |
|---|---|---|
| Avalon | £ 65,500 | 1.76 KM |
| Jasperry | £ 370,000 | 1.76 KM |
| The Old Forge | £ 246,500 | 1.76 KM |
| Little Fort | £ 487,500 | 1.76 KM |
| Oaklands | £ 530,000 | 1.79 KM |