Rosegate House, 3 Hereford Road, Bow, London, E3
By Keatons
£ 340,000
Reviews
3 out of 5 stars
Keatons says ..
Delightful modern apartment situated on the first floor of this secure gated development, which is set back away from the hustle and bustle. This wonderful property offers a central location to the vibrant Roman Road Market and the open spaces of Victoria Park and fabulous local amenities. Compri...
Property Oracle says ..
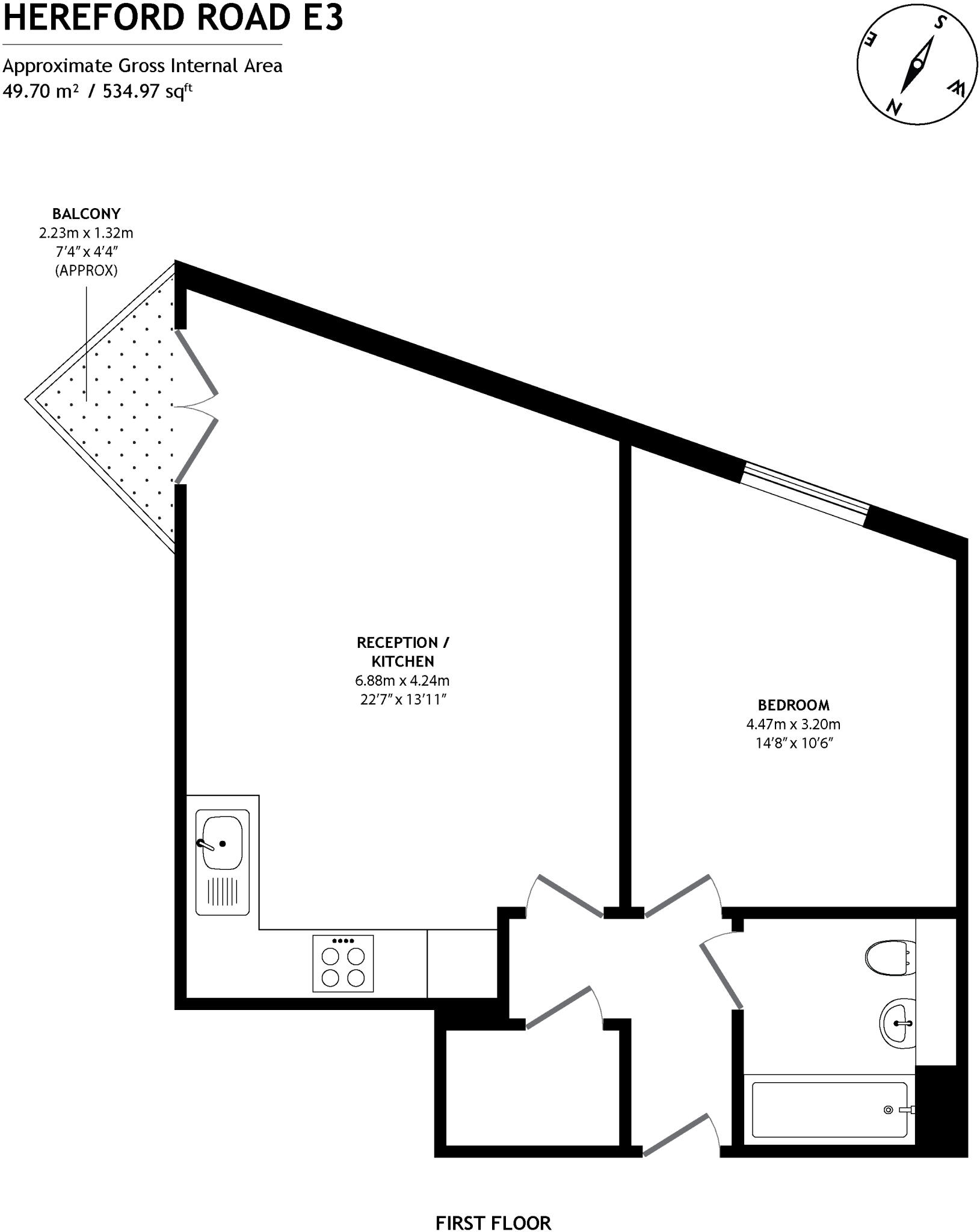
Rosegate House, 3 Hereford Road, Bow, London, E3 is a one-bedroom, one-bathroom flat with a total area of 530 sqft and a plot size of 534.97 sqft. The property is located in Bow East, Tower Hamlets, and benefits from its proximity to several primary schools and transportation links. Based on the provided images, the property appears to be in good condition, with a modern interior and well-maintained exterior. The property includes a small balcony. Considering the list price of £340,000, the average price in the area is £491,819, and the average price per sqft is £664. This property is listed at a lower price than the average for the area, and at approximately £641.51 per sqft, which is less than the average price per sqft. However, the smaller size of the property and the limited outdoor space should be considered when evaluating the price. Further investigation into comparable properties in the immediate vicinity would be required to determine if the list price represents good value.
Therefore, we give this property 6 / 10. *Disclaimer: This is our option and does constitute a recommendation or financial advice. Do your own research. *
- Price
- 8
- Condition
- 9
- Location
- 7
- Land
- 3
- Bedrooms
- 1
- Bathrooms
- 1
- Sqft (est)
- 530.00
- Lot (est)
- 534.97
The heatmap indicates the level of crime in the area. The color of the heatmap indicates the crime severity and recency.
Metrics Year-on-Year
- Average area value
- 501,607.00 £Increased by 8.54 %
- Est sale value
- 395,380.00 £Increased by 29.97 %
- Average area rental value
- 2,290.00 £/moDecreased by 0.87 %
- Est letting value
- 1,590.00 £/moIncreased by 50.00 %
- Est rental Yield
- 5.48 %Decreased by 8.67 %
- Crime Rate
- 3.00 %Unchanged by 0.00 %
Agent Activity
Keatons created the listing.
Nearby Schools
| Name | Type | Ofsted | Distance |
|---|---|---|---|
| Malmesbury Primary School | Community School | Good | 0.27 KM |
| Phoenix Autism Trust | Special Post 16 Institution | 0.29 KM | |
| Central Foundation Girls' School | Voluntary Aided School | Good | 0.29 KM |
| Phoenix School | Community Special School | Outstanding | 0.33 KM |
| Overland Children'S Centre | Children's Centre | 0.50 KM |
Images
Nearby Streets
| Name | Average Price | Average Sqft | Distance |
|---|---|---|---|
| Balmer Road | £ 0 | 0 | 0.00 KM |
| Malmesbury Road | £ 475,000 | 0 | 0.00 KM |
| Coborn Mews | £ 0 | 0 | 0.00 KM |
| Ewart Place | £ 280,000 | 0 | 0.00 KM |
| Matching Court | £ 0 | 0 | 0.00 KM |
Nearby Transport
| Name | NLC | TLC | Distance |
|---|---|---|---|
| Hackney Wick | 6978 | HKW | 1.54 KM |
| Limehouse | 7491 | LHS | 2.32 KM |
| Homerton | 6979 | HMN | 2.45 KM |
| Stratford International | 7222 | SFA | 2.72 KM |
| Stratford | 6969 | SRA | 3.06 KM |
Nearby Listings
| Address | Price | Type | Score | Distance |
|---|---|---|---|---|
| Hereford Road, London | £ 325,000 | BUY | 6 / 10 | 0.00 KM |
| Rosegate House, 3 Hereford Road, Bow, London, E3 | £ 340,000 | BUY | 6 / 10 | 0.00 KM |
| Rosegate House, Bow, London | £ 395,000 | BUY | 7 / 10 | 0.00 KM |
| Hereford Road, London, E3 | £ 325,000 | BUY | 6 / 10 | 0.01 KM |
| Carlile Close, E3, Bow, London, E3 | £ 875,000 | BUY | 7 / 10 | 0.03 KM |
Nearby Properties
| Address | Price | Distance |
|---|---|---|
| 13 Hereford Road | £ 346,000 | 0.05 KM |
| 16 Hereford Road | £ 375,000 | 0.05 KM |
| 7 Hereford Road | £ 730,000 | 0.05 KM |
| 12 Hereford Road | £ 500,000 | 0.05 KM |
| 4 Hereford Road | £ 367,500 | 0.05 KM |