BR
Station Road, Frimley, Camberley, Surrey, GU16
By Bridges Estate Agents
£ 675,000
Reviews
4 out of 5 stars
Bridges Estate Agents says ..
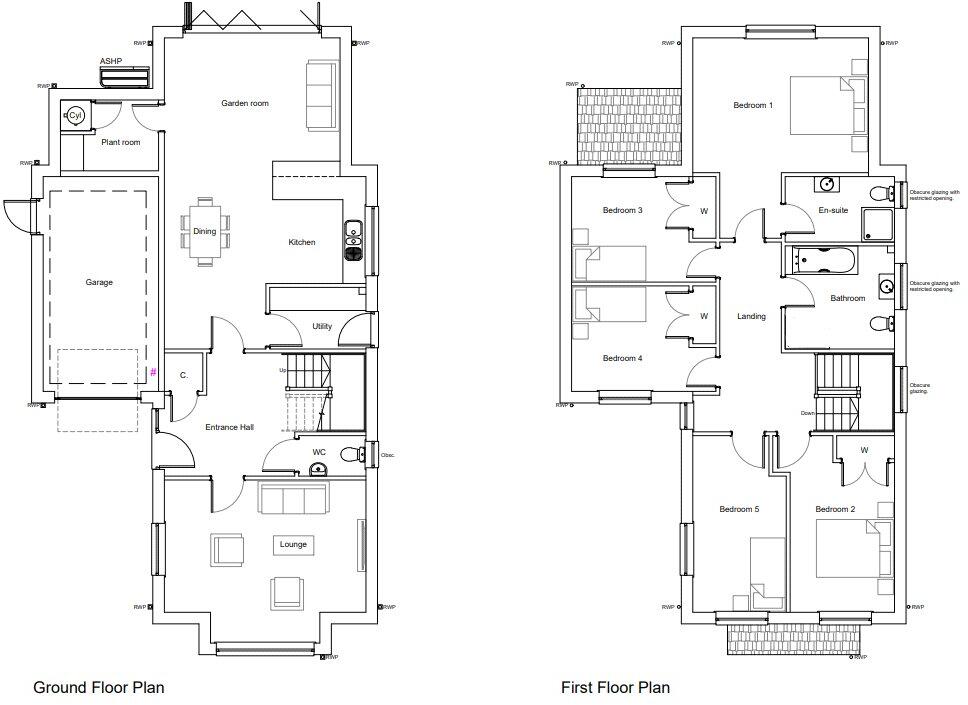
A deceptively spacious and beautifully appointed brand new five bedroom detached home, built to a meticulous standard by a respected local developer. Offering generous, well proportioned accommodation throughout, an internal viewing is highly recommended to fully appreciate all that this home has...
Property Oracle says ..
Therefore, we give this property 8 / 10. *Disclaimer: This is our option and does constitute a recommendation or financial advice. Do your own research. *
- Price
- 8
- Condition
- 9
- Location
- 8
- Land
- 7
- Bedrooms
- 5
- Bathrooms
- 2
- Sqft (est)
- 1,748.00
The heatmap indicates the level of crime in the area. The color of the heatmap indicates the crime severity and recency.
Metrics Year-on-Year
- Average area value
- 362,500.00 £Decreased by 23.04 %
- Est sale value
- 711,436.00 £Increased by 10.00 %
- Average area rental value
- 2,625.00 £/moIncreased by 52.17 %
- Est letting value
- 3,496.00 £/moIncreased by 100.00 %
- Est rental Yield
- 8.69 %Increased by 97.95 %
- Crime Rate
- 6.00 %Unchanged by 0.00 %
from 471,043.00 £
from 646,760.00 £
from 1,725.00 £/mo
from 1,748.00 £/mo
from 4.39 %
from 6.00 %
Agent Activity
Bridges Estate Agents created the listing.
Nearby Schools
| Name | Type | Ofsted | Distance |
|---|---|---|---|
| Kings International College | Foundation School | Good | 1.02 KM |
| The Orchard Sure Start Children'S Centre | Children's Centre | 1.14 KM | |
| South Camberley Primary And Nursery School | Academy Converter | 1.20 KM | |
| Henry Tyndale School | Community Special School | Outstanding | 1.33 KM |
| The Sixth Form College Farnborough | Academy 16-19 Converter | Outstanding | 1.36 KM |
Images
Nearby Streets
| Name | Average Price | Average Sqft | Distance |
|---|---|---|---|
| Footpath 197 | £ 0 | 0 | 0.00 KM |
| Gilbert Road Footpath | £ 0 | 0 | 0.00 KM |
| Portsmouth Road | £ 562,500 | 0 | 0.00 KM |
| Woodside | £ 0 | 0 | 0.00 KM |
| The Grove | £ 0 | 0 | 0.00 KM |
Nearby Transport
| Name | NLC | TLC | Distance |
|---|---|---|---|
| Frimley | 5683 | FML | 0.22 KM |
| Farnborough North | 5688 | FNN | 1.40 KM |
| Farnborough (Main) | 5521 | FNB | 2.11 KM |
| Camberley | 5682 | CAM | 2.54 KM |
| Blackwater | 5625 | BAW | 3.79 KM |
Nearby Listings
| Address | Price | Type | Score | Distance |
|---|---|---|---|---|
| Station Road, Frimley, Camberley, Surrey, GU16 | £ 675,000 | BUY | 8 / 10 | 0.00 KM |
| Station Road, Frimley, Camberley, Surrey, GU16 | £ 850,000 | BUY | 6 / 10 | 0.08 KM |
| The Close, Frimley, GU16 | £ 525,000 | BUY | 6 / 10 | 0.09 KM |
| The Close, Frimley, Camberley, Surrey, GU16 | £ 525,000 | BUY | 7 / 10 | 0.14 KM |
| Station Road, Frimley, Camberley, Surrey, GU16 | £ 200,000 | BUY | 7 / 10 | 0.18 KM |
Nearby Properties
| Address | Price | Distance |
|---|---|---|
| 52 Station Road | £ 460,000 | 0.08 KM |
| 16 Station Road | £ 455,000 | 0.08 KM |
| 44 Station Road | £ 301,000 | 0.08 KM |
| 12 Station Road | £ 240,000 | 0.08 KM |
| 6 Station Road | £ 225,000 | 0.08 KM |