Thomas Street, Wigan
By Addisons Estate and Letting Agent
£ 160,000
Reviews
3 out of 5 stars
Addisons Estate and Letting Agent says ..
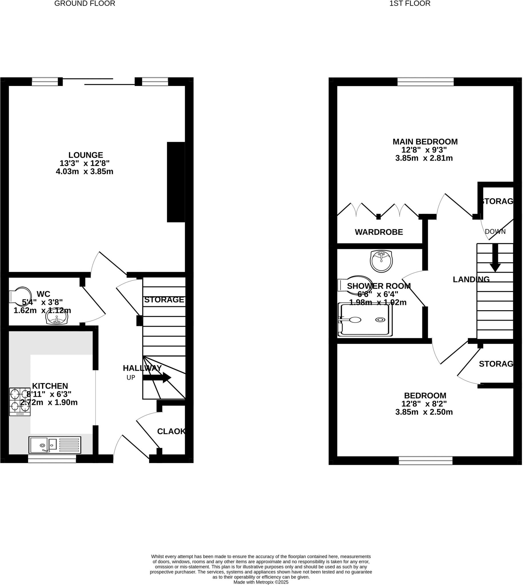
This beautifully presented modern mid town house would make a great first time buyers home! Situated close to the wide range of amenities in Newtown and just a stones throw from Robin Park, you'll never be short of things to do here with shops, supermarkets, restaurants, gyms and a cinema al...
Property Oracle says ..
This two bedroom terraced property is located in Wigan, Greater Manchester. The property benefits from being close to local schools and transport links, with Wigan North Western train station approximately 2.15km away. The property itself appears to be in excellent condition, having been recently modernised. It includes a small, enclosed rear garden. While the plot size is small, the property is well-maintained and presented, suggesting that the asking price of £160,000 is reasonable in comparison to the local average price of £144,205 and average price per sqft of £161.00. However, more information on the property size would be needed to confirm this.
Therefore, we give this property 6 / 10. *Disclaimer: This is our option and does constitute a recommendation or financial advice. Do your own research. *
- Price
- 7
- Condition
- 9
- Location
- 7
- Land
- 4
- Bedrooms
- 2
- Bathrooms
- 1
- Sqft (est)
- 859.23
The heatmap indicates the level of crime in the area. The color of the heatmap indicates the crime severity and recency.
Metrics Year-on-Year
- Average area value
- 161,000.00 £Increased by 21.76 %
- Est sale value
- 174,423.69 £Increased by 46.04 %
- Average area rental value
- 820.00 £/moIncreased by 8.04 %
- Est letting value
- 859.23 £/mo
- Est rental Yield
- 6.11 %Decreased by 11.32 %
- Crime Rate
- 2.00 %Unchanged by 0.00 %
Agent Activity
Addisons Estate and Letting Agent marked this listing as sold.
Addisons Estate and Letting Agent created the listing.
Nearby Schools
| Name | Type | Ofsted | Distance |
|---|---|---|---|
| St Mark'S Cofe Primary School | Academy Sponsor Led | Requires improvement | 0.45 KM |
| Expanse Learning Wigan School | Other Independent Special School | Requires improvement | 0.91 KM |
| St James' Church Of England Primary School | Academy Converter | 0.99 KM | |
| St Jude'S Catholic Primary School Wigan | Voluntary Aided School | Requires improvement | 1.04 KM |
| Wigan St Andrew'S Cofe Junior And Infant School | Voluntary Aided School | Good | 1.32 KM |
Images
Nearby Streets
| Name | Average Price | Average Sqft | Distance |
|---|---|---|---|
| Wood Street | £ 0 | 0 | 0.00 KM |
| Harrison Street | £ 0 | 0 | 0.00 KM |
| Alexandra Street | £ 0 | 0 | 0.00 KM |
| Saddle Junction | £ 0 | 0 | 0.00 KM |
| St Mark's Avenue | £ 200,000 | 0 | 0.00 KM |
Nearby Transport
| Name | NLC | TLC | Distance |
|---|---|---|---|
| Wigan North Western | 2363 | WGN | 2.15 KM |
| Wigan Wallgate | 2406 | WGW | 2.18 KM |
| Pemberton | 2403 | PEM | 2.33 KM |
| Ince (Manchester) | 2236 | INC | 4.56 KM |
| Bryn | 2222 | BYN | 4.69 KM |
Nearby Listings
| Address | Price | Type | Score | Distance |
|---|---|---|---|---|
| Thomas Street, Wigan | £ 160,000 | BUY | 6 / 10 | 0.00 KM |
| Thomas Street, Wigan, WN5 | £ 240,000 | BUY | 7 / 10 | 0.06 KM |
| Thomas Street, Wigan, WN5 | £ 180,000 | BUY | 6 / 10 | 0.07 KM |
| Kidd Close, Wigan, WN5 | £ 325,000 | BUY | Unknown | 0.10 KM |
| Thomas More Gardens, Newtown, WN5 0AP | £ 300,000 | BUY | 6 / 10 | 0.17 KM |
Nearby Properties
| Address | Price | Distance |
|---|---|---|
| 46 Thomas Street | £ 91,000 | 0.01 KM |
| 32 Thomas Street | £ 171,995 | 0.01 KM |
| 6 Satchel Close | £ 162,995 | 0.02 KM |
| 4 Kidd Close | £ 174,995 | 0.07 KM |
| 18 Wood Street | £ 146,000 | 0.10 KM |