Manning Stainton says ..
EXTENDED two bed semi on a CORNER PLOT!
Property Oracle says ..
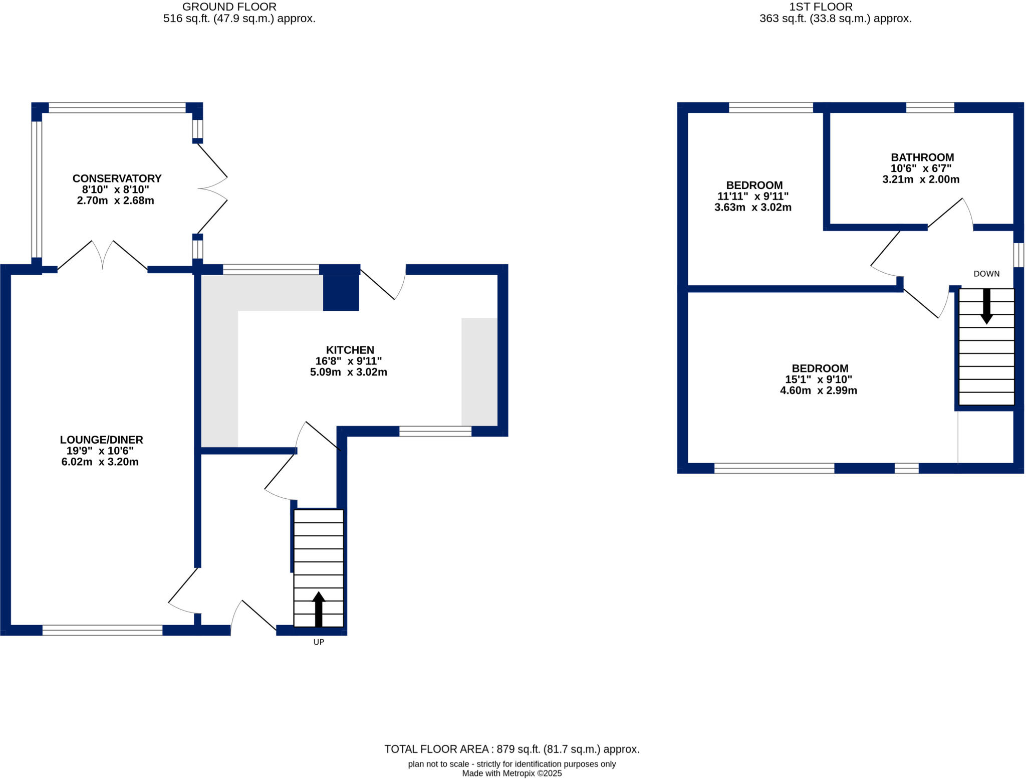
This is a small, two-bedroom semi-detached property in Kirkstall, Leeds. The property is in generally good condition and benefits from a good-sized garden. The property is well-located for transportation and schools. The listing price seems reasonable given the location and condition of the property, but the square footage is very small.
Therefore, we give this property 7 / 10. *Disclaimer: This is our option and does constitute a recommendation or financial advice. Do your own research. *
- Price
- 8
- Condition
- 7
- Location
- 7
- Land
- 8
- Bedrooms
- 2
- Bathrooms
- 1
- Sqft (est)
- 271.79
The heatmap indicates the level of crime in the area. The color of the heatmap indicates the crime severity and recency.
Metrics Year-on-Year
- Average area value
- 275,979.00 £Increased by 12.55 %
- Est sale value
- 86,429.22 £Increased by 14.80 %
- Average area rental value
- 1,133.00 £/moIncreased by 12.51 %
- Est letting value
- 271.79 £/moUnchanged by 0.00 %
- Est rental Yield
- 4.93 %Unchanged by 0.00 %
- Crime Rate
- 17.00 %Unchanged by 0.00 %
from 245,199.00 £
from 75,285.83 £
from 1,007.00 £/mo
from 271.79 £/mo
from 4.93 %
from 17.00 %
Agent Activity
Manning Stainton created the listing.
Nearby Schools
| Name | Type | Ofsted | Distance |
|---|---|---|---|
| Abbey Grange Church Of England Academy | Academy Converter | Good | 0.36 KM |
| St Chad'S Church Of England Primary School | Academy Converter | Good | 1.01 KM |
| Hawksworth Wood Children'S Centre | Children's Centre | 1.03 KM | |
| Hawksworth Wood Primary School | Community School | Good | 1.30 KM |
| Iveson Primary School | Foundation School | Good | 1.34 KM |
Images
Nearby Streets
| Name | Average Price | Average Sqft | Distance |
|---|---|---|---|
| Moor Grange View | £ 0 | 0 | 0.00 KM |
| Clayton Wood Road | £ 0 | 0 | 0.00 KM |
| Copper Beech Court | £ 0 | 0 | 0.00 KM |
| Broadway | £ 0 | 0 | 0.00 KM |
| Ring Road Horsforth | £ 0 | 0 | 0.00 KM |
Nearby Transport
| Name | NLC | TLC | Distance |
|---|---|---|---|
| Kirkstall Forge | 6544 | KLF | 1.93 KM |
| Headingley | 8498 | HDY | 2.02 KM |
| Horsforth | 8499 | HRS | 3.18 KM |
| Burley Park | 8500 | BUY | 3.85 KM |
| Bramley (West Yorkshire) | 8496 | BLE | 4.43 KM |
Nearby Listings
| Address | Price | Type | Score | Distance |
|---|---|---|---|---|
| Spen Bank, Leeds | £ 199,950 | BUY | 7 / 10 | 0.00 KM |
| Old Oak Drive, Leeds | £ 230,000 | BUY | 7 / 10 | 0.06 KM |
| Old Oak Drive, Leeds | £ 190,000 | BUY | 7 / 10 | 0.07 KM |
| Spen Approach, West Park, Leeds, LS16 | £ 235,000 | BUY | 7 / 10 | 0.11 KM |
| Spen Approach, Leeds, West Yorkshire | £ 220,000 | BUY | 7 / 10 | 0.13 KM |
Nearby Properties
| Address | Price | Distance |
|---|---|---|
| 37 Old Oak Drive | £ 165,000 | 0.05 KM |
| 39 Old Oak Drive | £ 133,000 | 0.05 KM |
| 11 Old Oak Drive | £ 201,525 | 0.05 KM |
| 51 Old Oak Drive | £ 193,750 | 0.06 KM |
| 53 Old Oak Drive | £ 130,000 | 0.06 KM |