Ocean says ..
One-bedroom ground-floor flat with a private rear garden in the heart of the village.
Property Oracle says ..
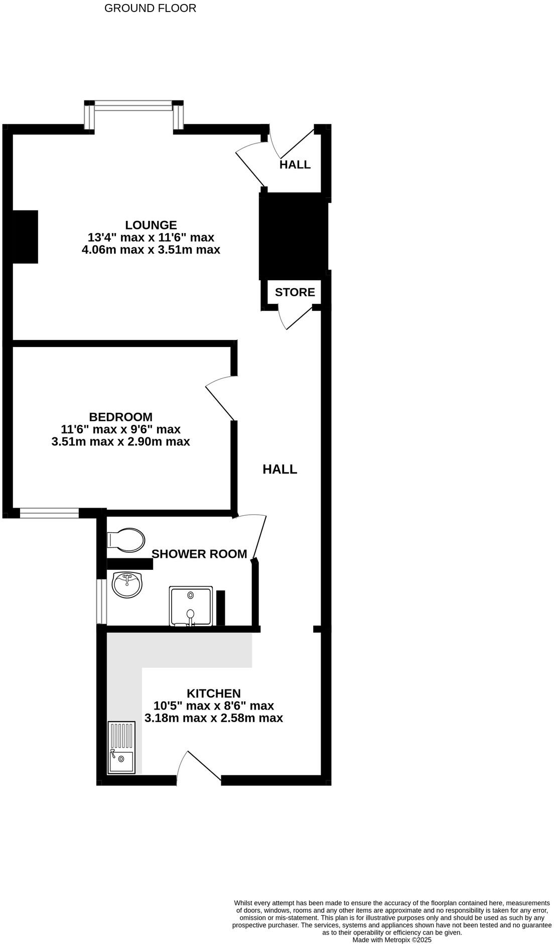
This is a one-bedroom flat on Priory Road, Shirehampton, Bristol. It is listed by Ocean Estate Agents. The property offers a balance of suburban living with convenient access to local amenities and transport links. The flat includes a garden, which is a desirable feature. While the property is in generally good condition, some areas could benefit from modernisation. The asking price of £190,000 appears reasonable when compared to other properties in the area.
Therefore, we give this property 7 / 10. *Disclaimer: This is our option and does constitute a recommendation or financial advice. Do your own research. *
- Price
- 8
- Condition
- 6
- Location
- 7
- Land
- 7
- Bedrooms
- 1
- Bathrooms
- 1
- Sqft (est)
- 353.88
The heatmap indicates the level of crime in the area. The color of the heatmap indicates the crime severity and recency.
Metrics Year-on-Year
- Average area value
- 314,285.00 £Decreased by 23.82 %
- Est sale value
- 121,734.72 £Increased by 13.53 %
- Average area rental value
- 1,470.00 £/moIncreased by 11.20 %
- Est letting value
- 353.88 £/mo
- Est rental Yield
- 5.61 %Increased by 45.71 %
- Crime Rate
- 11.00 %Unchanged by 0.00 %
Agent Activity
Ocean created the listing.
Nearby Schools
| Name | Type | Ofsted | Distance |
|---|---|---|---|
| Shirehampton Primary School | Community School | Good | 0.31 KM |
| Oasis Academy Brightstowe | Academy Sponsor Led | Good | 0.79 KM |
| Nova Primary School | Community School | Good | 0.95 KM |
| Avonmouth Children'S Centre | Children's Centre | 1.45 KM | |
| Avonmouth Church Of England Primary School | Voluntary Controlled School | Good | 1.47 KM |
Images
Nearby Streets
| Name | Average Price | Average Sqft | Distance |
|---|---|---|---|
| Saint Tecla Close | £ 196,975 | 0 | 0.00 KM |
| Woodview Close | £ 0 | 0 | 0.00 KM |
| Watchhouse Road | £ 325,000 | 0 | 0.00 KM |
| Stroud Road | £ 0 | 0 | 0.00 KM |
| Star Lane | £ 0 | 0 | 0.00 KM |
Nearby Transport
| Name | NLC | TLC | Distance |
|---|---|---|---|
| Shirehampton | 3206 | SHH | 0.42 KM |
| Avonmouth | 3200 | AVN | 2.59 KM |
| St Andrews Road | 3252 | SAR | 3.31 KM |
| Sea Mills | 3254 | SML | 3.40 KM |
| Clifton Down | 3202 | CFN | 7.95 KM |
Nearby Listings
| Address | Price | Type | Score | Distance |
|---|---|---|---|---|
| Priory Road, Shirehampton, Bristol | £ 190,000 | BUY | 7 / 10 | 0.00 KM |
| Priory Road, Shirehampton, Bristol | £ 275,000 | BUY | 5 / 10 | 0.03 KM |
| Priory Road, Shirehampton, Bristol | £ 330,000 | BUY | 6 / 10 | 0.03 KM |
| Priory Road, Shirehampton | £ 320,000 | BUY | Unknown | 0.03 KM |
| Walton Road, BRISTOL, Avon, BS11 | £ 400,000 | BUY | 6 / 10 | 0.05 KM |
Nearby Properties
| Address | Price | Distance |
|---|---|---|
| 54 Priory Road | £ 130,000 | 0.01 KM |
| 22 Priory Road | £ 220,000 | 0.01 KM |
| 40 Priory Road | £ 298,000 | 0.01 KM |
| 30 Priory Road | £ 242,500 | 0.01 KM |
| 44 Priory Road | £ 282,000 | 0.01 KM |