Acorn says ..
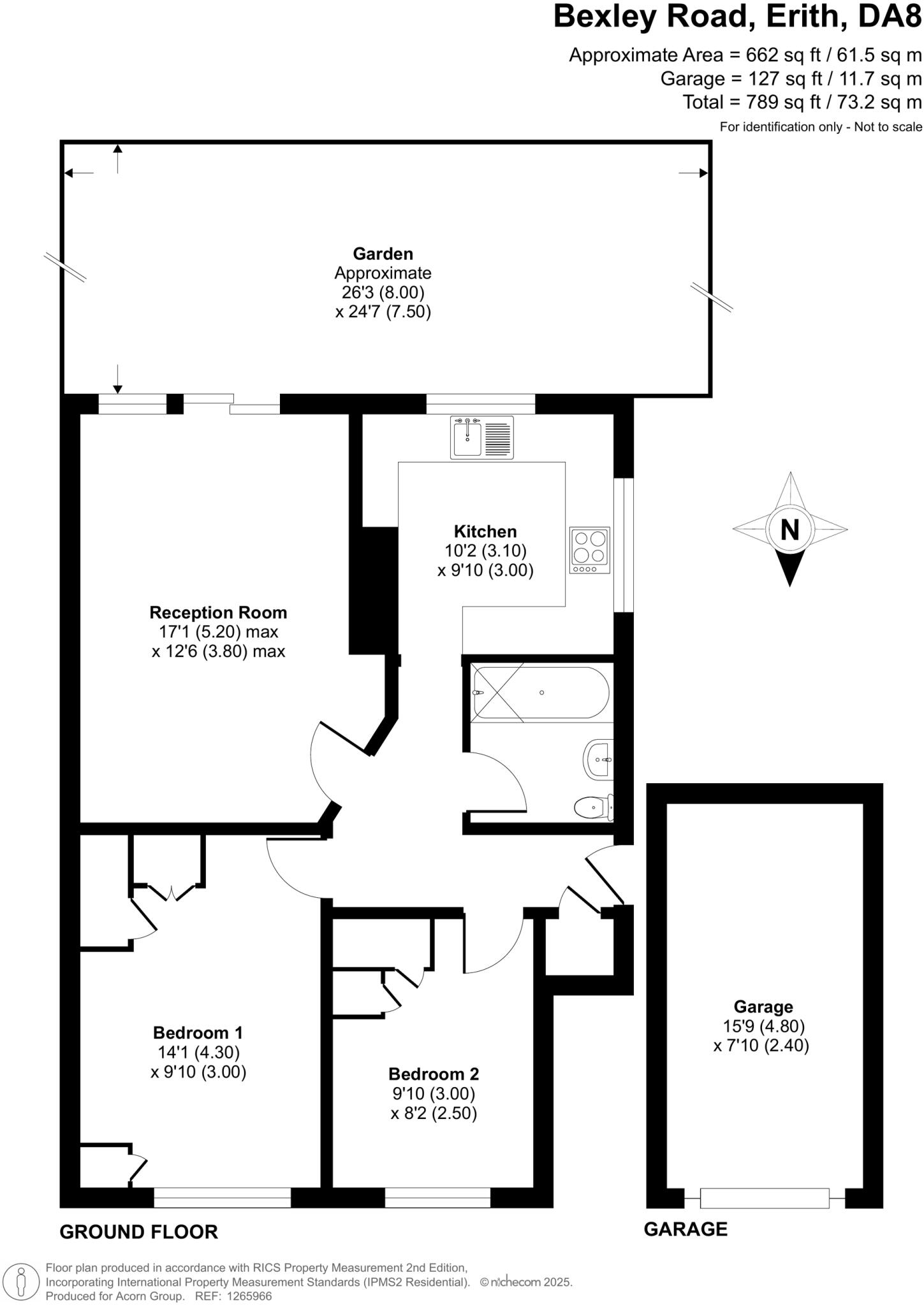
This maisonette is conveniently situated within easy access to local amenities, the accommodation offers 662sqft of floorspace internally with the bonus of a garage and the front and rear garden! As you enter, you’ll find both bedrooms on the left of the hallway, which are gener...
Property Oracle says ..
This maisonette is located in Erith, Bexley, with convenient access to public transport via Erith train station (0.20 KM). The property includes a garden. While the images suggest the property may benefit from some modernisation, it appears to be structurally sound. The list price of £275,000 is slightly below the average price for the area (£355,283), and considering the size (1,306.42 sqft) and inclusion of a garden, it could represent reasonable value compared to some nearby listings. However, a lack of information on the condition of the property and the absence of comparable properties with similar square footage makes a definitive price assessment challenging.
Therefore, we give this property 6 / 10. *Disclaimer: This is our option and does constitute a recommendation or financial advice. Do your own research. *
- Price
- 7
- Condition
- 6
- Location
- 7
- Land
- 7
- Bedrooms
- 2
- Bathrooms
- 1
- Sqft (est)
- 1,306.42
- Lot (est)
- 789.00
The heatmap indicates the level of crime in the area. The color of the heatmap indicates the crime severity and recency.
Metrics Year-on-Year
- Average area value
- 343,750.00 £Increased by 7.06 %
- Est sale value
- 637,532.96 £Increased by 44.81 %
- Average area rental value
- 1,500.00 £/moDecreased by 2.79 %
- Est letting value
- 2,612.84 £/moIncreased by 100.00 %
- Est rental Yield
- 5.24 %Decreased by 9.19 %
- Crime Rate
- 4.00 %Unchanged by 0.00 %
Agent Activity
Acorn created the listing.
Nearby Schools
| Name | Type | Ofsted | Distance |
|---|---|---|---|
| Christ Church (Erith) Cofe Primary School | Academy Sponsor Led | Outstanding | 0.37 KM |
| West Street Children'S Centre | Children's Centre | 0.68 KM | |
| Woodside Academy | Academy Special Converter | 1.08 KM | |
| King Henry School | Academy Sponsor Led | 1.22 KM | |
| Peareswood Primary School | Academy Converter | Good | 1.23 KM |
Images
Nearby Streets
| Name | Average Price | Average Sqft | Distance |
|---|---|---|---|
| Bronze Age Way | £ 0 | 0 | 0.00 KM |
| Colebrook Street | £ 232,500 | 0 | 0.00 KM |
| William Cory Promenade | £ 0 | 0 | 0.00 KM |
| Hardwick Court | £ 0 | 0 | 0.00 KM |
| Britannia Close | £ 0 | 0 | 0.00 KM |
Nearby Transport
| Name | NLC | TLC | Distance |
|---|---|---|---|
| Erith | 5104 | ERH | 0.20 KM |
| Slade Green | 5154 | SGR | 2.13 KM |
| Barnehurst | 5089 | BNH | 2.43 KM |
| Belvedere | 5092 | BVD | 2.91 KM |
| Crayford | 5100 | CRY | 3.54 KM |
Nearby Listings
| Address | Price | Type | Score | Distance |
|---|---|---|---|---|
| Bexley Road, Erith | £ 275,000 | BUY | 6 / 10 | 0.00 KM |
| Bexley Road, Erith, DA8 | £ 500,000 | BUY | 6 / 10 | 0.09 KM |
| Turquoise Court, Crimson Road, Erith, DA8 | £ 250,000 | BUY | 6 / 10 | 0.14 KM |
| Christchurch Avenue, Erith, DA8 | £ 425,000 | BUY | 5 / 10 | 0.18 KM |
| Bexley Road, Erith | £ 295,000 | BUY | 6 / 10 | 0.19 KM |
Nearby Properties
| Address | Price | Distance |
|---|---|---|
| 2a Victoria Road | £ 447,500 | 0.11 KM |
| 3 Victoria Road | £ 400,000 | 0.11 KM |
| 1 Victoria Road | £ 210,000 | 0.11 KM |
| 1c Victoria Road | £ 239,995 | 0.11 KM |
| 7 Victoria Road | £ 540,000 | 0.11 KM |