Stags says ..
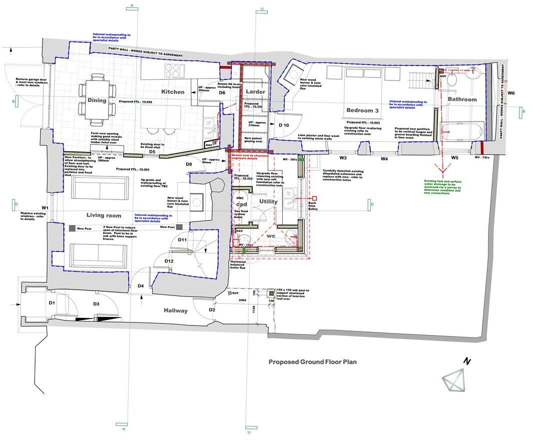
A fascinating Grade II listed period cottage for complete renovation in one of the most popular villages in North Devon. Planning consent for complete re-modelling to provide hall, living room, open plan kitchen/dining room, larder, utility, cloakroom and three bedrooms (all en-suite). Enclosed r...
Property Oracle says ..
Therefore, we give this property 5 / 10. *Disclaimer: This is our option and does constitute a recommendation or financial advice. Do your own research. *
- Price
- 9
- Condition
- 2
- Location
- 7
- Land
- 4
- Bedrooms
- 3
- Bathrooms
- 2
- Sqft (est)
- 1,552.00
The heatmap indicates the level of crime in the area. The color of the heatmap indicates the crime severity and recency.
Metrics Year-on-Year
- Average area value
- 661,000.00 £Increased by 29.29 %
- Est sale value
- 841,184.00 £Increased by 47.28 %
- Average area rental value
- 2,410.00 £/moIncreased by 120.90 %
- Est letting value
- 1,552.00 £/mo
- Est rental Yield
- 4.38 %Increased by 71.09 %
- Crime Rate
- 50.00 %Unchanged by 0.00 %
from 511,241.00 £
from 571,136.00 £
from 1,091.00 £/mo
from 0.00 £/mo
from 2.56 %
from 50.00 %
Agent Activity
Stags created the listing.
Nearby Schools
| Name | Type | Ofsted | Distance |
|---|---|---|---|
| Chittlehampton Church Of England Primary School | Voluntary Aided School | Good | 0.11 KM |
| Umberleigh Primary Academy | Academy Converter | Good | 4.25 KM |
| Filleigh Community Primary School | Foundation School | Good | 5.21 KM |
| Swimbridge Church Of England Primary School | Voluntary Aided School | Outstanding | 5.51 KM |
| High Bickington Church Of England Primary Academy | Academy Converter | Good | 7.54 KM |
Images
Nearby Streets
| Name | Average Price | Average Sqft | Distance |
|---|---|---|---|
| High Street | £ 258,333 | 0 | 0.00 KM |
| Back Lane | £ 395,000 | 0 | 0.00 KM |
| Barnstaple Close | £ 0 | 0 | 0.00 KM |
| New Buildings | £ 0 | 0 | 0.00 KM |
| The Croft | £ 360,000 | 0 | 0.00 KM |
Nearby Transport
| Name | NLC | TLC | Distance |
|---|---|---|---|
| Umberleigh | 5826 | UMB | 4.53 KM |
| Portsmouth Arms | 5829 | PMA | 6.25 KM |
| Chapelton (Devon) | 5820 | CPN | 8.79 KM |
| Kings Nympton | 5823 | KGN | 9.62 KM |
Nearby Listings
| Address | Price | Type | Score | Distance |
|---|---|---|---|---|
| Chittlehampton | £ 185,000 | BUY | 5 / 10 | 0.00 KM |
| Chittlehampton | £ 185,000 | BUY | 4 / 10 | 0.00 KM |
| The Old Malt House & Barn, Chittlehampton | £ 375,000 | BUY | 7 / 10 | 0.08 KM |
| High Street, Chittlehampton, Umberleigh, Devon, EX37 | £ 185,000 | BUY | 6 / 10 | 0.08 KM |
| Hillside, Chittlehampton | £ 395,000 | BUY | Unknown | 0.14 KM |
Nearby Properties
| Address | Price | Distance |
|---|---|---|
| Lea Cottage | £ 321,160 | 0.09 KM |
| Ardlui | £ 205,300 | 0.09 KM |
| 2 High Street | £ 165,000 | 0.14 KM |
| 5 Rackmead | £ 190,000 | 0.29 KM |
| 4 Rackmead | £ 245,000 | 0.29 KM |