Prospect Gardens, Ramsgate, CT12
By Miles & Barr
£ 300,000
Reviews
4 out of 5 stars
Miles & Barr says ..
MUST VIEW FAMILY HOME IN SOUGHT AFTER CUL DE SAC LOCATION IN MINSTER Situated in the ever-popular village of Minster, this beautifully presented home offers both comfort and convenience. Within walking distance to local amenities, top-rated primary school, and excellent transport links...
Property Oracle says ..
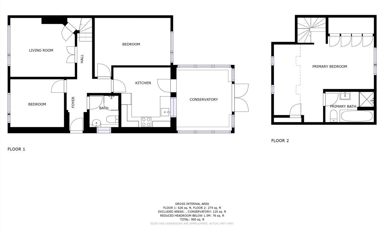
This property is a 3-bedroom, 2-bathroom semi-detached house located in Prospect Gardens, Ramsgate, CT12 4DH. The property is in good condition and has been recently modernised, as evidenced by the new kitchen and bathrooms. There is a well-maintained garden. The location is convenient, with nearby schools and transportation links. The list price of £300,000 is slightly below the average price for the area, making it potentially good value for money, however, the lack of plot size information means this cannot be fully assessed.
Therefore, we give this property 8 / 10. *Disclaimer: This is our option and does constitute a recommendation or financial advice. Do your own research. *
- Price
- 8
- Condition
- 9
- Location
- 8
- Land
- 7
- Bedrooms
- 3
- Bathrooms
- 2
- Sqft (est)
- 900.00
The heatmap indicates the level of crime in the area. The color of the heatmap indicates the crime severity and recency.
Metrics Year-on-Year
- Average area value
- 381,857.00 £Increased by 4.46 %
- Est sale value
- 336,600.00 £Increased by 4.47 %
- Average area rental value
- 2,250.00 £/moIncreased by 41.60 %
- Est letting value
- 1,800.00 £/moIncreased by 100.00 %
- Est rental Yield
- 7.07 %Increased by 35.44 %
- Crime Rate
- 34.00 %Unchanged by 0.00 %
Agent Activity
Miles & Barr created the listing.
Nearby Schools
| Name | Type | Ofsted | Distance |
|---|---|---|---|
| Minster Church Of England Primary School | Voluntary Controlled School | Good | 0.59 KM |
| Monkton Church Of England Primary School | Voluntary Controlled School | Good | 3.15 KM |
| The Llewellyn School And Nursery | Other Independent Special School | Good | 3.32 KM |
| Birchington Church Of England Primary School | Voluntary Controlled School | Good | 3.64 KM |
| Birchington Children'S Centre | Children's Centre | 3.74 KM |
Images
Nearby Streets
| Name | Average Price | Average Sqft | Distance |
|---|---|---|---|
| Edgar Road | £ 340,000 | 0 | 0.00 KM |
| Freeman's Road | £ 292,000 | 0 | 0.00 KM |
| Greenhill Close | £ 0 | 0 | 0.00 KM |
| Brockman's Close | £ 289,998 | 0 | 0.00 KM |
| Gas Alley | £ 400,000 | 0 | 0.00 KM |
Nearby Transport
| Name | NLC | TLC | Distance |
|---|---|---|---|
| Minster | 5019 | MSR | 1.20 KM |
| Birchington-On-Sea | 5163 | BCH | 4.54 KM |
| Westgate-On-Sea | 5195 | WGA | 5.76 KM |
| Sandwich | 5026 | SDW | 8.33 KM |
| Margate | 5018 | MAR | 8.62 KM |
Nearby Listings
| Address | Price | Type | Score | Distance |
|---|---|---|---|---|
| Prospect Gardens, Ramsgate, CT12 | £ 300,000 | BUY | 8 / 10 | 0.00 KM |
| Prospect Gardens, Minster, Ramsgate, CT12 4EH | £ 425,000 | BUY | 6 / 10 | 0.04 KM |
| Greenhill Gardens, Minster, Ramsgate, Kent, CT12 | £ 450,000 | BUY | 6 / 10 | 0.09 KM |
| Greenhill Gardens, Minster, Ramsgate, Kent, CT12 | £ 425,000 | BUY | 7 / 10 | 0.09 KM |
| Greenhill Gardens, Minster, Ramsgate, Kent | £ 215,000 | BUY | Unknown | 0.09 KM |
Nearby Properties
| Address | Price | Distance |
|---|---|---|
| 10 Prospect Gardens | £ 290,000 | 0.05 KM |
| 1 Prospect Gardens | £ 150,000 | 0.05 KM |
| 6 Prospect Gardens | £ 295,000 | 0.05 KM |
| 8 Prospect Gardens | £ 124,000 | 0.05 KM |
| 3 Prospect Gardens | £ 180,000 | 0.06 KM |