GI
Gills Hill Lane, Radlett, Hertfordshire, WD7
By Ginger Lettings
£ 7,250
Ginger Lettings says ..
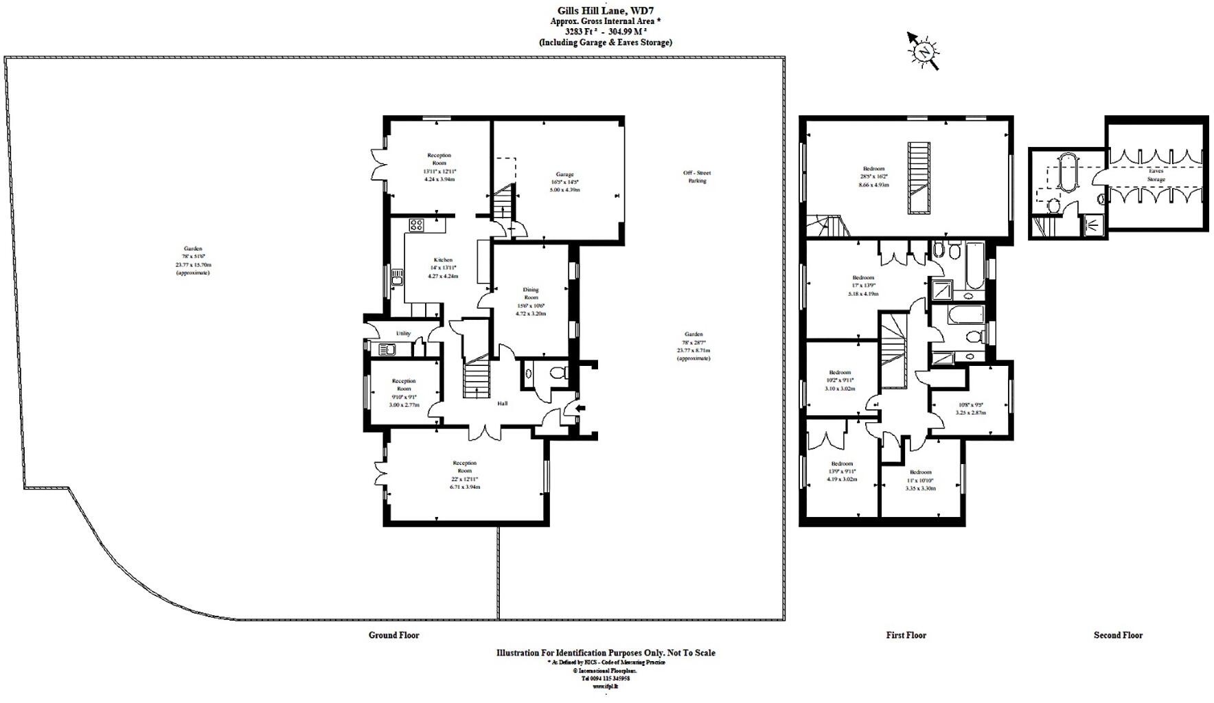
A Spacious Five Bedroom, Four Bathroom Detached House in Radlett, Hertfordshire, refurbished to a high standard, modern fixtures and fittings, neutral décor, Bedrooms with En Suite, three receptions, large Garden, double garage. Available September 2025
- Bedrooms
- 5
- Bathrooms
- 5
The heatmap indicates the level of crime in the area. The color of the heatmap indicates the crime severity and recency.
Metrics Year-on-Year
- Average area value
- 3,580,000.00 £Increased by 267.59 %
- Average area rental value
- 2,900.00 £/moDecreased by 10.66 %
- Est rental Yield
- 0.97 %Decreased by 75.75 %
- Crime Rate
- 14.00 %Unchanged by 0.00 %
from 973,913.00 £
from 3,246.00 £/mo
from 4.00 %
from 14.00 %
Agent Activity
Ginger Lettings created the listing.
Nearby Schools
| Name | Type | Ofsted | Distance |
|---|---|---|---|
| St John'S Church Of England Infant And Nursery School | Academy Converter | 0.32 KM | |
| Fair Field Junior School | Academy Converter | Good | 0.63 KM |
| H6 Radlett Link Family Centre | Children's Centre | 1.22 KM | |
| The Aldenham Foundation | Other Independent School | 1.93 KM | |
| Edge Grove School | Other Independent School | 2.00 KM |
Images
Nearby Streets
| Name | Average Price | Average Sqft | Distance |
|---|---|---|---|
| Maytrees | £ 2,250,000 | 0 | 0.00 KM |
| Thelusson Court | £ 0 | 0 | 0.00 KM |
| Watling Street | £ 4,335,000 | 0 | 0.00 KM |
| Brook Drive | £ 0 | 0 | 0.00 KM |
| Mornington Road | £ 0 | 0 | 0.00 KM |
Nearby Transport
| Name | NLC | TLC | Distance |
|---|---|---|---|
| Radlett | 1546 | RDT | 1.33 KM |
| Bricket Wood | 1560 | BWO | 4.39 KM |
| How Wood (Hertfordshire) | 1563 | HWW | 4.52 KM |
| Park Street | 1561 | PKT | 5.17 KM |
| Garston (Hertfordshire) | 1559 | GSN | 5.95 KM |
Nearby Listings
| Address | Price | Type | Score | Distance |
|---|---|---|---|---|
| Gills Hill Lane, Radlett, Hertfordshire, WD7 | £ 7,250 | RENT | Unknown | 0.00 KM |
| Gills Hill Lane, Radlett | £ 2,850 | RENT | Unknown | 0.10 KM |
| Lambourn Chase, Radlett | £ 1,500 | RENT | Unknown | 0.29 KM |
| Lambourn Chase, Radlett | £ 1,500 | RENT | Unknown | 0.29 KM |
| Lambourn Chase, Radlett | £ 1,695 | RENT | Unknown | 0.34 KM |
Nearby Properties
| Address | Price | Distance |
|---|---|---|
| 14 Gills Hill Lane | £ 565,000 | 0.03 KM |
| 28 Gills Hill Lane | £ 152,000 | 0.03 KM |
| 34 Gills Hill Lane | £ 1,010,000 | 0.03 KM |
| 16 Gills Hill Lane | £ 669,000 | 0.03 KM |
| 34a Gills Hill Lane | £ 655,000 | 0.03 KM |