Canal Close, Apperley Bridge
HU

Canal Close, Apperley Bridge

By Hunters

£ 379,950

Reviews

3 out of 5 stars

Hunters says ..

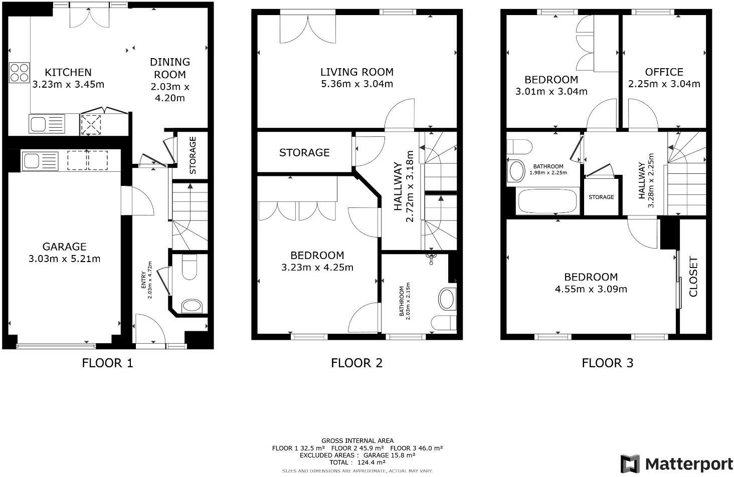
This modern stone-built semi-detached property, set over three floors, offers a perfect blend of contemporary living and charming surroundings, directly backing onto the Leeds Liverpool Canal. Upon entering, the ground floor comprises a welcoming entrance hall, a convenient guest WC, and an integ...

Property Oracle says ..

This four-bedroom, two-bathroom semi-detached property located on Canal Close in Apperley Bridge, Bradford, offers a blend of modern living and canal-side charm. The property’s modern design is evident in the bright interior and contemporary kitchen and bathrooms showcased in the provided photographs. The inclusion of a garden provides a private outdoor space, adding to the property’s appeal. The location in Apperley Bridge offers proximity to the Leeds-Liverpool Canal, a train station and several schools, making it an attractive option for families.

While the specific plot size is unavailable, preventing a definitive judgment on land area, the photos suggest a decent-sized garden. The provided images present a positive view of the property’s interior condition and overall aesthetic. The lack of square footage data for comparable properties makes precise price per square foot comparisons unreliable. More detailed information regarding property size and local price per square foot trends would enable a more comprehensive assessment of the property’s value. Nonetheless, based on the available data, the property presents a potentially good value for its location and condition in the Apperley Bridge market.

Therefore, we give this property 7 / 10. *Disclaimer: This is our option and does constitute a recommendation or financial advice. Do your own research. *

Price
7
Condition
8
Location
7
Land
6
Bedrooms
4
Bathrooms
2
Sqft (est)
1,339.03

The heatmap indicates the level of crime in the area. The color of the heatmap indicates the crime severity and recency.

Metrics Year-on-Year

Average area value
236,407.00 £
Decreased by 2.23 %
from 241,810.00 £
Est sale value
386,979.67 £
Increased by 23.50 %
from 313,333.02 £
Average area rental value
978.00 £/mo
Decreased by 5.69 %
from 1,037.00 £/mo
Est letting value
1,339.03 £/mo
Unchanged by 0.00 %
from 1,339.03 £/mo
Est rental Yield
4.96 %
Decreased by 3.69 %
from 5.15 %
Crime Rate
6.00 %
Unchanged by 0.00 %
from 6.00 %

Agent Activity

  • Hunters created the listing.

Nearby Schools

NameTypeOfstedDistance
Woodhouse Grove SchoolOther Independent School0.76 KM
Greengates Primary AcademyAcademy Converter0.80 KM
Holybrook Primary SchoolAcademy Sponsor Led1.47 KM
Parkland Children'S CentreChildren's Centre1.47 KM
Co-Op Academy ParklandAcademy Sponsor Led1.59 KM

Images

DSC_5597.JPG DSC_5582.JPG DSC_5583.JPG DSC_5585.JPG OZ0LZWykhU-jidGFVjALoA.jpg DSC_5581.JPG DSC_5586.JPG DSC_5587.JPG DSC_5589.JPG DSC_5590.JPG DSC_5591.JPG DSC_5592.JPG DSC_5588.JPG DSC_5594.JPG DSC_5593.JPG DSC_5595.JPG DSC_5596.JPG IMG_4068.jpg lRwj5Il5Zke2G5Z8SVleXA.jpg canal.jpg

Nearby Streets

NameAverage PriceAverage SqftDistance
Valley View Drive £ 364,99100.00 KM
Church Close £ 000.00 KM
Calverley Cutting £ 475,00000.00 KM
Fraser Road £ 325,00000.00 KM
Woodlands Close £ 975,00000.00 KM

Nearby Transport

NameNLCTLCDistance
Apperley Bridge8562APY0.73 KM
New Pudsey8506NPD4.35 KM
Guiseley8567GSY4.66 KM
Baildon8552BLD5.62 KM
Bradford Forster Square8346BDQ6.80 KM

Nearby Listings

AddressPriceTypeScoreDistance
Canal Close, Bradford, West Yorkshire, BD10 £ 385,000BUY7 / 100.04 KM
Harewood Drive, Apperley Bridge £ 325,000BUYUnknown0.09 KM
Bradford BD10 0FP, Bradford, BD10 0FP £ 55,000BUY5 / 100.09 KM
Parkin Lane, Apperley Bridge, BD10 £ 180,000BUY7 / 100.10 KM
Harewood Drive, Apperley Bridge £ 600,000BUYUnknown0.11 KM

Nearby Properties

AddressPriceDistance
3 Harewood Drive £ 180,0000.08 KM
7 Harewood Drive £ 190,0000.08 KM
5 Harewood Drive £ 192,5000.08 KM
16 Harewood Drive £ 237,0000.08 KM
6 Harewood Drive £ 262,5000.08 KM