DA
Smith Hill, Bishopsteignton, TQ14
By Dart & Partners
£ 1,450,000
Reviews
4 out of 5 stars
Dart & Partners says ..
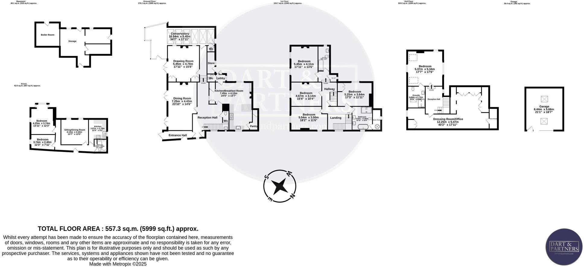
The Gnoll is an elegant detached Victorian residence set in the heart of the sought-after estuary village of Bishopsteignton that has been stylishly and sympathetically refurbished in recent years. Outstanding accommodation with many features and outbuildings extending in total to nearly 6000 squ...
Property Oracle says ..
Therefore, we give this property 8 / 10. *Disclaimer: This is our option and does constitute a recommendation or financial advice. Do your own research. *
- Price
- 6
- Condition
- 9
- Location
- 8
- Land
- 9
- Bedrooms
- 5
- Bathrooms
- 3
- Sqft (est)
- 4,828.80
- Lot (est)
- 5,998.73
The heatmap indicates the level of crime in the area. The color of the heatmap indicates the crime severity and recency.
Metrics Year-on-Year
- Average area value
- 305,488.00 £Decreased by 9.52 %
- Est sale value
- 1,699,737.60 £Increased by 33.84 %
- Average area rental value
- 1,004.00 £/moDecreased by 1.08 %
- Est letting value
- 4,828.80 £/mo
- Est rental Yield
- 3.94 %Increased by 9.14 %
- Crime Rate
- 46.00 %Unchanged by 0.00 %
from 337,636.00 £
from 1,269,974.40 £
from 1,015.00 £/mo
from 0.00 £/mo
from 3.61 %
from 46.00 %
Agent Activity
Dart & Partners created the listing.
Nearby Schools
| Name | Type | Ofsted | Distance |
|---|---|---|---|
| Bishopsteignton School | Community School | Good | 0.39 KM |
| Teignmouth Community School, Mill Lane | Academy Converter | Good | 3.30 KM |
| Dawlish Children'S Centre | Children's Centre | 3.75 KM | |
| Teignmouth Children'S Centre | Children's Centre | 3.75 KM | |
| Stokeinteignhead School | Community School | Requires improvement | 3.78 KM |
Images
Nearby Streets
| Name | Average Price | Average Sqft | Distance |
|---|---|---|---|
| West Street | £ 0 | 0 | 0.00 KM |
| The Orchard | £ 435,000 | 0 | 0.00 KM |
| The Haven | £ 0 | 0 | 0.00 KM |
Nearby Transport
| Name | NLC | TLC | Distance |
|---|---|---|---|
| Teignmouth | 3430 | TGM | 5.55 KM |
| Newton Abbot | 3426 | NTA | 6.65 KM |
| Torre | 3432 | TRR | 9.03 KM |
| Dawlish | 3408 | DWL | 9.30 KM |
Nearby Listings
| Address | Price | Type | Score | Distance |
|---|---|---|---|---|
| Smith Hill, Bishopsteignton, TQ14 | £ 1,450,000 | BUY | 8 / 10 | 0.00 KM |
| Forder Lane, Bishopsteignton, TQ14 | £ 950,000 | BUY | 8 / 10 | 0.09 KM |
| West Street, Bishopsteignton, Devon | £ 215,000 | BUY | 6 / 10 | 0.09 KM |
| West Street, Bishopsteignton, Devon | £ 250,000 | BUY | 6 / 10 | 0.09 KM |
| Teign View Road, Bishopsteignton, Teignmouth, Devon | £ 430,000 | BUY | Unknown | 0.09 KM |
Nearby Properties
| Address | Price | Distance |
|---|---|---|
| 2 West Street | £ 185,000 | 0.08 KM |
| 4 West Street | £ 160,000 | 0.08 KM |
| 8 West Street | £ 184,500 | 0.08 KM |
| 26 Teign View Road | £ 222,000 | 0.10 KM |
| 14 Teign View Road | £ 245,000 | 0.10 KM |