Hillhead Parkway, Newcastle upon Tyne, Tyne and Wear, NE5
YOUR MOVE Chris Stonock logo

Hillhead Parkway, Newcastle upon Tyne, Tyne and Wear, NE5

By YOUR MOVE Chris Stonock

£ 229,995

Reviews

3 out of 5 stars

YOUR MOVE Chris Stonock says ..

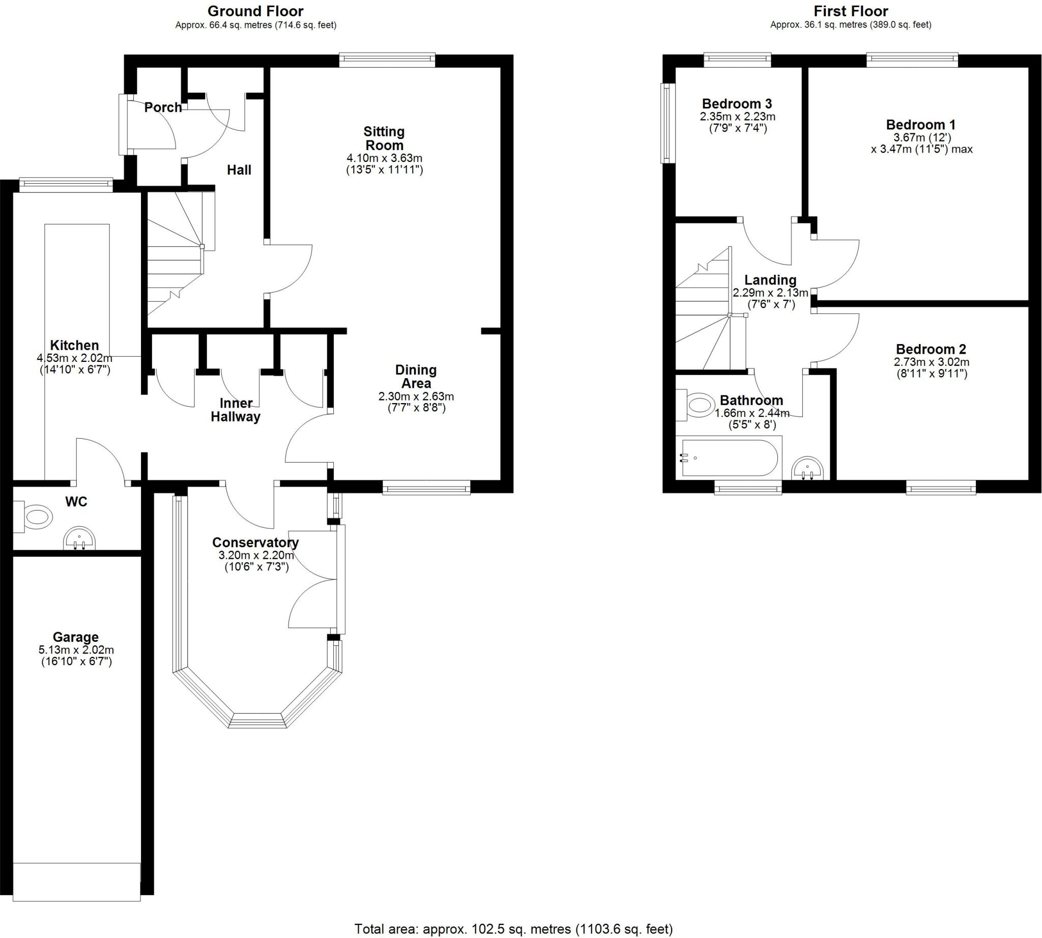
Three bedroom link detached house

Property Oracle says ..

This three-bedroom semi-detached house in Chapel House, Newcastle upon Tyne, is presented in generally good condition. The property benefits from a relatively modern kitchen and bathroom, and the living spaces are well-presented. The inclusion of a small garden with artificial turf and a shed adds to its appeal. The location is advantageous, with nearby highly-rated primary schools. However, the lack of detailed information on local amenities, transportation, and the overall plot size limits a more comprehensive assessment. The asking price seems competitive, but a full survey and comparison to similar properties with available square footage data would be necessary to determine its precise value. Potential buyers should investigate the proximity to local amenities and transport links further to fully ascertain the property’s suitability for their needs. The limited garden space may also be a factor for families seeking more extensive outdoor areas.

Therefore, we give this property 6 / 10. *Disclaimer: This is our option and does constitute a recommendation or financial advice. Do your own research. *

Price
7
Condition
6
Location
7
Land
4
Bedrooms
3
Bathrooms
1
Sqft (est)
1,103.30

The heatmap indicates the level of crime in the area. The color of the heatmap indicates the crime severity and recency.

Metrics Year-on-Year

Average area value
314,332.00 £
Increased by 25.67 %
from 250,118.00 £
Est sale value
312,233.90 £
Increased by 18.91 %
from 262,585.40 £
Average area rental value
1,032.00 £/mo
Increased by 14.67 %
from 900.00 £/mo
Est letting value
0.00 £/mo
from 0.00 £/mo
Est rental Yield
3.94 %
Decreased by 8.80 %
from 4.32 %
Crime Rate
1.00 %
Unchanged by 0.00 %
from 1.00 %

Agent Activity

  • YOUR MOVE Chris Stonock created the listing.

Nearby Schools

NameTypeOfstedDistance
Milecastle Primary SchoolFoundation SchoolGood0.13 KM
Knop Law Primary SchoolCommunity SchoolOutstanding0.48 KM
Sure Start Denton & Westerhope Children'S CentresChildren's Centre Linked Site1.15 KM
West Denton Primary SchoolFoundation SchoolGood1.31 KM
Westerhope Primary SchoolFoundation SchoolGood1.59 KM

Images

Picture No. 53 Picture No. 54 Picture No. 61 Picture No. 60 Picture No. 55 Picture No. 56 Picture No. 32 Picture No. 62 Picture No. 58 Picture No. 59 Picture No. 64 Picture No. 57 Picture No. 63 Picture No. 68 Picture No. 71 Picture No. 72 Picture No. 69 Picture No. 70 Picture No. 73 Picture No. 75 Picture No. 74 Picture No. 76 Picture No. 77 Picture No. 78

Nearby Streets

NameAverage PriceAverage SqftDistance
Hanover Close £ 000.00 KM
Coronation Road £ 000.00 KM
Allerdale Drive £ 000.00 KM
Ashton Close £ 000.00 KM
Cosmos Way £ 185,00000.00 KM

Nearby Transport

NameNLCTLCDistance
Blaydon7503BLO3.63 KM
Metrocentre7725MCE7.25 KM
Dunston7744DOT9.95 KM

Nearby Listings

AddressPriceTypeScoreDistance
Hillhead Parkway, Newcastle upon Tyne, Tyne and Wear, NE5 £ 229,995BUY6 / 100.00 KM
Hillhead Parkway, Chapel House, Newcastle Upon Tyne, NE5 £ 229,995BUY7 / 100.00 KM
Hillhead Parkway, Newcastle £ 219,995BUY7 / 100.03 KM
Hillhead Parkway, Chapel House £ 219,995BUY6 / 100.04 KM
Dunbar Close, Newcastle upon Tyne, Tyne and Wear, NE5 £ 279,950BUY6 / 100.17 KM

Nearby Properties

AddressPriceDistance
19 Denham Walk £ 100,5000.05 KM
17 Denham Walk £ 108,0000.05 KM
27 Denham Walk £ 100,0000.05 KM
13 Denham Walk £ 73,0000.05 KM
43 Denham Walk £ 149,9500.05 KM