Yopa says ..
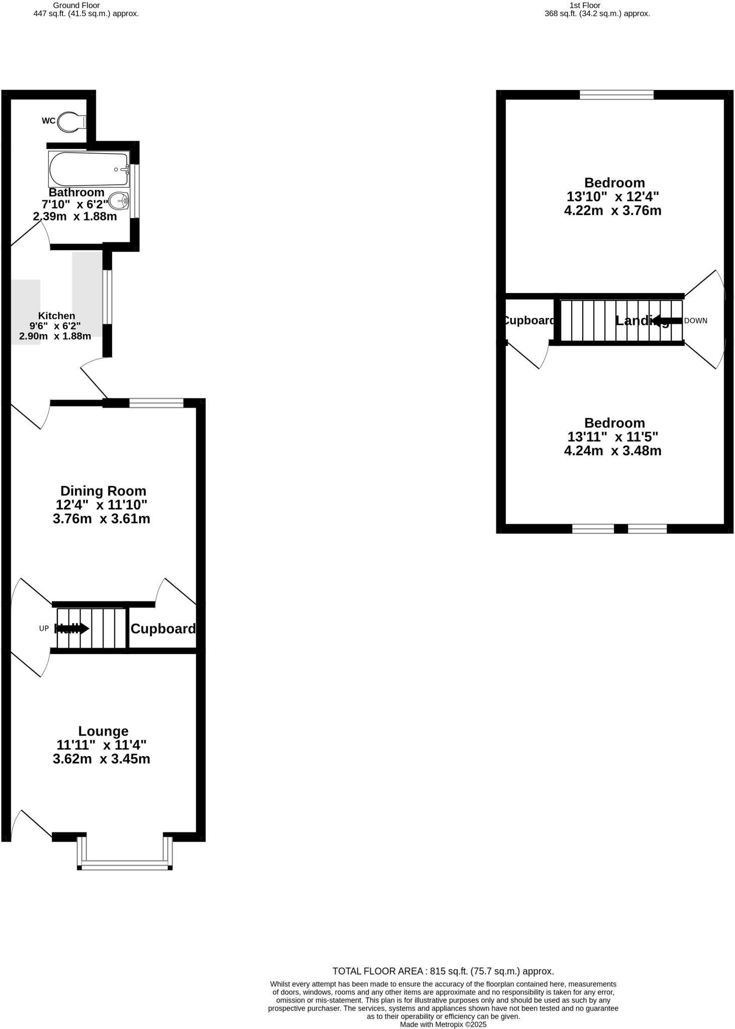
A spacious two bedroom terraced property situated in the heart of Smethwick. The property benefits from two reception rooms and two large double bedrooms and also comes with a private rear garden. Perfect for a first time buyer, professional couple, or buy to let investor. Viewing essential.
Property Oracle says ..
Therefore, we give this property 6 / 10. *Disclaimer: This is our option and does constitute a recommendation or financial advice. Do your own research. *
- Price
- 7
- Condition
- 5
- Location
- 7
- Land
- 6
- Bedrooms
- 2
- Bathrooms
- 1
- Sqft (est)
- 715.43
The heatmap indicates the level of crime in the area. The color of the heatmap indicates the crime severity and recency.
Metrics Year-on-Year
- Average area value
- 325,000.00 £Increased by 41.85 %
- Est sale value
- 213,913.57 £Increased by 32.30 %
- Average area rental value
- 473.00 £/moDecreased by 55.08 %
- Est letting value
- 0.00 £/moDecreased by 100.00 %
- Est rental Yield
- 1.75 %Decreased by 68.30 %
- Crime Rate
- 7.00 %Unchanged by 0.00 %
from 229,118.00 £
from 161,687.18 £
from 1,053.00 £/mo
from 715.43 £/mo
from 5.52 %
from 7.00 %
Agent Activity
Yopa created the listing.
Nearby Schools
| Name | Type | Ofsted | Distance |
|---|---|---|---|
| Galton Valley Sure Start Children'S Centre | Children's Centre | 0.46 KM | |
| The Regis Academy | Other Independent School | 0.64 KM | |
| Devonshire Junior Academy | Academy Converter | Good | 0.66 KM |
| Devonshire Infant Academy | Academy Converter | 0.66 KM | |
| Crocketts Community Primary School | Community School | Outstanding | 0.88 KM |
Images
Nearby Streets
| Name | Average Price | Average Sqft | Distance |
|---|---|---|---|
| High Street | £ 0 | 0 | 0.00 KM |
| Cygnet Court | £ 0 | 0 | 0.00 KM |
| Green Street | £ 209,870 | 0 | 0.00 KM |
| Holly Street | £ 280,000 | 0 | 0.00 KM |
| Waterfall Close | £ 0 | 0 | 0.00 KM |
Nearby Transport
| Name | NLC | TLC | Distance |
|---|---|---|---|
| Smethwick Galton Bridge | 1114 | SGB | 0.65 KM |
| Smethwick Rolfe Street | 1150 | SMR | 0.72 KM |
| The Hawthorns | 4523 | THW | 1.72 KM |
| Langley Green | 4607 | LGG | 3.10 KM |
| Sandwell And Dudley | 1149 | SAD | 4.02 KM |
Nearby Listings
| Address | Price | Type | Score | Distance |
|---|---|---|---|---|
| Dibble Road, Smethwick, B67 | £ 185,000 | BUY | 6 / 10 | 0.00 KM |
| Sabell Road, Smethwick, West Midlands, B67 | £ 180,000 | BUY | 5 / 10 | 0.05 KM |
| Dibble Road, Smethwick | £ 180,000 | BUY | 6 / 10 | 0.07 KM |
| White Road, Smethwick, West Midlands, B67 | £ 190,000 | BUY | 6 / 10 | 0.09 KM |
| White Road, Smethwick, West Midlands, B67 | £ 160,000 | BUY | 5 / 10 | 0.09 KM |
Nearby Properties
| Address | Price | Distance |
|---|---|---|
| 69 Sabell Road | £ 90,500 | 0.04 KM |
| 79 Sabell Road | £ 91,000 | 0.04 KM |
| 1 Sabell Road | £ 135,000 | 0.04 KM |
| 59 Sabell Road | £ 46,950 | 0.04 KM |
| 41 Sabell Road | £ 40,000 | 0.04 KM |