7 Wordsworth Road, Thatcham, Berkshire, RG18 3FP
By Auction House London
£ 220,000
Reviews
2 out of 5 stars
Auction House London says ..
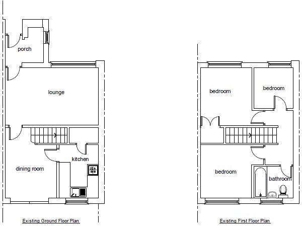
**For Sale By Public Auction 12th November 2025 09:30 AM To inspect the legal documents for this property go to our website to download the legal pack** A Vacant Five Room Mid Terrace House Freehold Guide Price = £220,000+ Location The property is situat...
Property Oracle says ..
7 Wordsworth Road is a terraced property in Thatcham, requiring complete renovation. The property is located within proximity to local schools and transportation links. The house has a garden. The house is listed at £220,000, which is significantly lower than the average price in the area, reflecting the work needed.
Therefore, we give this property 5 / 10. *Disclaimer: This is our option and does constitute a recommendation or financial advice. Do your own research. *
- Price
- 7
- Condition
- 2
- Location
- 7
- Land
- 6
- Bedrooms
- 3
- Bathrooms
- 0
- Sqft (est)
- 930.00
The heatmap indicates the level of crime in the area. The color of the heatmap indicates the crime severity and recency.
Metrics Year-on-Year
- Average area value
- 456,667.00 £Increased by 7.33 %
- Est sale value
- 447,330.00 £Increased by 0.42 %
- Average area rental value
- 1,375.00 £/moIncreased by 25.00 %
- Est letting value
- 930.00 £/moUnchanged by 0.00 %
- Est rental Yield
- 3.61 %Increased by 16.45 %
- Crime Rate
- 18.00 %Unchanged by 0.00 %
Agent Activity
Auction House London created the listing.
Nearby Schools
| Name | Type | Ofsted | Distance |
|---|---|---|---|
| Whitelands Park Primary School | Academy Sponsor Led | Good | 0.15 KM |
| Central Family Hub - Thatcham | Children's Centre | 0.63 KM | |
| Thatcham Park Cofe Primary | Voluntary Controlled School | Good | 0.65 KM |
| Parsons Down Infant School | Community School | Good | 1.26 KM |
| Parsons Down Junior School | Community School | Good | 1.41 KM |
Images
Nearby Streets
| Name | Average Price | Average Sqft | Distance |
|---|---|---|---|
| Kendal Close | £ 0 | 0 | 0.00 KM |
| Kipling Close | £ 385,000 | 0 | 0.00 KM |
| Brownsfield Road | £ 0 | 0 | 0.00 KM |
| Tudor Court | £ 0 | 0 | 0.00 KM |
| Whitelands Road | £ 347,500 | 0 | 0.00 KM |
Nearby Transport
| Name | NLC | TLC | Distance |
|---|---|---|---|
| Thatcham | 3152 | THA | 2.85 KM |
| Newbury Racecourse | 3071 | NRC | 4.89 KM |
| Newbury | 3074 | NBY | 6.54 KM |
| Midgham | 3159 | MDG | 9.70 KM |
Nearby Listings
| Address | Price | Type | Score | Distance |
|---|---|---|---|---|
| 7 Wordsworth Road, Thatcham, Berkshire, RG18 3FP | £ 220,000 | BUY | 5 / 10 | 0.00 KM |
| 7 Wordsworth Road, Thatcham, Berkshire, RG18 3FP | £ 220,000 | BUY | 5 / 10 | 0.00 KM |
| 7 Wordsworth Road, Thatcham, Berkshire, RG18 3FP | £ 180,000 | BUY | 6 / 10 | 0.00 KM |
| 7 Wordsworth Road, Thatcham, Berkshire, RG18 3FP | £ 180,000 | BUY | 5 / 10 | 0.00 KM |
| Burns Walk, Thatcham, Berkshire, RG18 | £ 315,000 | BUY | 6 / 10 | 0.11 KM |
Nearby Properties
| Address | Price | Distance |
|---|---|---|
| 23 Wordsworth Road | £ 179,000 | 0.05 KM |
| 29 Wordsworth Road | £ 297,500 | 0.05 KM |
| 9 Wordsworth Road | £ 187,000 | 0.05 KM |
| 1a Wordsworth Road | £ 210,000 | 0.05 KM |
| 18 Wordsworth Road | £ 195,000 | 0.05 KM |