Daisy Hill Hall, Bradford BD9
By Sharpes Auctions
£ 180,000
Reviews
1 out of 5 stars
Sharpes Auctions says ..
FOR SALE BY SHARPES AUCTIONS, TRADITIONAL ONLINE AUCTION TO BE HELD ON THURSDAY 3rd OF April 2025 AT 12PM. ATTENTION INVESTORS/BUILDERS. EXCELLENT INVESTMENT OPPORTUNITY. this exceptional property presents a unique opportunity for those with a vision to create their dream home. With full planning...
Property Oracle says ..
The property at Daisy Hill Hall, Bradford BD9 6DJ, is a detached house with 7 bedrooms and 3 bathrooms. The listing price is £180,000. The average house price in the area is significantly higher at £617,618, with an average price per square foot of £592. However, the provided data lacks square footage for this property and nearby comparables, making a precise price-per-square-foot comparison impossible.
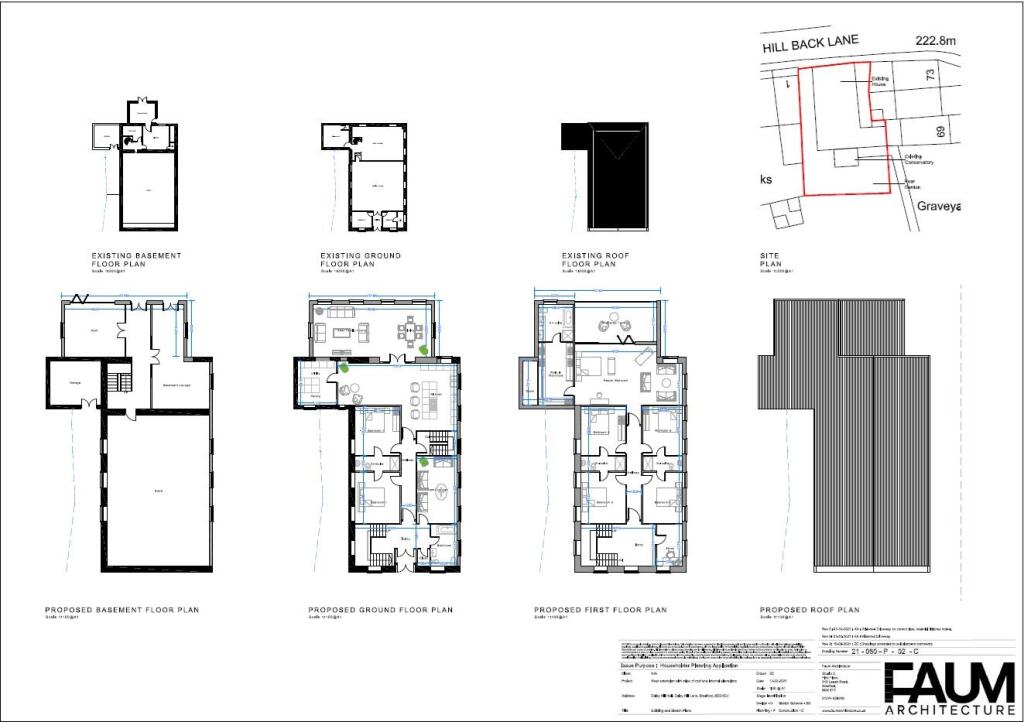
The property appears to be in need of substantial renovation, as evidenced by the provided photographs showing significant structural damage and a large area of excavation in the rear. This significantly impacts its current condition. While the plans show a potential for a substantial property after renovation, the current state is poor.
The property’s location in Toller, Bradford, places it relatively close to several train stations (Saltaire, Frizinghall, Shipley, Bradford Forster Square, and Bingley), all within a 6km radius. The proximity to schools like High Park School (rated ‘Good’ by Ofsted) and Beckfoot Heaton Primary (also rated ‘Good’) is a positive aspect for families. However, the presence of Bradford Girls’ Grammar School with a ‘Serious Weaknesses’ Ofsted rating nearby may be a negative factor for some buyers. More information on the immediate surroundings and amenities is needed for a complete location assessment.
The available information does not provide details about the size of the land plot associated with the property. The provided plans show a relatively small plot size, but without precise measurements, a definitive assessment of land size is not possible.
Given the extensive renovation required, the lack of square footage data, and the significant discrepancy between the listing price and the area’s average price, a conclusive assessment of the property’s value for money is difficult. The current state of the property significantly undervalues it compared to the average property price in the area. However, the potential value after renovation could be considerable, depending on the final size and quality of the finished property.
Therefore, we give this property 3 / 10. *Disclaimer: This is our option and does constitute a recommendation or financial advice. Do your own research. *
- Price
- 3
- Condition
- 2
- Location
- 6
- Land
- 3
- Bedrooms
- 7
- Bathrooms
- 3
The heatmap indicates the level of crime in the area. The color of the heatmap indicates the crime severity and recency.
Metrics Year-on-Year
- Average area value
- 856,250.00 £Increased by 15.74 %
- Average area rental value
- 2,000.00 £/moDecreased by 15.25 %
- Est rental Yield
- 2.80 %Decreased by 26.89 %
- Crime Rate
- 9.00 %Unchanged by 0.00 %
Agent Activity
Sharpes Auctions created the listing.
Nearby Schools
| Name | Type | Ofsted | Distance |
|---|---|---|---|
| Bradford Girls' Grammar School | Free Schools | Serious Weaknesses | 0.77 KM |
| High Park School | Academy Special Sponsor Led | Good | 1.22 KM |
| Heaton Primary School & Children'S Centre | Children's Centre | 1.22 KM | |
| Beckfoot Heaton Primary | Academy Converter | Good | 1.27 KM |
| Crossley Hall Primary School | Academy Converter | 1.30 KM |
Images
Nearby Streets
| Name | Average Price | Average Sqft | Distance |
|---|---|---|---|
| Hill Top Cottages | £ 109,950 | 0 | 0.00 KM |
| Wheatlands Avenue | £ 230,000 | 0 | 0.00 KM |
| Lynton Drive | £ 0 | 0 | 0.00 KM |
| Alston Close | £ 360,000 | 0 | 0.00 KM |
| The Oval | £ 0 | 0 | 0.00 KM |
Nearby Transport
| Name | NLC | TLC | Distance |
|---|---|---|---|
| Saltaire | 8561 | SAE | 3.49 KM |
| Frizinghall | 8556 | FZH | 3.75 KM |
| Shipley (Yorks) | 8347 | SHY | 4.05 KM |
| Bradford Forster Square | 8346 | BDQ | 5.47 KM |
| Bingley | 8553 | BIY | 5.98 KM |
Nearby Listings
| Address | Price | Type | Score | Distance |
|---|---|---|---|---|
| 33, Daisy Hill Back Lane Bradford, BD9 6DJ | £ 65,000 | BUY | 4 / 10 | 0.00 KM |
| Daisy Hill Hall, Bradford BD9 | £ 180,000 | BUY | 3 / 10 | 0.00 KM |
| Moorside, Daisy Hill, Bradford, BD9 | £ 125,000 | BUY | 7 / 10 | 0.13 KM |
| Holland Park, BRADFORD | £ 115,000 | BUY | 5 / 10 | 0.15 KM |
| 8 Holland Park, Bradford, BD9 6AF | £ 72,500 | BUY | 6 / 10 | 0.18 KM |
Nearby Properties
| Address | Price | Distance |
|---|---|---|
| 73 Smith Lane | £ 100,000 | 0.06 KM |
| 65 Smith Lane | £ 63,000 | 0.06 KM |
| 14 Moorside | £ 190,000 | 0.12 KM |
| 9 Moorside | £ 130,000 | 0.12 KM |
| 7 Moorside | £ 50,000 | 0.12 KM |