Spittal Hardwick Lane, Pontefract, West Yorkshire, WF8
By Rockello Real Estate
£ 340,000
Reviews
4 out of 5 stars
Rockello Real Estate says ..
Welcome to this exquisitely refurbished 4-bedroom semi-detached bungalow, located in a sought-after area of Pontefract. Finished to an exceptional standard with high-end materials and modern conveniences, this property is move-in ready, offering luxurious living both inside and out.
Property Oracle says ..
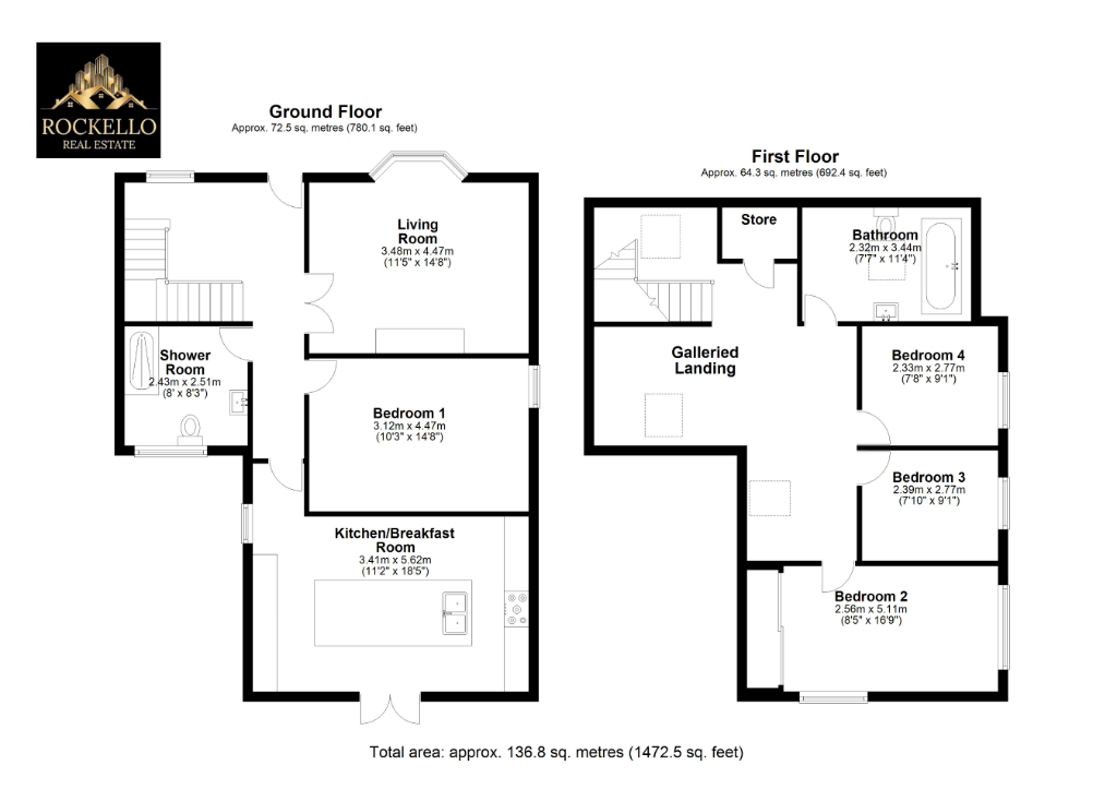
The property is a 4-bedroom, 2-bathroom semi-detached house located in Pontefract, West Yorkshire. It has been recently renovated to a high standard, as evidenced by the modern kitchen and bathrooms shown in the photographs. The property also benefits from a good-sized garden and off-street parking. The location is good, with several primary and secondary schools within a reasonable distance. There are also several train stations within a few kilometers, providing convenient access to other towns and cities. The condition of the property is excellent. The recent renovation is apparent throughout the house, with modern fixtures and fittings. The property appears well-maintained and in move-in condition. The property has a relatively small plot size of 1,472.50 sqft, but this is still sufficient for a family home. The garden is well-maintained and provides a private outdoor space. Considering the average price per square foot in the area is £421.00, and the property is listed at £340,000 with 956.91 sqft, the list price seems reasonable. While the average house price in the area is higher (£539,000), this property is smaller and therefore commands a lower price. However, the recent renovation work significantly increases the value. Several nearby properties on Spittal Hardwick Lane have sold for similar prices, further supporting the reasonableness of the list price. Based on the above analysis, the property is a well-maintained, modern family home in a convenient location. The list price is reasonable given the condition, size, and location.
Therefore, we give this property 8 / 10. *Disclaimer: This is our option and does constitute a recommendation or financial advice. Do your own research. *
- Price
- 8
- Condition
- 10
- Location
- 8
- Land
- 7
- Bedrooms
- 4
- Bathrooms
- 2
- Sqft (est)
- 956.91
- Lot (est)
- 1,472.50
The heatmap indicates the level of crime in the area. The color of the heatmap indicates the crime severity and recency.
Metrics Year-on-Year
- Average area value
- 420,000.00 £Decreased by 24.04 %
- Est sale value
- 838,253.16 £Increased by 140.00 %
- Average area rental value
- 1,475.00 £/moDecreased by 37.68 %
- Est letting value
- 2,870.73 £/moIncreased by 200.00 %
- Est rental Yield
- 4.21 %Decreased by 18.09 %
- Crime Rate
- 2.00 %Unchanged by 0.00 %
Agent Activity
Rockello Real Estate created the listing.
Nearby Schools
| Name | Type | Ofsted | Distance |
|---|---|---|---|
| Orchard Head Junior And Infant And Nursery School | Academy Converter | Good | 1.25 KM |
| St Giles C Of E Academy | Academy Converter | Good | 1.47 KM |
| Airedale Academy | Academy Converter | Good | 1.54 KM |
| Castleford Townville Infants' School | Community School | Requires improvement | 1.65 KM |
| Airedale Junior School | Academy Sponsor Led | Good | 1.79 KM |
Images
Nearby Streets
| Name | Average Price | Average Sqft | Distance |
|---|---|---|---|
| Gemmi Court | £ 0 | 0 | 0.00 KM |
| Elliots Close | £ 260,000 | 0 | 0.00 KM |
| Beeston Close | £ 0 | 0 | 0.00 KM |
| Hampshire Close | £ 330,000 | 0 | 0.00 KM |
| Hillcrest Close | £ 0 | 0 | 0.00 KM |
Nearby Transport
| Name | NLC | TLC | Distance |
|---|---|---|---|
| Pontefract Monkhill | 8548 | PFM | 1.17 KM |
| Pontefract Tanshelf | 8541 | POT | 1.82 KM |
| Pontefract Baghill | 8540 | PFR | 1.89 KM |
| Glasshoughton | 8360 | GLH | 3.58 KM |
| Castleford | 8359 | CFD | 5.31 KM |
Nearby Listings
| Address | Price | Type | Score | Distance |
|---|---|---|---|---|
| Spittal Hardwick Lane, Pontefract, West Yorkshire, WF8 | £ 340,000 | BUY | 8 / 10 | 0.00 KM |
| Spittal Hardwick Lane, Pontefract | £ 170,000 | BUY | 6 / 10 | 0.11 KM |
| Hawthorne Grange, Pontefract, WF8 | £ 325,000 | BUY | 7 / 10 | 0.11 KM |
| Ridgedale Mount, Pontefract | £ 220,000 | BUY | 8 / 10 | 0.12 KM |
| Hawthorne Grange, Pontefract | £ 330,000 | BUY | 7 / 10 | 0.12 KM |
Nearby Properties
| Address | Price | Distance |
|---|---|---|
| 121 Spittal Hardwick Lane | £ 115,000 | 0.07 KM |
| 157 Spittal Hardwick Lane | £ 145,000 | 0.07 KM |
| 151 Spittal Hardwick Lane | £ 123,000 | 0.07 KM |
| 137 Spittal Hardwick Lane | £ 135,000 | 0.07 KM |
| 129 Spittal Hardwick Lane | £ 114,995 | 0.07 KM |