BARN WITH PLANNING | STAPLETON BS16
HO

BARN WITH PLANNING | STAPLETON BS16

By Hollis Morgan Auctions

£ 25,000

Reviews

2 out of 5 stars

Hollis Morgan Auctions says ..

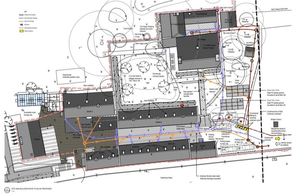
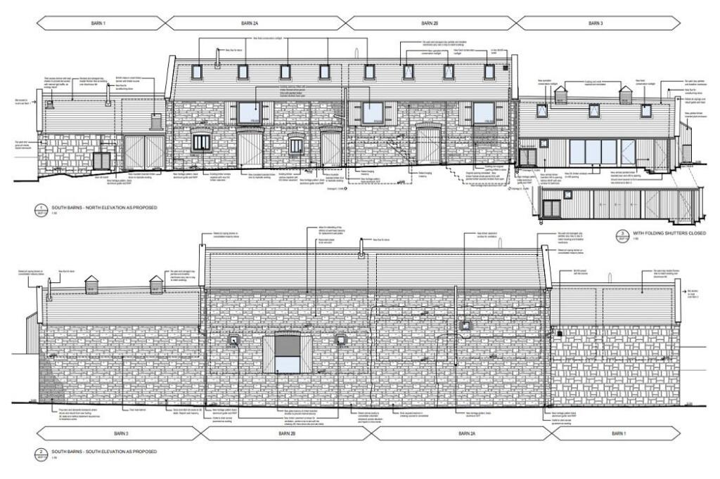
Hollis Morgan – SEPTEMBER LIVE ONLINE AUCTION – A Leasehold STONE BARN with RESI PLANNING to create a 2 BED | 2 BATH HOUSE ( 861 Sq Ft ) set within the Bridge Farm Community Project.

Property Oracle says ..

Therefore, we give this property 5 / 10. *Disclaimer: This is our option and does constitute a recommendation or financial advice. Do your own research. *

Price
9
Condition
2
Location
5
Land
6
Bedrooms
2
Bathrooms
2

The heatmap indicates the level of crime in the area. The color of the heatmap indicates the crime severity and recency.

Metrics Year-on-Year

Average area value
347,495.00 £
Increased by 4.36 %
from 332,967.00 £
Average area rental value
1,189.00 £/mo
Decreased by 23.64 %
from 1,557.00 £/mo
Est rental Yield
4.11 %
Decreased by 26.74 %
from 5.61 %
Crime Rate
4.00 %
Unchanged by 0.00 %
from 4.00 %

Agent Activity

  • Hollis Morgan Auctions created the listing.

Nearby Schools

NameTypeOfstedDistance
Glenfrome Primary SchoolCommunity SchoolGood0.38 KM
Colston'S SchoolOther Independent School0.49 KM
May Park Primary SchoolAcademy Sponsor Led0.84 KM
Trinity AcademyFree Schools1.10 KM
Stoke Park Primary SchoolAcademy Converter1.10 KM

Images

Barn 2b @ Bridge Farm, Bell Hill Stapleton, Bristo Barn 2b @ Bridge Farm, Bell Hill Stapleton, Bristo Barn 2b @ Bridge Farm, Bell Hill Stapleton, Bristo Barn 2b @ Bridge Farm, Bell Hill Stapleton, Bristo Barn 2b @ Bridge Farm, Bell Hill Stapleton, Bristo Barn 2b @ Bridge Farm, Bell Hill Stapleton, Bristo Hollis Morgan Live Online Auctions How to Register Barn 2b @ Bridge Farm, Bell Hill Stapleton, Bristo Barn 2b @ Bridge Farm, Bell Hill Stapleton, Bristo Barn 2b @ Bridge Farm, Bell Hill Stapleton, Bristo Barn 2b @ Bridge Farm, Bell Hill Stapleton, Bristo Barn 2b @ Bridge Farm, Bell Hill Stapleton, Bristo Barn 2b @ Bridge Farm, Bell Hill Stapleton, Bristo Barn 2b @ Bridge Farm, Bell Hill Stapleton, Bristo Barn 2b @ Bridge Farm, Bell Hill Stapleton, Bristo Barn 2b @ Bridge Farm, Bell Hill Stapleton, Bristo Barn 2b @ Bridge Farm, Bell Hill Stapleton, Bristo Proposed Development @ Bridge Proposed Development @ Bridge Hollis Morgan Live Online Land and Property Auctio

Nearby Streets

NameAverage PriceAverage SqftDistance
Heath Road £ 420,00000.00 KM
Sandy Lane £ 000.00 KM
Stapleton Close £ 000.00 KM
Park Road £ 000.00 KM
Coombe Road £ 000.00 KM

Nearby Transport

NameNLCTLCDistance
Stapleton Road3250SRD1.43 KM
Lawrence Hill3225LWH2.36 KM
Filton Abbey Wood3235FIT2.92 KM
Montpelier3203MTP3.37 KM
Bristol Temple Meads3231BRI4.05 KM

Nearby Listings

AddressPriceTypeScoreDistance
BARN WITH PLANNING | STAPLETON BS16 £ 20,000BUY5 / 100.00 KM
BARN WITH PLANNING | STAPLETON BS16 £ 25,000BUY5 / 100.00 KM
BARN WITH PLANNING | STAPLETON BS16 £ 25,000BUY5 / 100.00 KM
BARN WITH PLANNING | STAPLETON BS16 £ 20,000BUY5 / 100.09 KM
BARN WITH PLANNING | STAPLETON BS16 £ 25,000BUYUnknown0.09 KM

Nearby Properties

AddressPriceDistance
6 Welsford Road £ 189,0000.18 KM
3 Welsford Road £ 287,0000.18 KM
18 Welsford Road £ 327,5000.18 KM
14 Welsford Road £ 190,0000.18 KM
2 Welsford Road £ 272,5000.18 KM