Greenfield Terrace, Heol Laethog, Bridgend, Bridgend, CF32 9JA
By MRE - Peter Morgan Real Estate, Powered by eXp
£ 345,000
Reviews
3 out of 5 stars
MRE - Peter Morgan Real Estate, Powered by eXp says ..
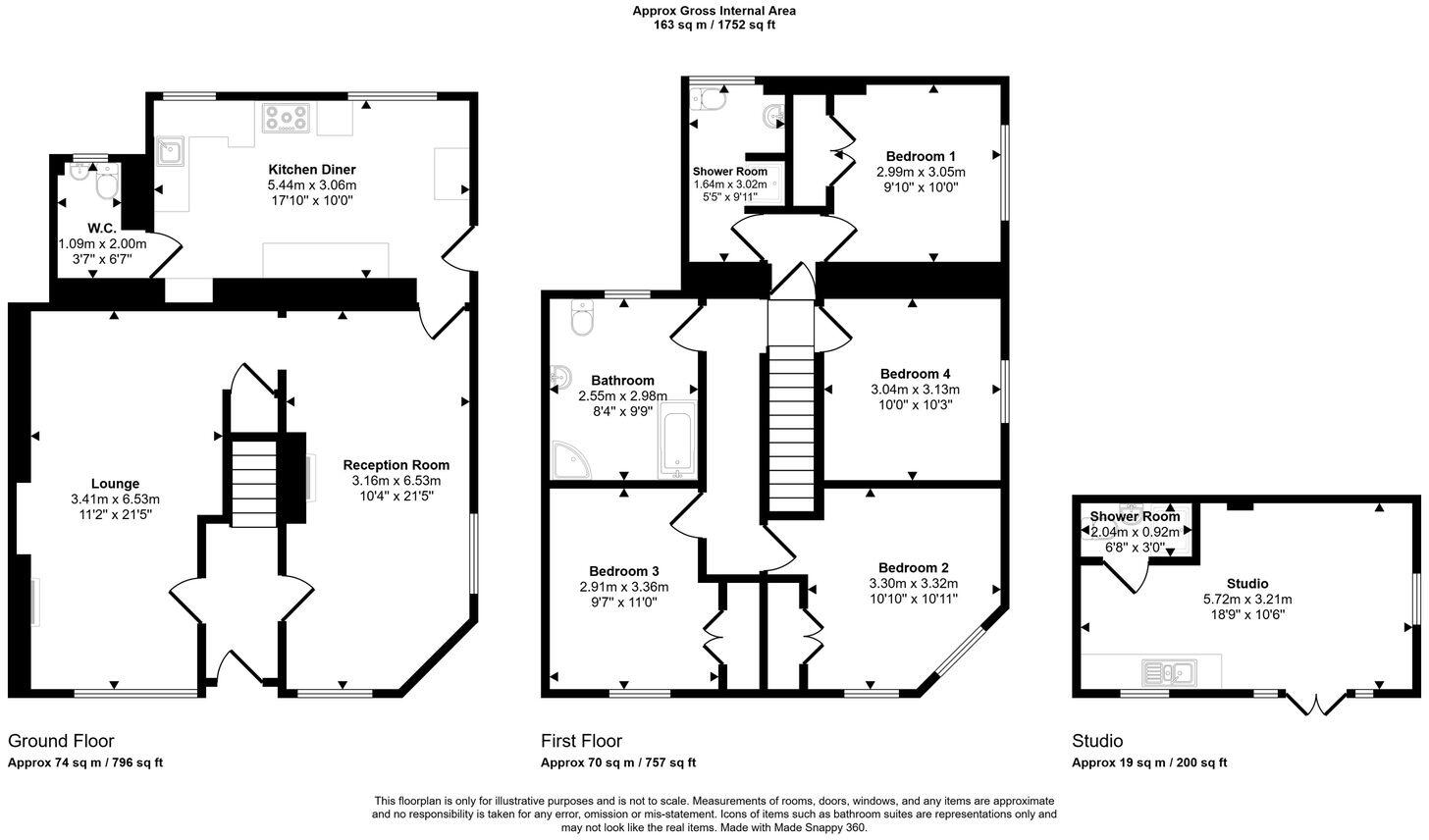
‘THE OLD POST HOUSE’ IS A 4 DOUBLE BEDROOM 2 BATHROOM END OF TERRACE HOME THAT IS SITUATED IN A SEMI RURAL LOCATION THAT BLENDS MODERN WITH TRADITIONAL AND BENEFITS FROM SOLAR ENERGY, ELECTRIC HEAT PUMP, FULLY CONVERTED GARDEN STUDIO WITH KITCHEN AND SHOWER ROOM.
Property Oracle says ..
Therefore, we give this property 7 / 10. *Disclaimer: This is our option and does constitute a recommendation or financial advice. Do your own research. *
- Price
- 6
- Condition
- 8
- Location
- 7
- Land
- 7
- Bedrooms
- 4
- Bathrooms
- 2
The heatmap indicates the level of crime in the area. The color of the heatmap indicates the crime severity and recency.
Metrics Year-on-Year
- Average area value
- 245,000.00 £Decreased by 2.53 %
- Average area rental value
- 608.00 £/moDecreased by 26.30 %
- Est rental Yield
- 2.98 %Decreased by 24.37 %
- Crime Rate
- 198.00 %Unchanged by 0.00 %
from 251,358.00 £
from 825.00 £/mo
from 3.94 %
from 198.00 %
Agent Activity
MRE - Peter Morgan Real Estate, Powered by eXp created the listing.
Nearby Schools
| Name | Type | Ofsted | Distance |
|---|---|---|---|
| Coity Primary School | Welsh Establishment | 3.22 KM | |
| Bryncethin Primary School | Welsh Establishment | 3.29 KM | |
| Tynyrheol Primary School | Welsh Establishment | 3.80 KM | |
| Brynmenyn Primary School | Welsh Establishment | 4.16 KM | |
| Archdeacon John Lewis | Welsh Establishment | 4.48 KM |
Images
Nearby Streets
| Name | Average Price | Average Sqft | Distance |
|---|---|---|---|
| Greenfield Terrace | £ 0 | 0 | 0.00 KM |
| Mount Pleasant | £ 0 | 0 | 0.00 KM |
Nearby Transport
| Name | NLC | TLC | Distance |
|---|---|---|---|
| Wildmill | 3965 | WMI | 5.18 KM |
| Sarn | 4270 | SRR | 5.25 KM |
| Pencoed | 3851 | PCD | 5.67 KM |
| Tondu | 4271 | TDU | 5.70 KM |
| Bridgend | 3809 | BGN | 6.01 KM |
Nearby Listings
| Address | Price | Type | Score | Distance |
|---|---|---|---|---|
| Greenfield Terrace, Heol Laethog, Bridgend, Bridgend, CF32 9JA | £ 345,000 | BUY | 7 / 10 | 0.00 KM |
| 3 Greenfield Terrace Heol Laethog Bryncethin CF32 9JA | £ 140,000 | BUY | 6 / 10 | 0.00 KM |
| Approx. 7.95 acres of agricultural land, Heol Laethog Bryncethin, Bridgend CF32 9JB | £ 150,000 | BUY | 8 / 10 | 0.04 KM |
| Pant Hirwaun, Bryncethin, Bridgend County Borough, CF32 9YJ | £ 495,000 | BUY | 7 / 10 | 0.95 KM |
| 10 acres Land at Ynyslas Uchaf Farm Blackmill CF35 6DW | £ 120,000 | BUY | 8 / 10 | 1.72 KM |
Nearby Properties
| Address | Price | Distance |
|---|---|---|
| 2 Greenfield Terrace | £ 150,000 | 0.00 KM |
| 6 Greenfield Terrace | £ 80,000 | 0.00 KM |
| 1 Greenfield Terrace | £ 164,950 | 0.00 KM |
| 3 Railway Terrace | £ 127,500 | 0.20 KM |
| 7 Railway Terrace | £ 122,500 | 0.20 KM |