Queens Club Gardens, West Kensington, London, W14
By Foxtons
£ 900,000
Reviews
2 out of 5 stars
Foxtons says ..
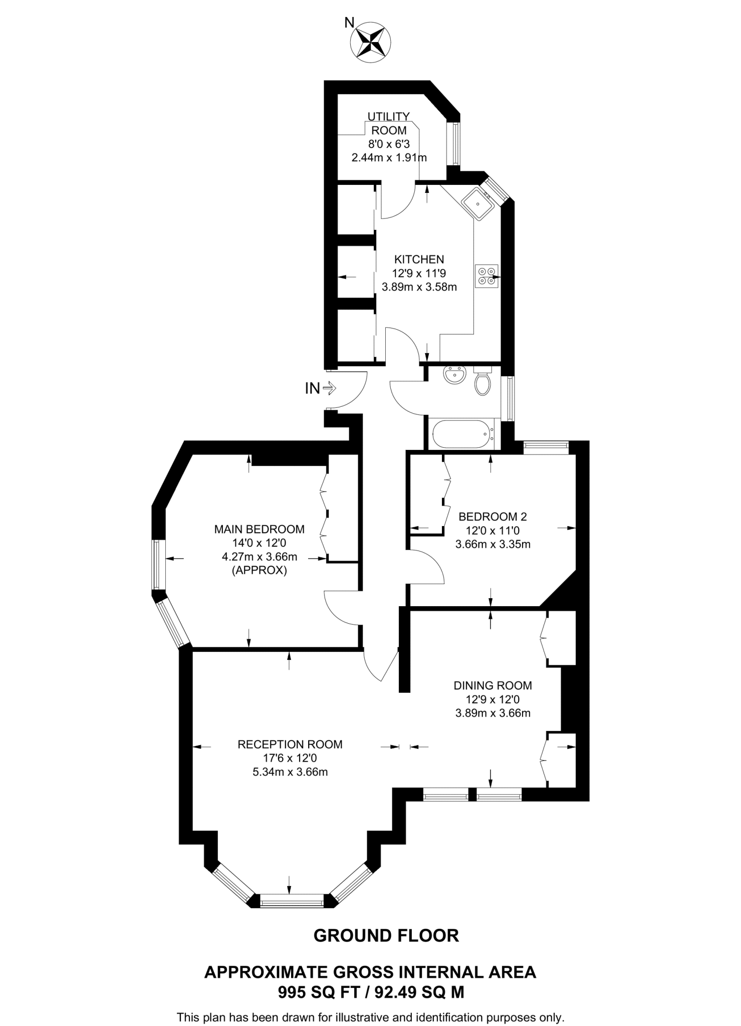
Located within the sought-after Queens Club Garden Square, this delightful 2 bedroom flat offers bright open-plan living and dining space with a fantastic kitchen and access to lovely communal Gardens.
Property Oracle says ..
This two-bedroom, one-bathroom flat located in the prestigious Queens Club Gardens, West Kensington, offers a desirable address and convenient location. The property’s proximity to excellent schools and transport links is a major advantage. However, the provided photos reveal a property that could benefit from some modernisation and updating. The kitchen and bathroom appear dated, and an overall refresh would likely enhance its market value. The absence of a private garden is a notable drawback, especially considering the high property prices in this area of London. While the list price of £900,000 seems relatively in line with comparable properties in the area, the need for potential renovations and the lack of outdoor space should be considered. Potential buyers should factor in the costs of renovations when assessing the overall value. The property is suitable for a family or couple looking for a convenient and well-located home in West Kensington, but potential buyers should be prepared for renovation costs.
Therefore, we give this property 5 / 10. *Disclaimer: This is our option and does constitute a recommendation or financial advice. Do your own research. *
- Price
- 7
- Condition
- 6
- Location
- 9
- Land
- 1
- Bedrooms
- 2
- Bathrooms
- 1
- Sqft (est)
- 995.55
The heatmap indicates the level of crime in the area. The color of the heatmap indicates the crime severity and recency.
Metrics Year-on-Year
- Average area value
- 1,260,625.00 £Increased by 78.98 %
- Est sale value
- 1,804,932.15 £Increased by 72.34 %
- Average area rental value
- 2,530.00 £/moIncreased by 1.65 %
- Est letting value
- 2,986.65 £/moUnchanged by 0.00 %
- Est rental Yield
- 2.41 %Decreased by 43.16 %
- Crime Rate
- 2.00 %Unchanged by 0.00 %
Agent Activity
Foxtons created the listing.
Nearby Schools
| Name | Type | Ofsted | Distance |
|---|---|---|---|
| The Fulham Prep School Ltd | Other Independent School | Good | 0.17 KM |
| St Augustine'S Rc Primary School | Voluntary Aided School | Outstanding | 0.22 KM |
| Sir John Lillie Primary School | Community School | Good | 0.34 KM |
| Normand Croft Community School For Early Years And Primary Education | Community School | Good | 0.46 KM |
| St Thomas Of Canterbury Catholic Primary School | Voluntary Aided School | Good | 0.51 KM |
Images
Nearby Streets
| Name | Average Price | Average Sqft | Distance |
|---|---|---|---|
| May Street | £ 0 | 0 | 0.00 KM |
| Disbrowe Road | £ 0 | 0 | 0.00 KM |
| Musard Road | £ 1,007,500 | 0 | 0.00 KM |
| Williams Close | £ 525,000 | 0 | 0.00 KM |
| Jervis Road | £ 0 | 0 | 0.00 KM |
Nearby Transport
| Name | NLC | TLC | Distance |
|---|---|---|---|
| Kensington (Olympia) | 3092 | KPA | 1.36 KM |
| West Brompton | 8875 | WBP | 1.42 KM |
| Shepherd'S Bush | 9587 | SPB | 2.40 KM |
| Putney | 5603 | PUT | 2.87 KM |
| Imperial Wharf | 9586 | IMW | 3.07 KM |
Nearby Listings
| Address | Price | Type | Score | Distance |
|---|---|---|---|---|
| Queens Club Gardens, West Kensington, London, W14 | £ 900,000 | BUY | 5 / 10 | 0.00 KM |
| Queen's Club Gardens, West Kensington | £ 685,000 | BUY | 6 / 10 | 0.06 KM |
| Queen's Club Gardens, Wes Kensington | £ 1,100,000 | BUY | 7 / 10 | 0.06 KM |
| Arnold Mansions, Queen's Club Gardens, W14 | £ 650,000 | BUY | 8 / 10 | 0.07 KM |
| Queen's Club Gardens, London, Greater London, W14 | £ 650,000 | BUY | 6 / 10 | 0.07 KM |
Nearby Properties
| Address | Price | Distance |
|---|---|---|
| 7 - 8 Normand Mews | £ 2,400,000 | 0.09 KM |
| 4 Normand Mews | £ 845,000 | 0.09 KM |
| 5 Normand Mews | £ 765,000 | 0.09 KM |
| 3 Normand Mews | £ 758,000 | 0.09 KM |
| 6 Normand Mews | £ 432,500 | 0.09 KM |