Burbo Bank Road North, Liverpool
Abode logo

Burbo Bank Road North, Liverpool

By Abode

£ 1,500,000

Reviews

4 out of 5 stars

Abode says ..

Nestled on Burbo Bank Road North in the vibrant city of Liverpool, this property benefits from a seafront location which is the most desirable address in Blundellsands and Merseyside. Offering an array of detached properties from traditional builds to modern, multi-million pound villas this prope...

Property Oracle says ..

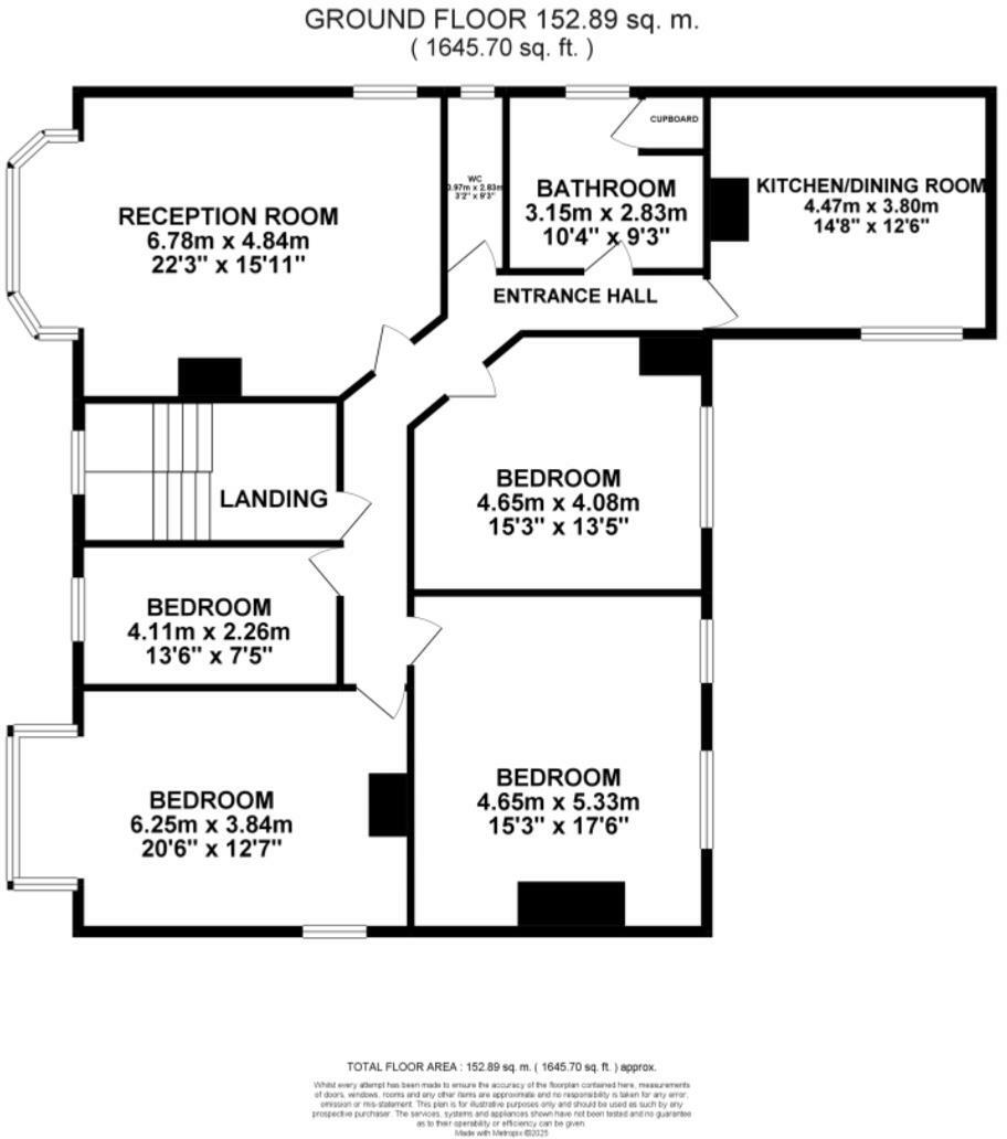
This property is located on Burbo Bank Road North in Blundellsands, Sefton, Merseyside. The area benefits from being close to the coast and has good transport links via nearby Merseyrail stations. Several schools with good Ofsted ratings are within a reasonable distance. The property itself is a detached house with a significant plot size of 17,714.17 sqft. Based on the images, the property appears to have undergone some renovations and modernisation, presenting in good condition. The kitchen and bathrooms look recently updated. The property has a traditional style with some modern features. The list price of £1,500,000 is significantly higher than the average house price in the area (£452,829), however, considering the size, location (on the coast) and plot size, it may be justifiable, although further analysis of comparable properties would be beneficial to confirm this.

Therefore, we give this property 8 / 10. *Disclaimer: This is our option and does constitute a recommendation or financial advice. Do your own research. *

Price
6
Condition
8
Location
9
Land
10
Bedrooms
0
Bathrooms
0
Sqft (est)
1,645.69
Lot (est)
17,714.17

The heatmap indicates the level of crime in the area. The color of the heatmap indicates the crime severity and recency.

Metrics Year-on-Year

Average area value
325,000.00 £
Decreased by 7.65 %
from 351,913.00 £
Est sale value
650,047.55 £
Increased by 49.06 %
from 436,107.85 £
Average area rental value
1,396.00 £/mo
Decreased by 45.45 %
from 2,559.00 £/mo
Est letting value
1,645.69 £/mo
Unchanged by 0.00 %
from 1,645.69 £/mo
Est rental Yield
5.15 %
Decreased by 41.01 %
from 8.73 %
Crime Rate
63.00 %
Unchanged by 0.00 %
from 63.00 %

Agent Activity

  • Abode created the listing.

Nearby Schools

NameTypeOfstedDistance
Ursuline Catholic Primary SchoolVoluntary Aided SchoolGood1.54 KM
St Nicholas Church Of England Primary SchoolVoluntary Aided SchoolOutstanding1.86 KM
St Michael'S Church Of England High SchoolAcademy Sponsor LedGood2.38 KM
Valewood Primary SchoolCommunity SchoolGood2.59 KM
St Luke'S Halsall Church Of England Primary SchoolVoluntary Aided SchoolGood3.12 KM

Images

DSC01566-HDR-5.jpg DSC01571-HDR-6.jpg DSC01576-HDR-7.jpg DSC01581-HDR-8.jpg DSC01586-HDR-9.jpg DSC01591-HDR-10.jpg DSC01596-HDR-11.jpg DSC01601-HDR-12.jpg DSC01621-HDR-15.jpg DSC01626-HDR-16.jpg DSC01636-HDR-18.jpg DSC01641-HDR-19.jpg DSC01651-HDR-21.jpg DSC01801-HDR-1.jpg DSC01646-HDR-20.jpg DSC01806-HDR-2.jpg DSC01831-HDR-6.jpg DSC01631-HDR-17.jpg DSC01811-HDR-3.jpg DSC01821-HDR-4.jpg DSC01826-HDR-5.jpg DSC01836-HDR-7.jpg DSC01841-HDR-8.jpg DSC01846-HDR-9.jpg DSC01886-HDR-15.jpg DSC01851-HDR-10.jpg DSC01866-HDR-12.jpg DSC01881-HDR-14.jpg DSC01901-HDR-16.jpg DSC01906-HDR-17.jpg DSC01916-HDR-18.jpg DSC01921-HDR-19.jpg DSC01926-HDR-20.jpg DSC01931-HDR-21.jpg DSC01941-HDR-23.jpg DJI_0193-1.jpg DJI_0196-2.jpg DSC01946-HDR-24.jpg DJI_0197-3.jpg DJI_0198-4.jpg DJI_0199-5.jpg

Nearby Streets

NameAverage PriceAverage SqftDistance
Ward Road £ 000.00 KM
Devon Close £ 975,00000.00 KM
Osbert Road £ 1,600,00000.00 KM
Sand Dune Close £ 785,00000.00 KM

Nearby Transport

NameNLCTLCDistance
Hall Road2229HLR0.75 KM
Blundellsands And Crosby2123BLN1.96 KM
Hightown2356HTO3.35 KM
Waterloo (Merseyside)2133WLO4.04 KM
Seaforth And Litherland2250SFL6.42 KM

Nearby Listings

AddressPriceTypeScoreDistance
Burbo Bank Road North, Liverpool £ 1,500,000BUY8 / 100.00 KM
Burbo Bank Road North, Liverpool, Merseyside, L23 £ 950,000BUY6 / 100.04 KM
16 Burbo Bank Road North, Blundellsands, Liverpool, Merseyside, L23 8TA £ 1,250,000BUY6 / 100.08 KM
Margaret Road, Crosby, Liverpool £ 900,000BUY6 / 100.14 KM
Burbo Bank Road North, Blundellsands, Liverpool, L23 £ 1,250,000BUY7 / 100.16 KM

Nearby Properties

AddressPriceDistance
28 Burbo Bank Road North £ 460,0000.03 KM
20 Burbo Bank Road North £ 499,5000.03 KM
26 Burbo Bank Road North £ 847,5000.03 KM
14 Burbo Bank Road North £ 950,0000.03 KM
10 Ward Road £ 388,0000.13 KM