Gordon Avenue, Camberley
By Knights Property Services
£ 700,000
Reviews
3 out of 5 stars
Knights Property Services says ..
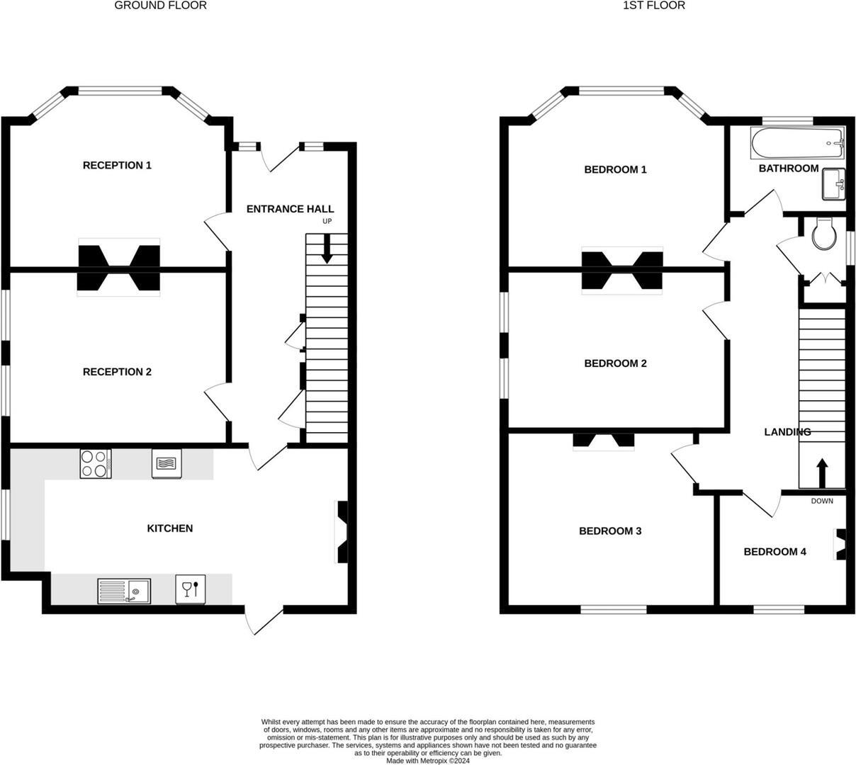
KNIGHTS PROPERTY SERVICES **NO ONWARD CHAIN** For sale is this well presented period property within walking distance of Camberley town centre, with its wide range of shops and restaurants as well as leisure facilities like Places Leisure. The home has undergone some refurbishment by the current ...
Property Oracle says ..
This four-bedroom property in Gordon Avenue, Camberley, presents a mixed bag of features. The location in Camberley offers access to good transport links via nearby train stations, and there are several schools within a reasonable distance. The property itself has undergone some renovations, with the kitchen and bathroom appearing modern and well-finished. However, the images reveal that some areas, such as the flooring in several rooms, are unfinished or require updating. The garden is a positive feature, although its size is unclear from the provided information. The list price of £700,000 requires further analysis, as comparable properties in the area show a range of prices. While the partially renovated state and location justify the price to some extent, a more thorough assessment of the property’s condition and a clearer comparison with similar properties would be needed to definitively judge its value. Potential buyers should be prepared for additional costs associated with completing the renovations.
Therefore, we give this property 6 / 10. *Disclaimer: This is our option and does constitute a recommendation or financial advice. Do your own research. *
- Price
- 7
- Condition
- 6
- Location
- 7
- Land
- 4
- Bedrooms
- 4
- Bathrooms
- 1
- Sqft (est)
- 1,100.00
The heatmap indicates the level of crime in the area. The color of the heatmap indicates the crime severity and recency.
Metrics Year-on-Year
- Average area value
- 226,464.00 £Decreased by 27.05 %
- Est sale value
- 316,800.00 £Decreased by 24.61 %
- Average area rental value
- 1,243.00 £/moDecreased by 7.99 %
- Est letting value
- 1,100.00 £/moUnchanged by 0.00 %
- Est rental Yield
- 6.59 %Increased by 26.25 %
- Crime Rate
- 11.00 %Unchanged by 0.00 %
Agent Activity
Knights Property Services created the listing.
Nearby Schools
| Name | Type | Ofsted | Distance |
|---|---|---|---|
| South Camberley Primary And Nursery School | Academy Converter | 0.61 KM | |
| Lyndhurst School | Other Independent School | 0.65 KM | |
| Kings International College | Foundation School | Good | 0.76 KM |
| The Orchard Sure Start Children'S Centre | Children's Centre | 0.82 KM | |
| South Camberley Sure Start Children'S Centre | Children's Centre Linked Site | 1.58 KM |
Images
Nearby Streets
| Name | Average Price | Average Sqft | Distance |
|---|---|---|---|
| Watchetts Park Path | £ 0 | 0 | 0.00 KM |
| Shelley Court | £ 0 | 0 | 0.00 KM |
| Alexandra Avenue | £ 235,000 | 0 | 0.00 KM |
| Charles Street cycle path | £ 185,000 | 0 | 0.00 KM |
| York Terrace Lane | £ 0 | 0 | 0.00 KM |
Nearby Transport
| Name | NLC | TLC | Distance |
|---|---|---|---|
| Camberley | 5682 | CAM | 1.33 KM |
| Frimley | 5683 | FML | 1.98 KM |
| Blackwater | 5625 | BAW | 2.61 KM |
| Farnborough North | 5688 | FNN | 3.16 KM |
| Farnborough (Main) | 5521 | FNB | 3.56 KM |
Nearby Listings
| Address | Price | Type | Score | Distance |
|---|---|---|---|---|
| Gordon Avenue, Camberley | £ 700,000 | BUY | 6 / 10 | 0.00 KM |
| Gordon Avenue, Camberley, Surrey, GU15 | £ 630,000 | BUY | 6 / 10 | 0.04 KM |
| Camberley, Surrey, GU15 | £ 475,000 | BUY | Unknown | 0.05 KM |
| Gordon Avenue, Camberley | £ 725,000 | BUY | 7 / 10 | 0.06 KM |
| Gordon Avenue, Camberley, Surrey, GU15 | £ 500,000 | BUY | 7 / 10 | 0.06 KM |
Nearby Properties
| Address | Price | Distance |
|---|---|---|
| 189 Gordon Avenue | £ 288,000 | 0.05 KM |
| 195 Gordon Avenue | £ 330,000 | 0.05 KM |
| 177 Gordon Avenue | £ 615,000 | 0.05 KM |
| 167 Gordon Avenue | £ 295,000 | 0.05 KM |
| 213 Gordon Avenue | £ 542,500 | 0.05 KM |