Gilbert & Rose says ..
Embrace the charm and convenience of ground floor living with this inviting detached bungalow, situated in a sought after location
Property Oracle says ..
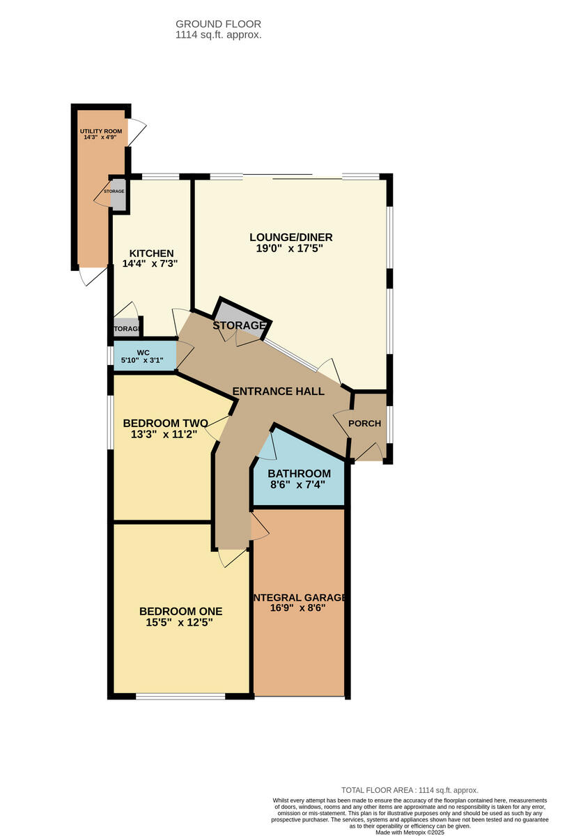
The property is a detached bungalow situated in the St James area of Benfleet, Essex. While the exact square footage isnt specified, the plot size is 1,114 square feet. The list price is £550,000. Nearby properties show a range of prices, suggesting some variability in the market. Several nearby detached bungalows are listed at significantly higher prices (£600,000-£875,000), while some detached houses are listed at lower prices (£300,000-£475,000). The average house price in the area is £414,448, with an average price per square foot of £332. The lack of square footage information for the subject property makes a precise price per square foot comparison impossible. The property’s condition appears to be fair. The interior images suggest that the property is dated and would benefit from some modernisation. The decor is traditional and the fixtures and fittings appear to be older. The garden is visible in the images and appears to be of a reasonable size, offering some outdoor space. The location benefits from being relatively close to several schools with good Ofsted ratings, and also has good transport links. The proximity to Leigh-on-Sea and other areas adds to its appeal. Considering the average house price in the area, the list price of £550,000 for this property seems potentially high, given its apparent need for modernisation and the lack of precise square footage information. However, the presence of a garden and its location are positive factors. A more accurate assessment of the property’s value would require a professional valuation and a precise measurement of the square footage.
Therefore, we give this property 6 / 10. *Disclaimer: This is our option and does constitute a recommendation or financial advice. Do your own research. *
- Price
- 6
- Condition
- 6
- Location
- 8
- Land
- 7
- Bedrooms
- 2
- Bathrooms
- 1
- Lot (est)
- 1,114.00
The heatmap indicates the level of crime in the area. The color of the heatmap indicates the crime severity and recency.
Metrics Year-on-Year
- Average area value
- 425,000.00 £Decreased by 8.87 %
- Average area rental value
- 2,435.00 £/moIncreased by 27.89 %
- Est rental Yield
- 6.88 %Increased by 40.41 %
- Crime Rate
- 4.00 %Unchanged by 0.00 %
Agent Activity
Gilbert & Rose created the listing.
Nearby Schools
| Name | Type | Ofsted | Distance |
|---|---|---|---|
| Hadleigh Infant And Nursery School | Academy Converter | Good | 0.98 KM |
| Hadleigh Junior School | Academy Converter | Good | 1.24 KM |
| Belfairs Academy | Academy Converter | Good | 1.87 KM |
| St. Michael'S School | Other Independent School | 2.13 KM | |
| Westwood Academy | Academy Converter | Outstanding | 2.16 KM |
Images
Nearby Streets
| Name | Average Price | Average Sqft | Distance |
|---|---|---|---|
| Warren Road | £ 1,410,000 | 0 | 0.00 KM |
| Broughton Road | £ 0 | 0 | 0.00 KM |
| Marshall Close | £ 495,000 | 0 | 0.00 KM |
| Shepherds Walk | £ 550,000 | 0 | 0.00 KM |
| Chapmans Close | £ 750,000 | 0 | 0.00 KM |
Nearby Transport
| Name | NLC | TLC | Distance |
|---|---|---|---|
| Leigh-On-Sea | 7446 | LES | 2.42 KM |
| Rayleigh | 6884 | RLG | 4.58 KM |
| Chalkwell | 7469 | CHW | 5.47 KM |
| Hockley | 6880 | HOC | 6.55 KM |
| Benfleet | 7439 | BEF | 7.04 KM |
Nearby Listings
| Address | Price | Type | Score | Distance |
|---|---|---|---|---|
| Scrub Lane, Benfleet, SS7 | £ 550,000 | BUY | 6 / 10 | 0.00 KM |
| Scrub Lane, Hadleigh, Essex, SS7 2JQ | £ 695,000 | BUY | 7 / 10 | 0.04 KM |
| Woodland Close, Hadleigh | £ 1,200,000 | BUY | 8 / 10 | 0.10 KM |
| Woodlands close | £ 850,000 | BUY | 7 / 10 | 0.10 KM |
| Woodland Close, Benfleet, SS7 | £ 845,000 | BUY | 6 / 10 | 0.11 KM |
Nearby Properties
| Address | Price | Distance |
|---|---|---|
| 2 Woodland Close | £ 385,000 | 0.10 KM |
| 11 Woodland Close | £ 680,000 | 0.10 KM |
| 14 Woodland Close | £ 300,000 | 0.10 KM |
| 121 Woodfield Road | £ 225,000 | 0.12 KM |
| 115 Woodfield Road | £ 590,000 | 0.12 KM |