BidX1 says ..
N/A
Property Oracle says ..
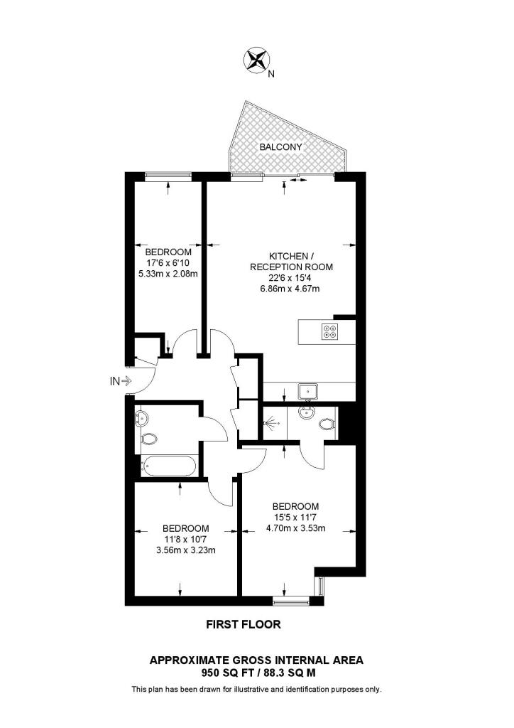
This is a three-bedroom flat on Regent’s Park Road, London. The property benefits from a desirable location with good access to transportation, schools, and local amenities. The flat appears to be in generally good condition, with a modern kitchen and bathrooms. The property includes a balcony. The asking price of £650,000 seems reasonable for the location and property type.
Therefore, we give this property 6 / 10. *Disclaimer: This is our option and does constitute a recommendation or financial advice. Do your own research. *
- Price
- 7
- Condition
- 7
- Location
- 8
- Land
- 4
- Bedrooms
- 3
- Bathrooms
- 2
The heatmap indicates the level of crime in the area. The color of the heatmap indicates the crime severity and recency.
Metrics Year-on-Year
- Average area value
- 1,012,083.00 £Decreased by 17.40 %
- Average area rental value
- 3,502.00 £/moIncreased by 23.09 %
- Est rental Yield
- 4.15 %Increased by 48.75 %
- Crime Rate
- 10.00 %Unchanged by 0.00 %
from 1,225,320.00 £
from 2,845.00 £/mo
from 2.79 %
from 10.00 %
Agent Activity
BidX1 created the listing.
Nearby Schools
| Name | Type | Ofsted | Distance |
|---|---|---|---|
| Haverstock School | Community School | Good | 0.16 KM |
| Primrose Hill School | Community School | Outstanding | 0.51 KM |
| Rhyl Community Primary School | Community School | Good | 0.58 KM |
| Harmood Children'S Centre | Children's Centre | 0.61 KM | |
| The Village School | Other Independent School | Outstanding | 0.71 KM |
Images
Nearby Streets
| Name | Average Price | Average Sqft | Distance |
|---|---|---|---|
| Belmont Street | £ 500,000 | 0 | 0.00 KM |
| Prince Albert Road | £ 600,000 | 0 | 0.00 KM |
| Steele's Road | £ 1,075,000 | 0 | 0.00 KM |
| Dalby Street | £ 0 | 0 | 0.00 KM |
| Hawley Street | £ 0 | 0 | 0.00 KM |
Nearby Transport
| Name | NLC | TLC | Distance |
|---|---|---|---|
| Kentish Town West | 1449 | KTW | 0.85 KM |
| Gospel Oak | 1409 | GPO | 1.36 KM |
| Kentish Town | 1553 | KTN | 1.67 KM |
| Camden Road | 1440 | CMD | 1.67 KM |
| Hampstead Heath | 1413 | HDH | 1.86 KM |
Nearby Listings
| Address | Price | Type | Score | Distance |
|---|---|---|---|---|
| Regents Park Road, London, NW1 | £ 650,000 | BUY | 6 / 10 | 0.00 KM |
| Regents Park Road, Chalk Farm, London, NW1 | £ 585,000 | BUY | Unknown | 0.01 KM |
| Regents Park Road, Primrose Hill, London, NW1 | £ 835,000 | BUY | 7 / 10 | 0.03 KM |
| Regents Park Road, London, NW1 | £ 850,000 | BUY | 5 / 10 | 0.03 KM |
| Regent Park Road, Primrose Hill, NW1 | £ 850,000 | BUY | 7 / 10 | 0.04 KM |
Nearby Properties
| Address | Price | Distance |
|---|---|---|
| 104b Gloucester Avenue | £ 665,000 | 0.20 KM |
| 104c Gloucester Avenue | £ 486,000 | 0.20 KM |
| 92 Gloucester Avenue | £ 720,000 | 0.20 KM |
| 140 Gloucester Avenue | £ 855,000 | 0.20 KM |
| 132 Gloucester Avenue | £ 150,000 | 0.20 KM |