Holme Crescent, Biggleswade
By Kennedy & Foster
£ 357,500
Reviews
3 out of 5 stars
Kennedy & Foster says ..
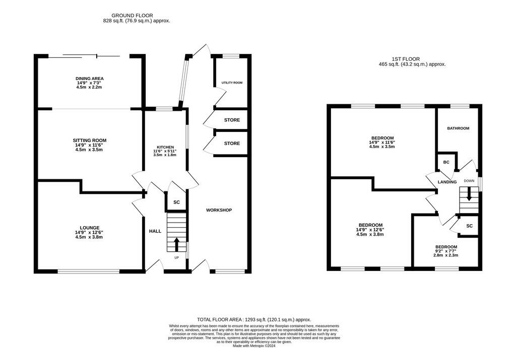
This 3 bedroom extended semi detached property is situated within walking distance to the train station and town centre and has accommodation as follows: Entrance hall, lounge, kitchen, dining/family room, 3 bedrooms and family bathroom. The property has the benefit of a driveway and gardens. Con...
Property Oracle says ..
This three-bedroom semi-detached house in Biggleswade offers a convenient location close to the train station and town centre. The property benefits from a reasonably sized garden, ideal for families. Internally, the property presents well although some updating could enhance its appeal. While the current décor is somewhat dated in parts, it is clean and habitable. The kitchen and bathroom appear functional though modernizations could further increase value. The presence of a driveway adds practical convenience. Three bedrooms offer suitable accommodation for a family, particularly given the nearby schools. The property presents a good opportunity for those seeking a family home with easy access to transport links and local amenities. However, more details on the plot size and a comparative price-per-square-foot analysis using more complete data from nearby properties would enable a more definitive market valuation.
Therefore, we give this property 6 / 10. *Disclaimer: This is our option and does constitute a recommendation or financial advice. Do your own research. *
- Price
- 7
- Condition
- 6
- Location
- 7
- Land
- 4
- Bedrooms
- 3
- Bathrooms
- 1
- Sqft (est)
- 1,293.00
The heatmap indicates the level of crime in the area. The color of the heatmap indicates the crime severity and recency.
Metrics Year-on-Year
- Average area value
- 366,068.00 £Increased by 3.56 %
- Est sale value
- 671,067.00 £Increased by 113.58 %
- Average area rental value
- 1,214.00 £/moDecreased by 2.57 %
- Est letting value
- 1,293.00 £/mo
- Est rental Yield
- 3.98 %Decreased by 5.91 %
- Crime Rate
- 10.00 %Unchanged by 0.00 %
Agent Activity
Kennedy & Foster created the listing.
Nearby Schools
| Name | Type | Ofsted | Distance |
|---|---|---|---|
| St Andrew'S Cofe Vc Lower School | Voluntary Controlled School | Good | 0.88 KM |
| Biggleswade Children'S Centre | Children's Centre | 0.93 KM | |
| Lawnside Academy | Academy Converter | 1.07 KM | |
| Biggleswade Academy | Academy Converter | Good | 1.20 KM |
| Stratton Upper School | Academy Converter | Requires improvement | 1.60 KM |
Images
Nearby Streets
| Name | Average Price | Average Sqft | Distance |
|---|---|---|---|
| B659 | £ 0 | 0 | 0.00 KM |
| National Cycle Route 12 | £ 205,000 | 0 | 0.00 KM |
| Victoria Place | £ 165,000 | 0 | 0.00 KM |
| Byron Close | £ 0 | 0 | 0.00 KM |
| Elphick Court | £ 0 | 0 | 0.00 KM |
Nearby Transport
| Name | NLC | TLC | Distance |
|---|---|---|---|
| Biggleswade | 6170 | BIW | 0.40 KM |
| Sandy | 6172 | SDY | 5.07 KM |
| Arlesey | 6171 | ARL | 6.29 KM |
Nearby Listings
| Address | Price | Type | Score | Distance |
|---|---|---|---|---|
| Holme Crescent, Biggleswade | £ 357,500 | BUY | 6 / 10 | 0.00 KM |
| Carrs Gardens, Biggleswade | £ 190,000 | BUY | 5 / 10 | 0.05 KM |
| Carrs Gardens, Biggleswade | £ 365,000 | BUY | 7 / 10 | 0.06 KM |
| Blunham Road, Biggleswade, SG18 | £ 190,000 | BUY | 6 / 10 | 0.07 KM |
| Blunham Road, Biggleswade, SG18 8BY | £ 245,000 | BUY | 6 / 10 | 0.11 KM |
Nearby Properties
| Address | Price | Distance |
|---|---|---|
| 16 South View | £ 250,000 | 0.09 KM |
| 10 South View | £ 152,000 | 0.09 KM |
| 7 South View | £ 210,000 | 0.09 KM |
| 11 South View | £ 145,000 | 0.09 KM |
| 14 South View | £ 175,000 | 0.09 KM |