Hamson Drive, Bollington, Macclesfield
By Gascoigne Halman
£ 415,000
Reviews
3 out of 5 stars
Gascoigne Halman says ..
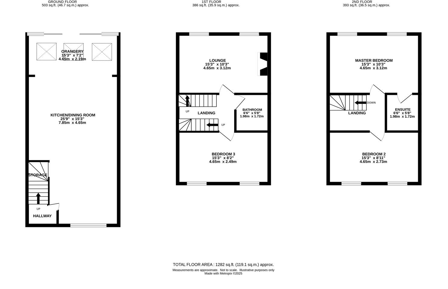
Situated in a very sought after location in Bollington, this beautifully presented town house boasts a good size private south west facing garden and a lovely well proportioned open plan dining kitchen with a family room.
Property Oracle says ..
Bollington is a popular town in Cheshire, known for its attractive setting and good local amenities. This property benefits from being close to several highly-rated primary schools, including Bollington St John’s Cofe Primary School, which is less than a kilometre away. The nearby train station provides convenient access to Macclesfield and other towns in the region. The property itself is a three-bedroom terraced house with a modern kitchen and conservatory extension. The images show a well-maintained interior, suggesting it is in good condition. The kitchen is modern and well-equipped. The property also has a small rear garden, which is a desirable feature in a town setting. However, the plot size is quite small. While the list price is higher than the average for the area, the property’s modern features, good condition, and desirable location justify the higher price point, particularly when compared to similar properties on Hamson Drive which are listed at significantly lower prices.
Therefore, we give this property 7 / 10. *Disclaimer: This is our option and does constitute a recommendation or financial advice. Do your own research. *
- Price
- 7
- Condition
- 9
- Location
- 9
- Land
- 3
- Bedrooms
- 3
- Bathrooms
- 2
- Sqft (est)
- 1,282.00
The heatmap indicates the level of crime in the area. The color of the heatmap indicates the crime severity and recency.
Metrics Year-on-Year
- Average area value
- 382,485.00 £Increased by 0.15 %
- Est sale value
- 520,492.00 £Increased by 38.10 %
- Average area rental value
- 895.00 £/moDecreased by 38.61 %
- Est letting value
- 0.00 £/moDecreased by 100.00 %
- Est rental Yield
- 2.81 %Decreased by 38.65 %
- Crime Rate
- 46.00 %Unchanged by 0.00 %
Agent Activity
Gascoigne Halman created the listing.
Nearby Schools
| Name | Type | Ofsted | Distance |
|---|---|---|---|
| Bollington St John'S Cofe Primary School | Voluntary Aided School | Good | 1.00 KM |
| Arnfield Independent School | Other Independent Special School | Good | 1.27 KM |
| Pott Shrigley Church School | Voluntary Aided School | Good | 1.61 KM |
| St Gregory'S Catholic Primary School | Voluntary Aided School | Good | 2.12 KM |
| Dean Valley Community Primary School | Community School | Good | 2.45 KM |
Images
Nearby Streets
| Name | Average Price | Average Sqft | Distance |
|---|---|---|---|
| Beeston Close | £ 375,000 | 0 | 0.00 KM |
| Store Street | £ 0 | 0 | 0.00 KM |
| Cow Lane | £ 0 | 0 | 0.00 KM |
| Hole in the Wall | £ 525,000 | 0 | 0.00 KM |
| Poplar Grove | £ 399,000 | 0 | 0.00 KM |
Nearby Transport
| Name | NLC | TLC | Distance |
|---|---|---|---|
| Adlington (Cheshire) | 2939 | ADC | 4.99 KM |
| Macclesfield | 2871 | MAC | 5.41 KM |
| Prestbury | 2875 | PRB | 5.77 KM |
| Middlewood | 2971 | MDL | 6.89 KM |
| Poynton | 2874 | PYT | 7.30 KM |
Nearby Listings
| Address | Price | Type | Score | Distance |
|---|---|---|---|---|
| Hamson Drive, Bollington, Macclesfield | £ 415,000 | BUY | 7 / 10 | 0.00 KM |
| Hamson Drive, Bollington, Macclesfield, SK10 | £ 210,000 | BUY | 7 / 10 | 0.02 KM |
| Hamson Drive, Bollington, Macclesfield, SK10 | £ 325,000 | BUY | 7 / 10 | 0.02 KM |
| Hamson Drive, Bollington, SK10 5SS | £ 235,000 | BUY | Unknown | 0.05 KM |
| Oakleigh House, Bollington, SK10 | £ 224,950 | BUY | 6 / 10 | 0.05 KM |
Nearby Properties
| Address | Price | Distance |
|---|---|---|
| 7 Hamson Drive | £ 321,000 | 0.02 KM |
| 12 Hamson Drive | £ 169,950 | 0.02 KM |
| 6 Hamson Drive | £ 180,000 | 0.02 KM |
| 19 Hamson Drive | £ 315,000 | 0.02 KM |
| 8 Hamson Drive | £ 158,000 | 0.02 KM |