GR
Beardall Street, Hucknall, NG15
By Griffin Property Co.
£ 160,000
Reviews
3 out of 5 stars
Griffin Property Co. says ..
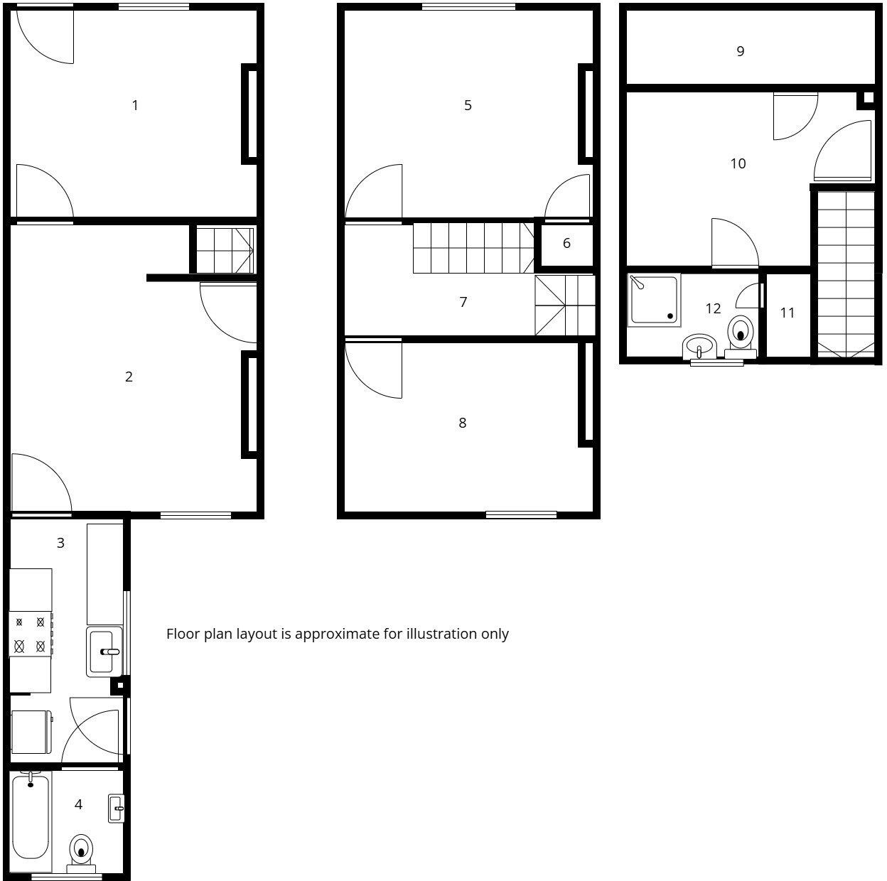
Key Features . Victorian mid Terrace . Three storey . Three double bedrooms . Two reception rooms . Family bathroom and shower room . Low maintenance garden . Close to all local amenities . Tram and train access . M1 motorway access . Viewing Highly Recommended Full Description G
Property Oracle says ..
Therefore, we give this property 6 / 10. *Disclaimer: This is our option and does constitute a recommendation or financial advice. Do your own research. *
- Price
- 8
- Condition
- 7
- Location
- 7
- Land
- 3
- Bedrooms
- 3
- Bathrooms
- 2
- Sqft (est)
- 1,143.00
The heatmap indicates the level of crime in the area. The color of the heatmap indicates the crime severity and recency.
Metrics Year-on-Year
- Average area value
- 221,400.00 £Decreased by 7.85 %
- Est sale value
- 425,196.00 £Increased by 67.57 %
- Average area rental value
- 1,122.00 £/moIncreased by 12.88 %
- Est letting value
- 1,143.00 £/mo
- Est rental Yield
- 6.08 %Increased by 22.58 %
- Crime Rate
- 6.00 %Unchanged by 0.00 %
from 240,248.00 £
from 253,746.00 £
from 994.00 £/mo
from 0.00 £/mo
from 4.96 %
from 6.00 %
Agent Activity
Griffin Property Co. marked this listing as sold.
Griffin Property Co. created the listing.
Nearby Schools
| Name | Type | Ofsted | Distance |
|---|---|---|---|
| Broomhill Junior School | Community School | Good | 0.65 KM |
| Market Place Children'S Centre | Children's Centre | 0.66 KM | |
| Butler'S Hill & Broomhill Children'S Centre | Children's Centre | 0.66 KM | |
| High Leys Children'S Centre | Children's Centre | 0.66 KM | |
| Butler'S Hill Infant And Nursery School | Community School | Good | 0.66 KM |
Images
Nearby Streets
| Name | Average Price | Average Sqft | Distance |
|---|---|---|---|
| Hallcroft Court | £ 0 | 0 | 0.00 KM |
| Laburnum Grove | £ 0 | 0 | 0.00 KM |
| Holly Close | £ 210,000 | 0 | 0.00 KM |
| Larch Close | £ 0 | 0 | 0.00 KM |
| Cavendish Close | £ 0 | 0 | 0.00 KM |
Nearby Transport
| Name | NLC | TLC | Distance |
|---|---|---|---|
| Hucknall | 1862 | HKN | 0.71 KM |
| Bulwell | 1865 | BLW | 3.74 KM |
| Newstead | 1863 | NSD | 4.79 KM |
| Kirkby-In-Ashfield | 1867 | KKB | 9.52 KM |
Nearby Listings
| Address | Price | Type | Score | Distance |
|---|---|---|---|---|
| Beardall Street, Hucknall, NG15 | £ 160,000 | BUY | 6 / 10 | 0.00 KM |
| Beardall Street, Hucknall, Nottingham, Nottinghamshire, NG15 | £ 160,000 | BUY | 7 / 10 | 0.03 KM |
| Beardall Street, Hucknall, NG15 | £ 130,000 | BUY | 6 / 10 | 0.03 KM |
| Beardall Street, Nottingham | £ 250,000 | BUY | 7 / 10 | 0.05 KM |
| Beardall Street, Hucknall, Nottinghamshire, NG15 7RP | £ 210,000 | BUY | 6 / 10 | 0.05 KM |
Nearby Properties
| Address | Price | Distance |
|---|---|---|
| 72 Beardall Street | £ 108,400 | 0.03 KM |
| 22 Beardall Street | £ 94,000 | 0.03 KM |
| 98 Beardall Street | £ 183,000 | 0.03 KM |
| 24 Beardall Street | £ 104,000 | 0.03 KM |
| 60 Beardall Street | £ 120,000 | 0.03 KM |