Victoria Parade, Broadstairs, Kent, CT10
By Miles & Barr
£ 325,000
Reviews
4 out of 5 stars
Miles & Barr says ..
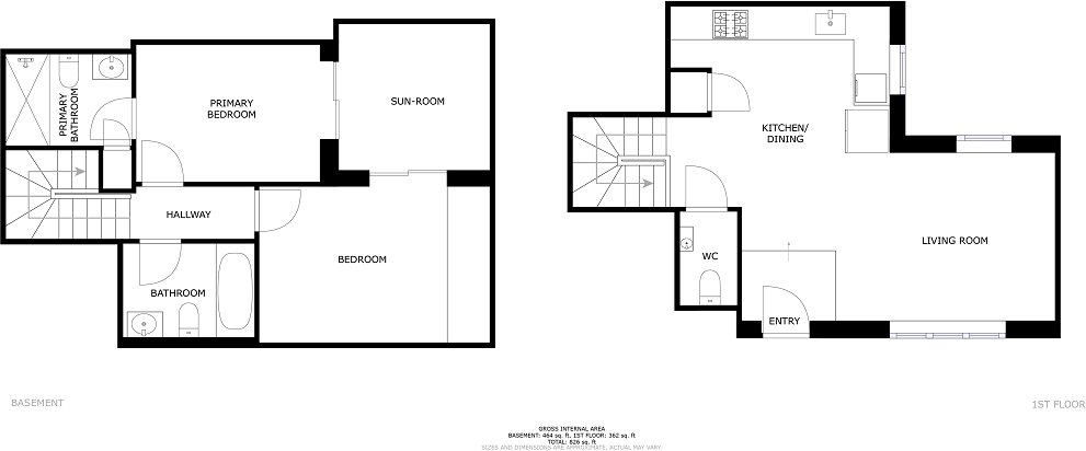
Stunning two-story seaside home steps from Viking Bay. Ground floor apartment with courtyard garden, underfloor heating, share of freehold. Great investment potential, Airbnb allowed, 7 years left on building guarantee. Contact Miles and Barr to view.
Property Oracle says ..
This property is a modern flat located in Broadstairs, Kent. It benefits from a great location, being close to several outstandingly rated schools and the Southeastern train line, providing easy access to other towns and cities. The flat itself is in excellent condition, with modern fixtures and fittings throughout. It also includes a private patio, adding to its appeal. While the list price is slightly above the average price per square foot for the area, the modern condition, desirable location, and additional outdoor space justify the price. The property is well presented and appears to be a good investment.
Therefore, we give this property 8 / 10. *Disclaimer: This is our option and does constitute a recommendation or financial advice. Do your own research. *
- Price
- 8
- Condition
- 10
- Location
- 9
- Land
- 6
- Bedrooms
- 2
- Bathrooms
- 2
- Sqft (est)
- 956.00
- Lot (est)
- 826.00
The heatmap indicates the level of crime in the area. The color of the heatmap indicates the crime severity and recency.
Metrics Year-on-Year
- Average area value
- 477,882.00 £Increased by 5.54 %
- Est sale value
- 438,804.00 £Increased by 37.01 %
- Average area rental value
- 1,256.00 £/moIncreased by 12.34 %
- Est letting value
- 956.00 £/mo
- Est rental Yield
- 3.15 %Increased by 6.42 %
- Crime Rate
- 85.00 %Unchanged by 0.00 %
Agent Activity
Miles & Barr created the listing.
Nearby Schools
| Name | Type | Ofsted | Distance |
|---|---|---|---|
| Bradstow School | Community Special School | Outstanding | 0.76 KM |
| Ekc Group | Further Education | 0.87 KM | |
| St Mildred'S Primary Infant School | Foundation School | Outstanding | 0.96 KM |
| Stone Bay School | Foundation Special School | Good | 1.00 KM |
| Haddon Dene School | Other Independent School | 1.27 KM |
Images
Nearby Streets
| Name | Average Price | Average Sqft | Distance |
|---|---|---|---|
| John Street | £ 475,000 | 0 | 0.00 KM |
| Serene Court | £ 500,000 | 0 | 0.00 KM |
| Buckingham Road | £ 0 | 0 | 0.00 KM |
| Chandos Road | £ 242,499 | 0 | 0.00 KM |
| Dundonald Road | £ 0 | 0 | 0.00 KM |
Nearby Transport
| Name | NLC | TLC | Distance |
|---|---|---|---|
| Broadstairs | 5006 | BSR | 0.98 KM |
| Dumpton Park | 5034 | DMP | 2.24 KM |
| Ramsgate | 5023 | RAM | 4.36 KM |
| Margate | 5018 | MAR | 8.32 KM |
Nearby Listings
| Address | Price | Type | Score | Distance |
|---|---|---|---|---|
| Victoria Parade, Broadstairs, Kent, CT10 | £ 325,000 | BUY | 8 / 10 | 0.00 KM |
| Victoria Parade, Broadstairs, CT10 | £ 500,000 | BUY | Unknown | 0.02 KM |
| 16 Victoria Parade, Broadstairs, CT10 | £ 395,000 | BUY | 6 / 10 | 0.03 KM |
| Buckingham Road, Broadstairs, Kent, CT10 | £ 375,000 | BUY | 7 / 10 | 0.07 KM |
| York Street, Broadstairs, CT10 | £ 365,000 | BUY | 5 / 10 | 0.08 KM |
Nearby Properties
| Address | Price | Distance |
|---|---|---|
| 11 Victoria Parade | £ 113,000 | 0.03 KM |
| 7 Victoria Parade | £ 300,000 | 0.04 KM |
| 5 Raglan Place | £ 390,000 | 0.09 KM |
| 4 Raglan Place | £ 360,000 | 0.09 KM |
| 15 York Street | £ 510,000 | 0.10 KM |