Move Revolution says ..
Exquisite modern apartment in Dorking town centre, one double bedroom, under NHBC Warranty. Open plan living, stunning views, close to amenities and train station. Enjoy vibrant town life in scenic Surrey.
Property Oracle says ..
Therefore, we give this property 6 / 10. *Disclaimer: This is our option and does constitute a recommendation or financial advice. Do your own research. *
- Price
- 8
- Condition
- 8
- Location
- 9
- Land
- 1
- Bedrooms
- 1
- Bathrooms
- 1
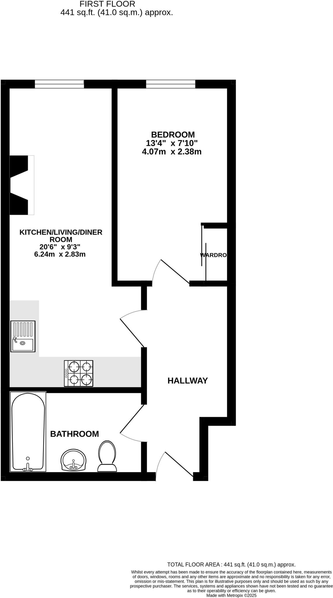
- Sqft (est)
- 441.00
The heatmap indicates the level of crime in the area. The color of the heatmap indicates the crime severity and recency.
Metrics Year-on-Year
- Average area value
- 304,767.00 £Decreased by 41.06 %
- Est sale value
- 206,388.00 £Increased by 2.18 %
- Average area rental value
- 1,483.00 £/moIncreased by 8.33 %
- Est letting value
- 882.00 £/moIncreased by 100.00 %
- Est rental Yield
- 5.84 %Increased by 83.65 %
- Crime Rate
- 33.00 %Unchanged by 0.00 %
from 517,113.00 £
from 201,978.00 £
from 1,369.00 £/mo
from 441.00 £/mo
from 3.18 %
from 33.00 %
Agent Activity
Move Revolution created the listing.
Nearby Schools
| Name | Type | Ofsted | Distance |
|---|---|---|---|
| The Ashcombe School | Academy Converter | Good | 0.58 KM |
| St Paul'S Cofe (Aided) Primary School | Voluntary Aided School | Outstanding | 0.64 KM |
| Dorking Nursery School | Local Authority Nursery School | Outstanding | 1.00 KM |
| Dorking Nursery School Sure Start Children'S Centre | Children's Centre | 1.01 KM | |
| St Joseph'S Catholic Primary School | Voluntary Aided School | Good | 1.12 KM |
Images
Nearby Streets
| Name | Average Price | Average Sqft | Distance |
|---|---|---|---|
| Stanleys Cottages | £ 0 | 0 | 0.00 KM |
| FP 75 | £ 0 | 0 | 0.00 KM |
| Mill Lane | £ 260,363 | 0 | 0.00 KM |
| St Martin's Walk | £ 0 | 0 | 0.00 KM |
| Fairfield Close | £ 500,000 | 0 | 0.00 KM |
Nearby Transport
| Name | NLC | TLC | Distance |
|---|---|---|---|
| Dorking (Deepdene) | 5412 | DPD | 0.65 KM |
| Dorking | 5357 | DKG | 0.88 KM |
| Dorking West | 5297 | DKT | 1.37 KM |
| Box Hill And Westhumble | 5403 | BXW | 2.24 KM |
| Holmwood | 5308 | HLM | 5.92 KM |
Nearby Listings
| Address | Price | Type | Score | Distance |
|---|---|---|---|---|
| Paper Mews, Dorking, RH4 | £ 215,000 | BUY | 6 / 10 | 0.00 KM |
| Flat 2, 304 High Street, Dorking, Surrey, RH4 1QX | £ 95,000 | BUY | Unknown | 0.04 KM |
| Flat 2, 304 High Street, Dorking, Surrey, RH4 1QX | £ 110,000 | BUY | 6 / 10 | 0.04 KM |
| JUBILEE TERRACE, DORKING, RH4 | £ 425,000 | BUY | 6 / 10 | 0.07 KM |
| Cotmandene, Dorking, Surrey, RH4 | £ 550,000 | BUY | 7 / 10 | 0.10 KM |
Nearby Properties
| Address | Price | Distance |
|---|---|---|
| 281 High Street | £ 450,000 | 0.04 KM |
| 291a High Street | £ 250,000 | 0.07 KM |
| 342 High Street | £ 147,000 | 0.08 KM |
| 16 Jubilee Terrace | £ 110,000 | 0.09 KM |
| 3 Lonsdale Place | £ 280,000 | 0.09 KM |