Pearsons says ..
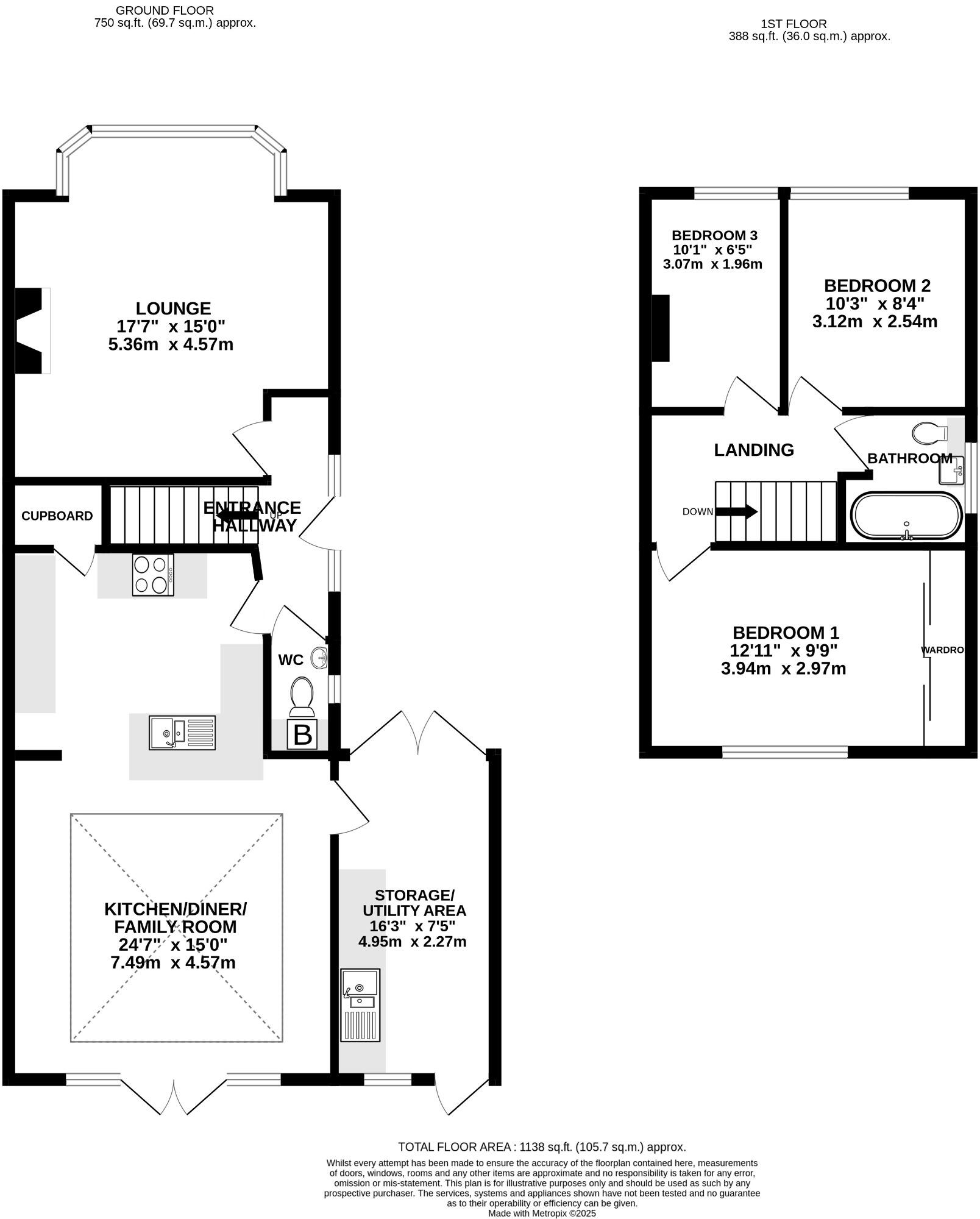
This substantially extended three bedroom semi-detached house is located in a popular cul-de-sac within the highly regarded Uplands development. The superbly presented internal accommodation comprises; entrance hallway, cloakroom, lounge with a bay window and a most impressive open-plan 24' kitch...
Property Oracle says ..
This property is a 3-bedroom semi-detached house located in Fareham, Hampshire. The location is convenient, with nearby schools, transportation links (Fareham train station is 0.37km away), and local amenities. The property itself is in good condition, with a recently updated kitchen and conservatory extension. Images show a modern and well-maintained interior and exterior. The garden is a good size. While the plot size is not specified, the photos show a sizable lawn and patio area. Compared to nearby properties, the list price seems slightly above average but reasonable considering its condition and location. The average price for similar properties in the area is £393,611, and this property is listed at £450,000. The average price per sqft in the area is £336, and this property is approximately £395 per sqft. This difference is likely due to the property’s updated features and good condition.
Therefore, we give this property 7 / 10. *Disclaimer: This is our option and does constitute a recommendation or financial advice. Do your own research. *
- Price
- 7
- Condition
- 9
- Location
- 8
- Land
- 7
- Bedrooms
- 3
- Bathrooms
- 1
- Sqft (est)
- 1,138.00
The heatmap indicates the level of crime in the area. The color of the heatmap indicates the crime severity and recency.
Metrics Year-on-Year
- Average area value
- 316,146.00 £Decreased by 21.41 %
- Est sale value
- 426,750.00 £Increased by 22.15 %
- Average area rental value
- 2,250.00 £/moIncreased by 65.56 %
- Est letting value
- 2,276.00 £/moIncreased by 100.00 %
- Est rental Yield
- 8.54 %Increased by 110.86 %
- Crime Rate
- 2.00 %Unchanged by 0.00 %
Agent Activity
Pearsons created the listing.
Nearby Schools
| Name | Type | Ofsted | Distance |
|---|---|---|---|
| Kingsgate School | Other Independent Special School | Good | 0.53 KM |
| Uplands Primary School | Community School | Good | 0.63 KM |
| Fareham College | Further Education | Outstanding | 0.90 KM |
| Wallisdean Infant School | Community School | Outstanding | 1.03 KM |
| Wallisdean Junior School | Community School | Good | 1.05 KM |
Images
Nearby Streets
| Name | Average Price | Average Sqft | Distance |
|---|---|---|---|
| Hillary Close | £ 355,000 | 0 | 0.00 KM |
| Tennyson Gardens | £ 0 | 0 | 0.00 KM |
| Faregrove Court | £ 402,500 | 0 | 0.00 KM |
| Tanglewood | £ 750,000 | 0 | 0.00 KM |
| Braemar Close | £ 0 | 0 | 0.00 KM |
Nearby Transport
| Name | NLC | TLC | Distance |
|---|---|---|---|
| Fareham | 5900 | FRM | 0.37 KM |
| Portchester | 5928 | PTC | 7.64 KM |
| Swanwick | 5920 | SNW | 8.35 KM |
| Botley | 5894 | BOE | 9.94 KM |
Nearby Listings
| Address | Price | Type | Score | Distance |
|---|---|---|---|---|
| CHAUCER CLOSE, FAREHAM | £ 450,000 | BUY | 7 / 10 | 0.00 KM |
| Chaucer Close, Fareham | £ 475,000 | BUY | 7 / 10 | 0.02 KM |
| BEAUFORT AVENUE, FAREHAM | £ 375,000 | BUY | 6 / 10 | 0.10 KM |
| Denbigh Drive, Fareham | £ 350,000 | BUY | 7 / 10 | 0.15 KM |
| Beaufort Avenue, Fareham, PO16 | £ 450,000 | BUY | 7 / 10 | 0.15 KM |
Nearby Properties
| Address | Price | Distance |
|---|---|---|
| 15 Chaucer Close | £ 225,000 | 0.02 KM |
| 4 Chaucer Close | £ 248,000 | 0.02 KM |
| 25 Chaucer Close | £ 230,000 | 0.02 KM |
| 22 Chaucer Close | £ 372,000 | 0.02 KM |
| 28 Chaucer Close | £ 292,000 | 0.02 KM |