FR
Dexter Close, St. Albans, Hertfordshire, AL1
By Frost's Estate Agents
£ 265,000
Reviews
3 out of 5 stars
Frost's Estate Agents says ..
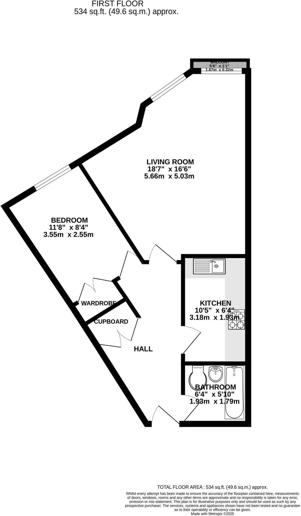
Being sold chain free and situated on the first floor of a popular development with a lift servicing all floors, is this bright one-bedroom apartment complete with allocated parking, located to the south of the city centre with convenient access to the station, local shops, and major road links.
Property Oracle says ..
Therefore, we give this property 6 / 10. *Disclaimer: This is our option and does constitute a recommendation or financial advice. Do your own research. *
- Price
- 8
- Condition
- 6
- Location
- 8
- Land
- 3
- Bedrooms
- 1
- Bathrooms
- 1
- Sqft (est)
- 534.00
The heatmap indicates the level of crime in the area. The color of the heatmap indicates the crime severity and recency.
Metrics Year-on-Year
- Average area value
- 445,205.00 £Decreased by 3.69 %
- Est sale value
- 344,430.00 £Increased by 20.34 %
- Average area rental value
- 1,836.00 £/moIncreased by 4.79 %
- Est letting value
- 1,068.00 £/moUnchanged by 0.00 %
- Est rental Yield
- 4.95 %Increased by 8.79 %
- Crime Rate
- 8.00 %Unchanged by 0.00 %
from 462,259.00 £
from 286,224.00 £
from 1,752.00 £/mo
from 1,068.00 £/mo
from 4.55 %
from 8.00 %
Agent Activity
Frost's Estate Agents created the listing.
Nearby Schools
| Name | Type | Ofsted | Distance |
|---|---|---|---|
| St Alban & St Stephen Catholic Primary School & Nursery | Voluntary Aided School | Outstanding | 0.39 KM |
| Fleetville Junior School | Academy Converter | 0.41 KM | |
| Sa8 Fleetville Family Centre | Children's Centre | 0.47 KM | |
| Cunningham Hill Infant School | Community School | Outstanding | 0.49 KM |
| Cunningham Hill Junior School | Community School | Outstanding | 0.49 KM |
Images
Nearby Streets
| Name | Average Price | Average Sqft | Distance |
|---|---|---|---|
| Ramsey Close | £ 0 | 0 | 0.00 KM |
| Shirley Road | £ 0 | 0 | 0.00 KM |
| Park Avenue | £ 0 | 0 | 0.00 KM |
| Buttermere Close | £ 0 | 0 | 0.00 KM |
| De Novo Place | £ 0 | 0 | 0.00 KM |
Nearby Transport
| Name | NLC | TLC | Distance |
|---|---|---|---|
| St Albans City | 1548 | SAC | 1.20 KM |
| St Albans Abbey | 1562 | SAA | 2.87 KM |
| Park Street | 1561 | PKT | 3.64 KM |
| How Wood (Hertfordshire) | 1563 | HWW | 4.60 KM |
| Bricket Wood | 1560 | BWO | 6.69 KM |
Nearby Listings
| Address | Price | Type | Score | Distance |
|---|---|---|---|---|
| Dexter Close, St. Albans, Hertfordshire, AL1 | £ 360,000 | BUY | 6 / 10 | 0.00 KM |
| Dexter Close, St. Albans, Hertfordshire, AL1 | £ 265,000 | BUY | 6 / 10 | 0.00 KM |
| Albanian Court, Camp Road, St Albans, Herts, AL1 | £ 300,000 | BUY | 6 / 10 | 0.04 KM |
| Camp Road, St. Albans, AL1 5EA | £ 290,000 | BUY | 6 / 10 | 0.04 KM |
| Albanian Court, 85 Camp Road, St. Albans, AL1 | £ 400,000 | BUY | 5 / 10 | 0.05 KM |
Nearby Properties
| Address | Price | Distance |
|---|---|---|
| 3 Park View Close | £ 690,000 | 0.14 KM |
| 113 Camp Road | £ 400,000 | 0.18 KM |
| 115 Camp Road | £ 194,000 | 0.18 KM |
| 111 Camp Road | £ 400,000 | 0.18 KM |
| 109 Camp Road | £ 117,000 | 0.18 KM |