Symon Smith says ..
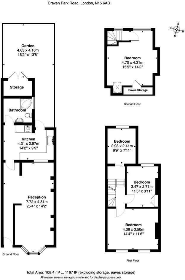
Craven Park Road, Stamford Hill, N15 Symon Smith Estate Agents are delighted to present this charming inter-war, mid-terraced family home with a loft conversion, located in the heart of Stamford Hill. The property offers four bedrooms, a bright and airy through living room, a se...
Property Oracle says ..
The property is a four-bedroom house located in Springfield, Hackney, London. It is close to transportation links and schools, but some of the schools have poor Ofsted ratings. The property requires renovation, particularly in the kitchen and bathroom. The garden is a reasonable size but needs maintenance. The price seems reasonable given the size and location of the property, but the condition should be taken into account.
Therefore, we give this property 5 / 10. *Disclaimer: This is our option and does constitute a recommendation or financial advice. Do your own research. *
- Price
- 6
- Condition
- 3
- Location
- 6
- Land
- 6
- Bedrooms
- 4
- Bathrooms
- 0
- Sqft (est)
- 1,166.81
The heatmap indicates the level of crime in the area. The color of the heatmap indicates the crime severity and recency.
Metrics Year-on-Year
- Average area value
- 471,552.00 £Decreased by 8.85 %
- Est sale value
- 812,099.76 £Decreased by 18.60 %
- Average area rental value
- 2,088.00 £/moIncreased by 1.66 %
- Est letting value
- 3,500.43 £/moUnchanged by 0.00 %
- Est rental Yield
- 5.31 %Increased by 11.55 %
- Crime Rate
- 3.00 %Unchanged by 0.00 %
Agent Activity
Symon Smith created the listing.
Nearby Schools
| Name | Type | Ofsted | Distance |
|---|---|---|---|
| Bnei Zion Community School | Other Independent School | Inadequate | 0.10 KM |
| Bnos Zion Of Bobov | Other Independent School | Requires improvement | 0.17 KM |
| Bobov Primary Boys School | Other Independent School | Inadequate | 0.26 KM |
| Yesodey Hatorah Senior Girls School | Voluntary Aided School | Special Measures | 0.33 KM |
| Lubavitch Junior Boys | Academy Sponsor Led | 0.40 KM |
Images
Nearby Streets
| Name | Average Price | Average Sqft | Distance |
|---|---|---|---|
| Barry Avenue | £ 0 | 0 | 0.00 KM |
| Fairview Road | £ 0 | 0 | 0.00 KM |
| Olinda Road | £ 841,665 | 0 | 0.00 KM |
| Platinum Mews | £ 700,000 | 0 | 0.00 KM |
| A10 | £ 0 | 0 | 0.00 KM |
Nearby Transport
| Name | NLC | TLC | Distance |
|---|---|---|---|
| South Tottenham | 7404 | STO | 0.54 KM |
| Stamford Hill | 6968 | SMH | 0.77 KM |
| Seven Sisters | 6931 | SVS | 0.92 KM |
| Stoke Newington | 6934 | SKW | 1.25 KM |
| Tottenham Hale | 6951 | TOM | 1.76 KM |
Nearby Listings
| Address | Price | Type | Score | Distance |
|---|---|---|---|---|
| Craven Park Road, London | £ 800,000 | BUY | 5 / 10 | 0.00 KM |
| Craven Park Road, London | £ 750,000 | BUY | 5 / 10 | 0.05 KM |
| Barry Avenue, LONDON N15 | £ 1,100,000 | BUY | 6 / 10 | 0.07 KM |
| Olinda Road, London, N16 | £ 900,000 | BUY | 7 / 10 | 0.08 KM |
| Olinda Road, London, N16 | £ 750,000 | BUY | 6 / 10 | 0.09 KM |
Nearby Properties
| Address | Price | Distance |
|---|---|---|
| 50 Craven Park Road | £ 770,000 | 0.04 KM |
| 40 Craven Park Road | £ 655,000 | 0.04 KM |
| 102 Craven Park Road | £ 420,000 | 0.04 KM |
| 70 Craven Park Road | £ 265,000 | 0.04 KM |
| 72 Craven Park Road | £ 660,000 | 0.04 KM |