SA
Fencer Hill Park, Gosforth, Newcastle Upon Tyne
By Sanderson Young
£ 1,000,000
Sanderson Young says ..
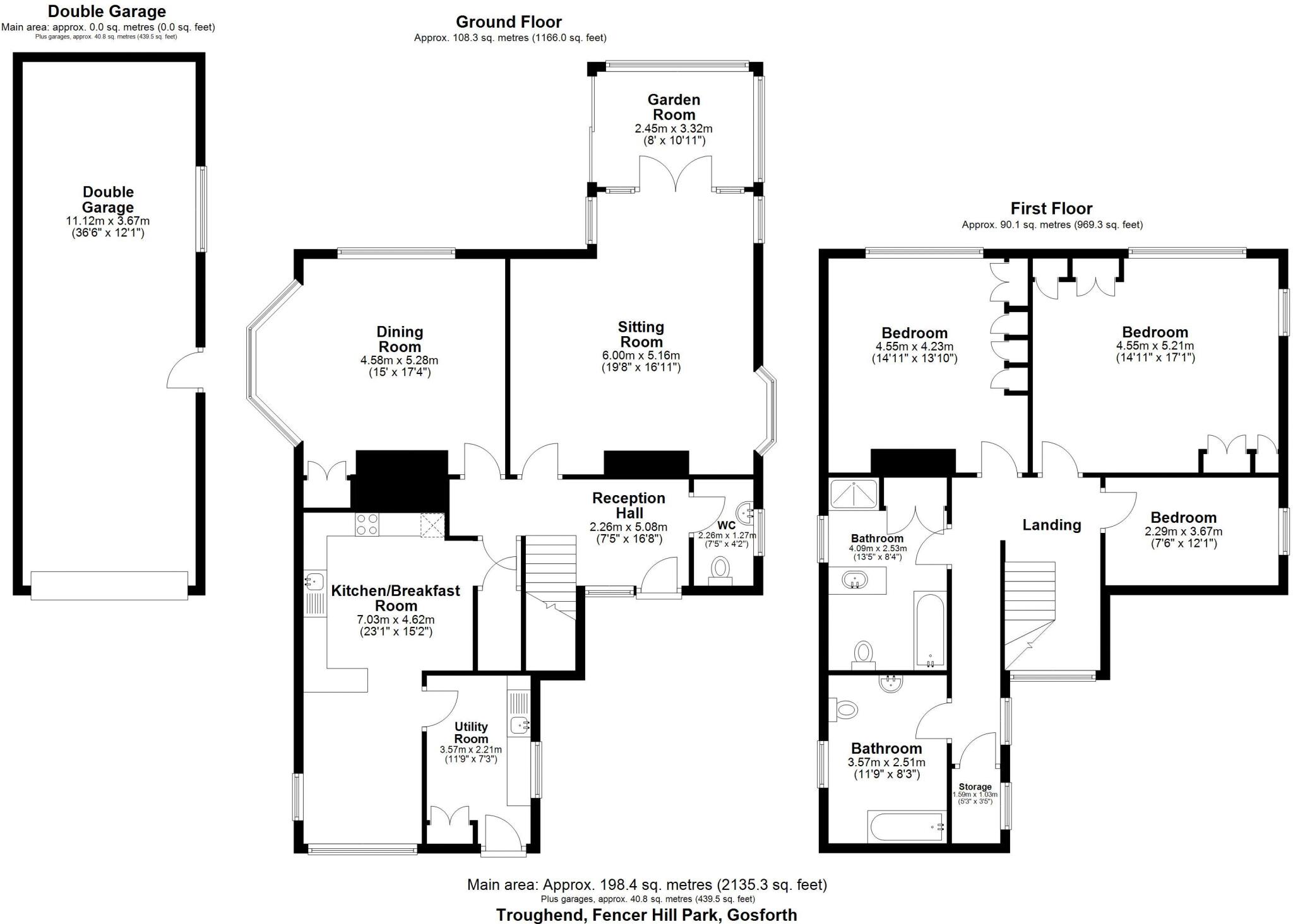
Troughend provides a fabulous, two storey detached family home with beautiful gardens, set back on the south facing side of the exclusive Fencer Hill Park and represents one of only twelve houses within this enviable position. This lovely home sits on site of just under ½ an acre and pr...
- Bedrooms
- 3
- Bathrooms
- 2
The heatmap indicates the level of crime in the area. The color of the heatmap indicates the crime severity and recency.
Metrics Year-on-Year
- Average area value
- 436,250.00 £Increased by 29.63 %
- Average area rental value
- 1,046.00 £/moIncreased by 15.20 %
- Est rental Yield
- 2.88 %Decreased by 11.11 %
- Crime Rate
- 3.00 %Unchanged by 0.00 %
from 336,531.00 £
from 908.00 £/mo
from 3.24 %
from 3.00 %
Agent Activity
Sanderson Young created the listing.
Nearby Schools
| Name | Type | Ofsted | Distance |
|---|---|---|---|
| Broadway East First School | Foundation School | Good | 0.85 KM |
| Gosforth Park First School | Foundation School | Good | 0.85 KM |
| St Oswald'S Catholic Primary School, Gosforth | Academy Converter | 0.94 KM | |
| Great Park Academy | Free Schools | 1.02 KM | |
| Gosforth Academy | Academy Converter | 1.03 KM |
Images
Nearby Streets
| Name | Average Price | Average Sqft | Distance |
|---|---|---|---|
| Great North Road | £ 0 | 0 | 0.00 KM |
| Beech Close | £ 0 | 0 | 0.00 KM |
| Arden Avenue | £ 0 | 0 | 0.00 KM |
| Beverley Close | £ 375,000 | 0 | 0.00 KM |
| Celandine Close | £ 0 | 0 | 0.00 KM |
Nearby Transport
| Name | NLC | TLC | Distance |
|---|---|---|---|
| Manors | 7603 | MAS | 5.90 KM |
| Newcastle | 7728 | NCL | 6.04 KM |
| Cramlington | 7579 | CRM | 7.79 KM |
| Dunston | 7744 | DOT | 8.30 KM |
| Metrocentre | 7725 | MCE | 8.46 KM |
Nearby Listings
| Address | Price | Type | Score | Distance |
|---|---|---|---|---|
| Fencer Hill Park, Gosforth, Newcastle Upon Tyne | £ 1,000,000 | BUY | Unknown | 0.00 KM |
| Fencer Hill Park, Gosforth, Newcastle upon Tyne | £ 850,000 | BUY | 7 / 10 | 0.04 KM |
| Greystoke Park, Gosforth, NE3 | £ 240,000 | BUY | Unknown | 0.13 KM |
| Greystoke Park, Newcastle Upon Tyne, NE3 | £ 215,000 | BUY | 6 / 10 | 0.18 KM |
| Great North Road, Brunton Park, NE3 | £ 395,000 | BUY | 7 / 10 | 0.19 KM |
Nearby Properties
| Address | Price | Distance |
|---|---|---|
| 33 Polwarth Crescent | £ 340,000 | 0.12 KM |
| 5 Polwarth Crescent | £ 363,000 | 0.12 KM |
| 28 Polwarth Crescent | £ 322,500 | 0.12 KM |
| 12 Polwarth Crescent | £ 345,000 | 0.12 KM |
| 21 Polwarth Crescent | £ 283,955 | 0.12 KM |