Hunters says ..
GUIDE PRICE OF £350,000 - £375,000. Welcome to this charming house located on Quarry Walk in the picturesque town of Hythe. This delightful property features a well-proportioned reception room, perfect for both relaxation and entertaining guests. With two comfortable bedrooms, this home is ideal ...
Property Oracle says ..
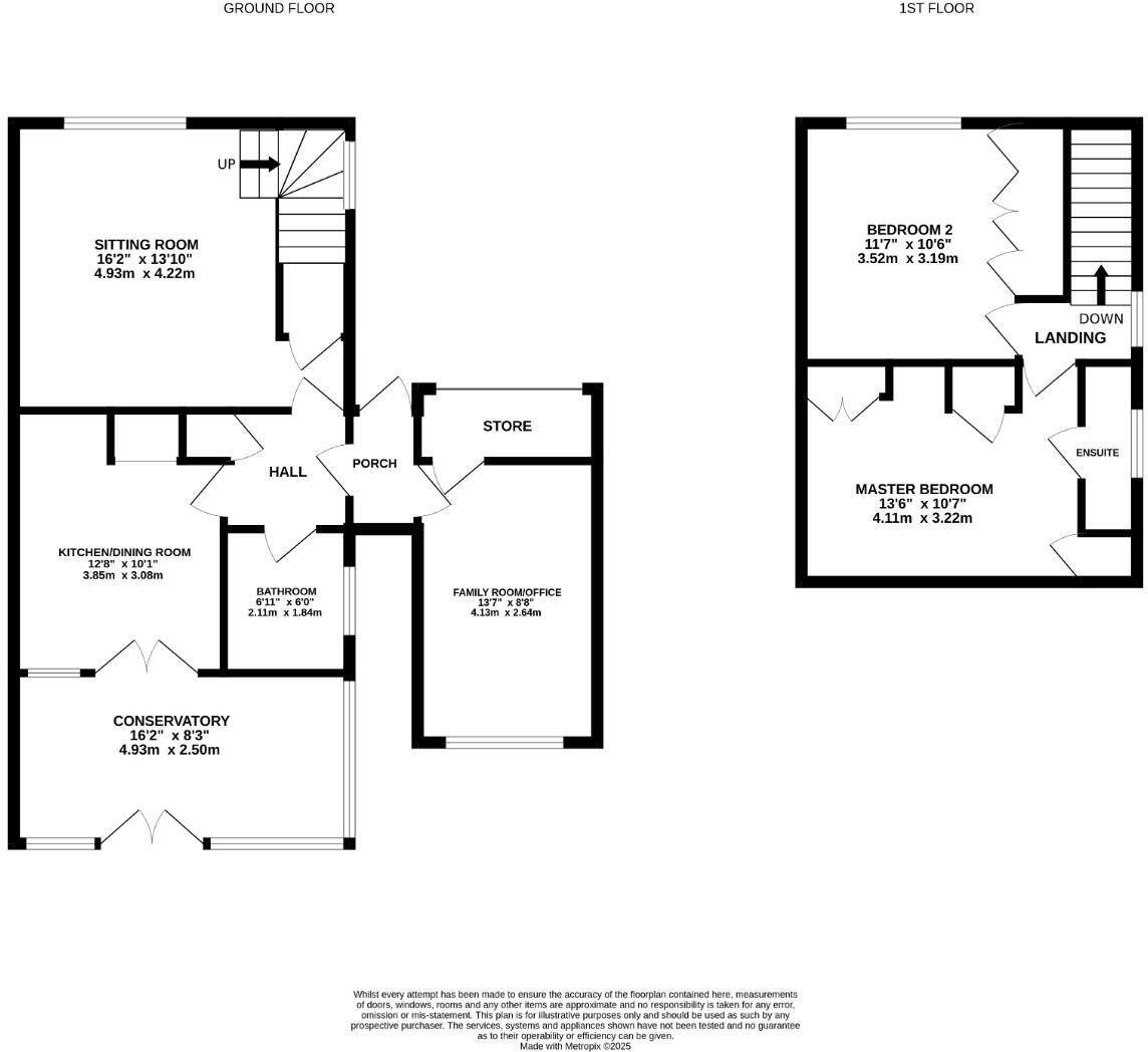
This is a two-bedroom semi-detached house located on Quarry Walk in Hythe. The property is in a desirable location, close to local schools and amenities. The house has a modern kitchen and bathrooms, but some areas could benefit from cosmetic updating. It features a good-sized garden and a garage. The listing price of £350,000 appears reasonable when compared to similar properties in the area.
Therefore, we give this property 6 / 10. *Disclaimer: This is our option and does constitute a recommendation or financial advice. Do your own research. *
- Price
- 7
- Condition
- 6
- Location
- 7
- Land
- 7
- Bedrooms
- 2
- Bathrooms
- 2
- Sqft (est)
- 906.58
The heatmap indicates the level of crime in the area. The color of the heatmap indicates the crime severity and recency.
Metrics Year-on-Year
- Average area value
- 695,750.00 £Increased by 35.80 %
- Est sale value
- 528,536.14 £Increased by 15.22 %
- Average area rental value
- 1,400.00 £/moDecreased by 11.56 %
- Est letting value
- 906.58 £/moUnchanged by 0.00 %
- Est rental Yield
- 2.41 %Decreased by 35.04 %
- Crime Rate
- 24.00 %Unchanged by 0.00 %
Agent Activity
Hunters created the listing.
Nearby Schools
| Name | Type | Ofsted | Distance |
|---|---|---|---|
| Seabrook Church Of England Primary School | Voluntary Controlled School | Outstanding | 0.68 KM |
| Folkestone, St Martin'S Church Of England Primary School | Voluntary Controlled School | Outstanding | 1.37 KM |
| Cheriton Primary School | Foundation School | Good | 2.06 KM |
| All Soul'S Church Of England Primary School | Academy Converter | 3.10 KM | |
| Harcourt Primary School | Foundation School | Good | 3.33 KM |
Images
Nearby Streets
| Name | Average Price | Average Sqft | Distance |
|---|---|---|---|
| Highridge | £ 0 | 0 | 0.00 KM |
| Owens Close | £ 0 | 0 | 0.00 KM |
| Colin's Way | £ 0 | 0 | 0.00 KM |
| Brook Close | £ 0 | 0 | 0.00 KM |
| Victoria Terrace | £ 0 | 0 | 0.00 KM |
Nearby Transport
| Name | NLC | TLC | Distance |
|---|---|---|---|
| Folkestone West | 5027 | FKW | 4.28 KM |
| Sandling | 5025 | SDG | 5.72 KM |
| Folkestone Central | 5035 | FKC | 5.96 KM |
| Westenhanger | 5030 | WHA | 8.85 KM |
Nearby Listings
| Address | Price | Type | Score | Distance |
|---|---|---|---|---|
| Quarry Walk, Hythe | £ 350,000 | BUY | 6 / 10 | 0.00 KM |
| Quarry Walk, Seabrook, CT21 | £ 275,000 | BUY | 5 / 10 | 0.03 KM |
| High Ridge, Seabrook, Hythe, Kent | £ 240,000 | BUY | 5 / 10 | 0.06 KM |
| High Ridge, Hythe, Kent, CT21 | £ 425,000 | BUY | 7 / 10 | 0.07 KM |
| High Ridge, Hythe, Kent | £ 400,000 | BUY | 7 / 10 | 0.08 KM |
Nearby Properties
| Address | Price | Distance |
|---|---|---|
| 4 Quarry Walk | £ 210,000 | 0.04 KM |
| 20 Quarry Walk | £ 225,000 | 0.04 KM |
| 13 Quarry Walk | £ 305,000 | 0.04 KM |
| 21 Quarry Walk | £ 160,000 | 0.04 KM |
| 41 High Ridge | £ 230,000 | 0.07 KM |