Parrs Wood Road, East Didsbury
By Gascoigne Halman
£ 370,000
Reviews
3 out of 5 stars
Gascoigne Halman says ..
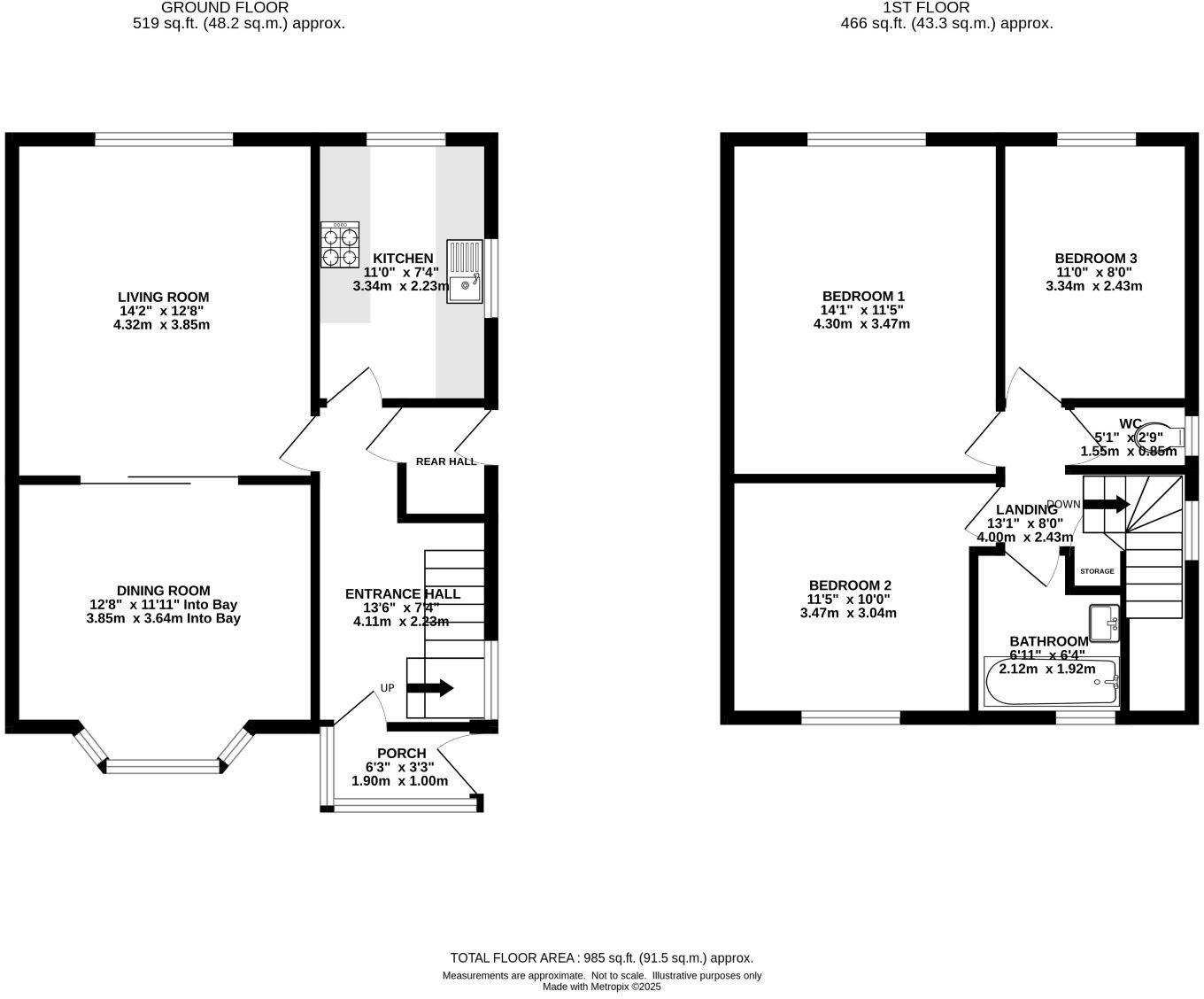
A well presented and spacious three bedroom, bay fronted semi detached property, located on a corner plot with gardens to three sides and close to local amenities, excellent transport links and with views over Fog Lane Park. Off road parking for two cars to the front of the property and immaculat...
Property Oracle says ..
This is a three-bedroom semi-detached property on Parrs Wood Road in East Didsbury. The house offers a good amount of living space at 984.9 sqft and includes a well-maintained garden. The interior is modern, although some areas could use updating. The property is well-located, with good access to schools and transportation. The asking price of £370,000 appears reasonable given the property’s features and location.
Therefore, we give this property 7 / 10. *Disclaimer: This is our option and does constitute a recommendation or financial advice. Do your own research. *
- Price
- 7
- Condition
- 7
- Location
- 8
- Land
- 8
- Bedrooms
- 3
- Bathrooms
- 1
- Sqft (est)
- 984.90
The heatmap indicates the level of crime in the area. The color of the heatmap indicates the crime severity and recency.
Metrics Year-on-Year
- Average area value
- 320,833.00 £Increased by 5.35 %
- Est sale value
- 505,253.70 £Increased by 67.10 %
- Average area rental value
- 1,380.00 £/moDecreased by 15.49 %
- Est letting value
- 1,969.80 £/moIncreased by 100.00 %
- Est rental Yield
- 5.16 %Decreased by 19.75 %
- Crime Rate
- 0.00 %
Agent Activity
Gascoigne Halman created the listing.
Nearby Schools
| Name | Type | Ofsted | Distance |
|---|---|---|---|
| The Barlow Rc High School And Specialist Science College | Voluntary Aided School | Good | 0.80 KM |
| St Catherine'S Rc Primary School | Voluntary Aided School | Outstanding | 0.83 KM |
| St Cuthbert'S Rc Primary School | Voluntary Aided School | Good | 0.92 KM |
| Ladybarn Primary School | Academy Converter | 1.05 KM | |
| Beaver Road Primary School | Academy Converter | 1.20 KM |
Images
Nearby Streets
| Name | Average Price | Average Sqft | Distance |
|---|---|---|---|
| Albury Drive | £ 0 | 0 | 0.00 KM |
| Adria Avenue | £ 250,000 | 0 | 0.00 KM |
| Mere Avenue | £ 0 | 0 | 0.00 KM |
| Clayton Avenue | £ 1,495,000 | 0 | 0.00 KM |
| Swinly Crescent | £ 0 | 0 | 0.00 KM |
Nearby Transport
| Name | NLC | TLC | Distance |
|---|---|---|---|
| Burnage | 2945 | BNA | 0.30 KM |
| East Didsbury | 2949 | EDY | 1.52 KM |
| Mauldeth Road | 2867 | MAU | 1.54 KM |
| Gatley | 2953 | GTY | 3.59 KM |
| Levenshulme | 2862 | LVM | 3.71 KM |
Nearby Listings
| Address | Price | Type | Score | Distance |
|---|---|---|---|---|
| Parrs Wood Road, East Didsbury | £ 370,000 | BUY | 7 / 10 | 0.00 KM |
| Norwood Avenue, Didsbury, Manchester, M20 | £ 385,000 | BUY | 7 / 10 | 0.17 KM |
| Parrs Wood Road, Withington, Manchester, M20 | £ 275,000 | BUY | 6 / 10 | 0.19 KM |
| Norwood Avenue, Didsbury, Manchester, M20 | £ 350,000 | BUY | 5 / 10 | 0.22 KM |
| Leyland Avenue, Didsbury | £ 350,000 | BUY | 7 / 10 | 0.23 KM |
Nearby Properties
| Address | Price | Distance |
|---|---|---|
| 18 Leafield Avenue | £ 245,000 | 0.08 KM |
| 30 Brayside Road | £ 260,000 | 0.08 KM |
| 15 Leafield Avenue | £ 252,500 | 0.08 KM |
| 25 Leafield Avenue | £ 308,000 | 0.08 KM |
| 39 Brayside Road | £ 110,000 | 0.08 KM |