MADE says ..
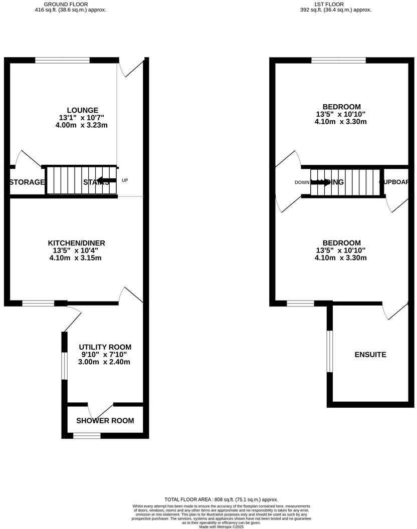
A well presented two bedroom, two bathroom TERRACED FAMILY HOME with OFF ROAD PARKING situated in a favoured CLIVE VALE LOCATION, just a short stroll from the shopping facilities at Ore Village, Hastings historic Old Town and the sea front. The accommodation here is arranged as a BRIGHT LIVING RO...
Property Oracle says ..
This terraced property on Old London Road in Hastings offers a substantial living space at 2,032 sqft. The house includes two bathrooms and two bedrooms, making it suitable for a small family or couple. The interior is well-maintained with modern fittings in the kitchen and bathrooms, though some may consider certain aspects needing updating to current trends. The property benefits from a garden and proximity to local schools and transportation. Considering the square footage and the general condition, the asking price of £225,000 seems competitive within the Hastings market.
Therefore, we give this property 6 / 10. *Disclaimer: This is our option and does constitute a recommendation or financial advice. Do your own research. *
- Price
- 8
- Condition
- 7
- Location
- 6
- Land
- 6
- Bedrooms
- 2
- Bathrooms
- 2
- Sqft (est)
- 2,032.00
The heatmap indicates the level of crime in the area. The color of the heatmap indicates the crime severity and recency.
Metrics Year-on-Year
- Average area value
- 363,828.00 £Increased by 14.90 %
- Est sale value
- 656,336.00 £Decreased by 25.23 %
- Average area rental value
- 1,450.00 £/moIncreased by 23.61 %
- Est letting value
- 2,032.00 £/moUnchanged by 0.00 %
- Est rental Yield
- 4.78 %Increased by 7.42 %
- Crime Rate
- 16.00 %Unchanged by 0.00 %
Agent Activity
MADE created the listing.
Nearby Schools
| Name | Type | Ofsted | Distance |
|---|---|---|---|
| Sandown Primary School And Nursery | Community School | Good | 0.18 KM |
| Ore Village Primary Academy | Academy Sponsor Led | Good | 0.48 KM |
| East Hastings Children'S Centre | Children's Centre | 0.98 KM | |
| All Saints Cofe Junior Academy | Academy Sponsor Led | Good | 1.07 KM |
| The Hastings Academy | Academy Sponsor Led | Good | 1.09 KM |
Images
Nearby Streets
| Name | Average Price | Average Sqft | Distance |
|---|---|---|---|
| Lords Lane | £ 0 | 0 | 0.00 KM |
| Granger Way | £ 0 | 0 | 0.00 KM |
| Teddler Terrace | £ 0 | 0 | 0.00 KM |
| Crowborough Road | £ 220,000 | 0 | 0.00 KM |
| North Passage | £ 995,000 | 0 | 0.00 KM |
Nearby Transport
| Name | NLC | TLC | Distance |
|---|---|---|---|
| Ore | 5021 | ORE | 1.90 KM |
| Three Oaks | 5028 | TOK | 3.03 KM |
| Hastings | 5219 | HGS | 3.82 KM |
| Doleham | 5036 | DLH | 4.91 KM |
| St Leonards Warrior Square | 5239 | SLQ | 5.57 KM |
Nearby Listings
| Address | Price | Type | Score | Distance |
|---|---|---|---|---|
| Old London Road, Hastings | £ 267,500 | BUY | 7 / 10 | 0.00 KM |
| Old London Road, Hastings | £ 225,000 | BUY | 6 / 10 | 0.00 KM |
| Winchelsea Road, Hastings | £ 325,000 | BUY | 6 / 10 | 0.04 KM |
| Winchelsea Road, Hastings | £ 269,500 | BUY | 6 / 10 | 0.04 KM |
| Clifton Road, Hastings | £ 220,000 | BUY | 5 / 10 | 0.04 KM |
Nearby Properties
| Address | Price | Distance |
|---|---|---|
| 102 Clifton Road | £ 355,000 | 0.06 KM |
| 104 Clifton Road | £ 42,000 | 0.06 KM |
| 89 Clifton Road | £ 450,000 | 0.06 KM |
| 82 Victoria Avenue | £ 219,950 | 0.09 KM |
| 80 Victoria Avenue | £ 187,000 | 0.09 KM |