Hartismere Road, Fulham Broadway, London, SW6
By Foxtons
£ 1,000,000
Reviews
4 out of 5 stars
Foxtons says ..
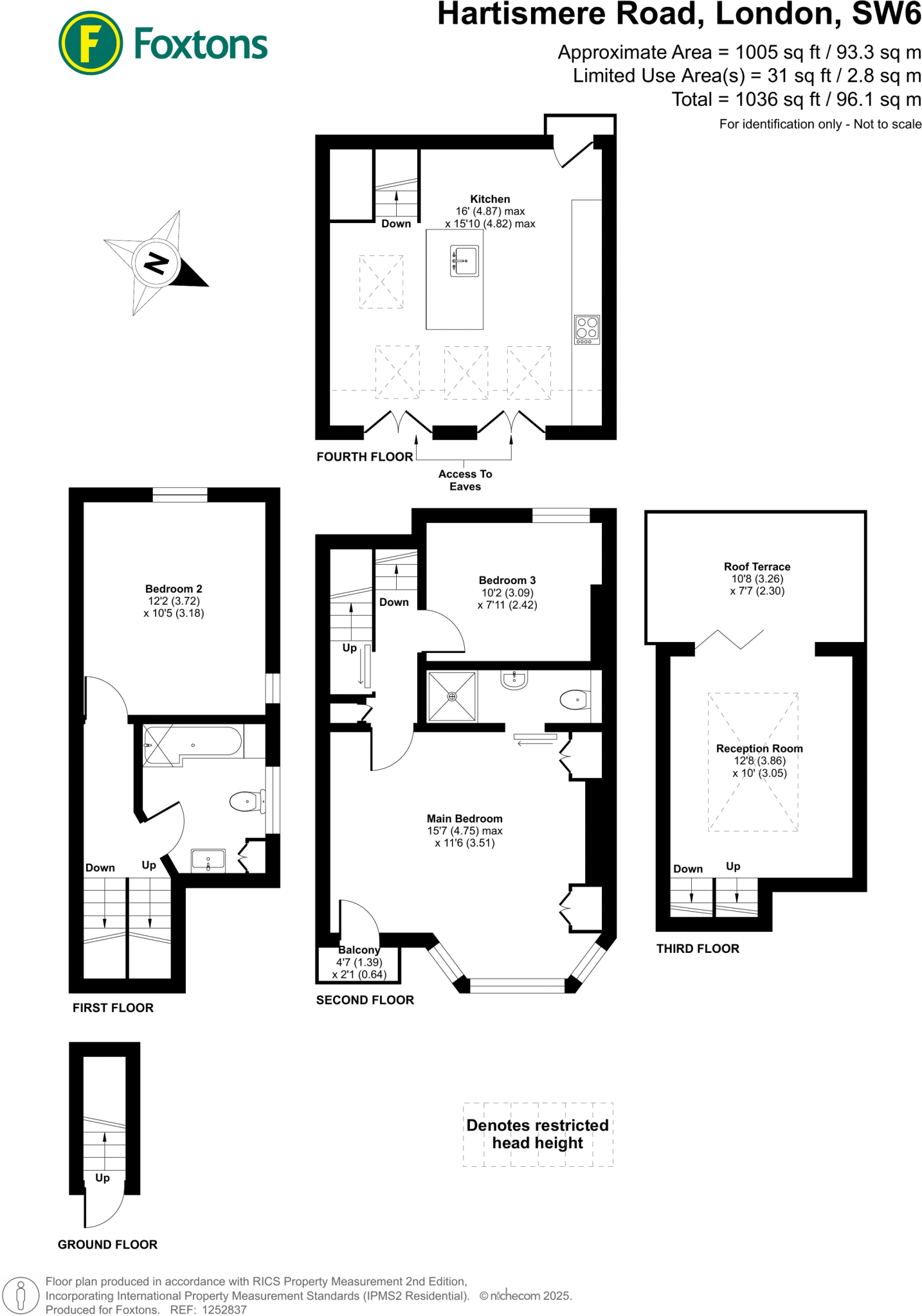
This beautifully presented three bedroom property is ideally situated just moments from local amenities, offering superb living accommodation with ample storage space and lovely wood floors.
Property Oracle says ..
Fulham Broadway is a highly sought-after area in London, known for its excellent transport links, popular shops, and proximity to the River Thames. The presence of several well-regarded schools nearby further enhances its desirability, making it an attractive location for families and professionals alike. The property’s location within this area contributes positively to its overall value.
Based on the provided images, the property appears to be in excellent condition. It has been recently renovated or refurbished to a high standard, with a modern kitchen and bathrooms. The property shows no signs of significant wear and tear.
While the exact plot size isn’t specified, the images reveal the presence of a substantial roof terrace offering outdoor space. This adds to the property’s appeal and overall value.
The list price of £1,000,000 is in line with the average price of £958,146 for the area. Considering the property’s apparent excellent condition, modern finishes, and the added benefit of the roof terrace, the asking price appears reasonable, even potentially slightly below market value compared to similar properties in the vicinity. The lack of square footage data prevents a precise price-per-square-foot comparison, however, the overall impression is one of fair value.
Therefore, we give this property 9 / 10. *Disclaimer: This is our option and does constitute a recommendation or financial advice. Do your own research. *
- Price
- 9
- Condition
- 10
- Location
- 10
- Land
- 8
- Bedrooms
- 3
- Bathrooms
- 2
- Sqft (est)
- 839.50
- Lot (est)
- 1,005.00
The heatmap indicates the level of crime in the area. The color of the heatmap indicates the crime severity and recency.
Metrics Year-on-Year
- Average area value
- 778,925.00 £Decreased by 20.14 %
- Est sale value
- 868,882.50 £Increased by 17.08 %
- Average area rental value
- 2,952.00 £/moIncreased by 25.08 %
- Est letting value
- 2,518.50 £/moIncreased by 50.00 %
- Est rental Yield
- 4.55 %Increased by 56.90 %
- Crime Rate
- 3.00 %Unchanged by 0.00 %
Agent Activity
Foxtons created the listing.
Nearby Schools
| Name | Type | Ofsted | Distance |
|---|---|---|---|
| St Thomas Of Canterbury Catholic Primary School | Voluntary Aided School | Good | 0.43 KM |
| Normand Croft Community School For Early Years And Primary Education | Community School | Good | 0.45 KM |
| Kensington Prep School | Other Independent School | 0.47 KM | |
| Psla Children'S Centre Services At Normand Croft Community School | Children's Centre Linked Site | 0.47 KM | |
| Evergreen Primary School | Other Independent School | Requires improvement | 0.62 KM |
Images
Nearby Streets
| Name | Average Price | Average Sqft | Distance |
|---|---|---|---|
| John Smith Avenue | £ 0 | 0 | 0.00 KM |
| Bishop's Road | £ 475,000 | 0 | 0.00 KM |
| Goaters Alley | £ 850,000 | 0 | 0.00 KM |
| Epirus Road | £ 0 | 0 | 0.00 KM |
| Jervis Road | £ 0 | 0 | 0.00 KM |
Nearby Transport
| Name | NLC | TLC | Distance |
|---|---|---|---|
| West Brompton | 8875 | WBP | 1.07 KM |
| Kensington (Olympia) | 3092 | KPA | 1.99 KM |
| Imperial Wharf | 9586 | IMW | 2.39 KM |
| Putney | 5603 | PUT | 2.66 KM |
| Wandsworth Town | 5576 | WNT | 2.83 KM |
Nearby Listings
| Address | Price | Type | Score | Distance |
|---|---|---|---|---|
| Hartismere Road, Fulham Broadway, London, SW6 | £ 1,000,000 | BUY | 9 / 10 | 0.00 KM |
| Mirabel Road, Fulham | £ 560,000 | BUY | 6 / 10 | 0.02 KM |
| Fabian Road, London, SW6 | £ 1,500,000 | BUY | Unknown | 0.02 KM |
| Fabian Road, London, SW6 | £ 1,100,000 | BUY | 5 / 10 | 0.02 KM |
| Hartismere Road, London | £ 1,700,000 | BUY | 7 / 10 | 0.02 KM |
Nearby Properties
| Address | Price | Distance |
|---|---|---|
| 58 Fabian Road | £ 787,500 | 0.02 KM |
| 72 Hartismere Road | £ 1,400,000 | 0.02 KM |
| 34 Fabian Road | £ 1,200,000 | 0.02 KM |
| 32 Hartismere Road | £ 1,270,000 | 0.02 KM |
| 30 Fabian Road | £ 860,000 | 0.02 KM |