Branksomewood Road, FLEET, GU51
By McCarthy Holden
£ 280,000
Reviews
3 out of 5 stars
McCarthy Holden says ..
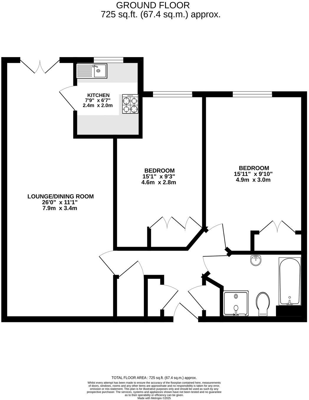
An extremely well presented two-bedroom retirement property which is offered to the market with no onward chain. The property is situated in a town centre location within the Blue Triangle area of Fleet close to an extensive range of amenities.
Property Oracle says ..
This property is a 2-bedroom apartment located in Fleet, Hampshire. The apartment is in excellent condition, with modern fixtures and fittings throughout. The images show a well-maintained property with a contemporary design. The apartment has access to communal gardens, providing some outdoor space. Fleet is a popular town with good transport links, including a train station providing links to London. There are also several schools and amenities nearby. While the property is smaller than the average size for the area, its modern condition and desirable location make it a potentially attractive option for buyers. The list price is lower than the average for the area, but comparable properties in the same development have sold for higher prices.
Therefore, we give this property 7 / 10. *Disclaimer: This is our option and does constitute a recommendation or financial advice. Do your own research. *
- Price
- 7
- Condition
- 9
- Location
- 8
- Land
- 6
- Bedrooms
- 2
- Bathrooms
- 1
- Sqft (est)
- 67.40
- Lot (est)
- 725.00
The heatmap indicates the level of crime in the area. The color of the heatmap indicates the crime severity and recency.
Metrics Year-on-Year
- Average area value
- 399,167.00 £Increased by 7.59 %
- Est sale value
- 24,938.00 £Increased by 3.64 %
- Average area rental value
- 1,292.00 £/moIncreased by 3.03 %
- Est letting value
- 67.40 £/moUnchanged by 0.00 %
- Est rental Yield
- 3.88 %Decreased by 4.43 %
- Crime Rate
- 5.00 %Unchanged by 0.00 %
Agent Activity
McCarthy Holden created the listing.
Nearby Schools
| Name | Type | Ofsted | Distance |
|---|---|---|---|
| Fleet Fireflies Children'S Centre | Children's Centre Linked Site | 0.39 KM | |
| Heatherside Infant School | Community School | Outstanding | 0.91 KM |
| Heatherside Junior School | Community School | Outstanding | 0.91 KM |
| Court Moor School | Community School | Good | 1.27 KM |
| All Saints Church Of England Aided Junior School | Voluntary Aided School | Good | 1.48 KM |
Images
Nearby Streets
| Name | Average Price | Average Sqft | Distance |
|---|---|---|---|
| Floricans | £ 0 | 0 | 0.00 KM |
| Greenwood Manor | £ 0 | 0 | 0.00 KM |
| Glebe Court | £ 1,150,000 | 0 | 0.00 KM |
| Church Court | £ 230,000 | 0 | 0.00 KM |
| Hart Shopping Centre | £ 0 | 0 | 0.00 KM |
Nearby Transport
| Name | NLC | TLC | Distance |
|---|---|---|---|
| Fleet | 5522 | FLE | 1.83 KM |
| Winchfield | 5528 | WNF | 6.85 KM |
| Sandhurst (Berks) | 5646 | SND | 8.48 KM |
| Blackwater | 5625 | BAW | 9.34 KM |
| Farnham | 5545 | FNH | 9.76 KM |
Nearby Listings
| Address | Price | Type | Score | Distance |
|---|---|---|---|---|
| Branksomewood Road, FLEET, GU51 | £ 280,000 | BUY | 7 / 10 | 0.00 KM |
| Branksomewood Road, Fleet | £ 150,000 | BUY | 7 / 10 | 0.04 KM |
| Branksomewood Road, Fleet | £ 140,000 | BUY | Unknown | 0.04 KM |
| Branksomewood Road, Fleet | £ 160,000 | BUY | 5 / 10 | 0.04 KM |
| Cadogan Court, Fleet Town Centre | £ 166,000 | BUY | Unknown | 0.04 KM |
Nearby Properties
| Address | Price | Distance |
|---|---|---|
| Rockwood | £ 890,501 | 0.07 KM |
| 14a Victoria Road | £ 575,000 | 0.09 KM |
| 6 Victoria Road | £ 400,000 | 0.09 KM |
| 10 Victoria Road | £ 360,000 | 0.09 KM |
| 24a Victoria Road | £ 585,000 | 0.09 KM |