Norman Lane, Castle Hill, Ebbsfleet Valley, Swanscombe, DA10
By Robinson Jackson
£ 101,500
Reviews
3 out of 5 stars
Robinson Jackson says ..
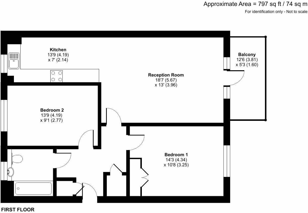
**SHARED OWNERSHIP** 35% SHARE £101,500. Robinson Jackson are delighted to offer this fantastic opportunity to get yourself onto the property ladder! Generously sized throughout with 2-double bedroom, open plan living/dining area, bathroom, substantial size entrance hall, l...
Property Oracle says ..
This property is a two-bedroom, one-bathroom apartment situated in the Ebbsfleet Valley development in Swanscombe, Kent. The apartment is part of a shared ownership scheme, with the listed price representing a 35% share. From the photographs, the apartment appears modern and well-maintained, with contemporary furnishings and fixtures. The open-plan living area provides a spacious feel, and the balcony offers a small outdoor area. The proximity to good schools and transport links is a positive aspect. However, it is important to note that the property is part of a shared ownership scheme which might have certain restrictions and limitations. The relatively low price for a two-bedroom property reflects the fact it’s a shared ownership scheme and the location’s current market position, rather than the inherent value of the apartment itself. Further investigation into the overall market value and the specific terms of the shared ownership scheme are required before a final assessment on the property can be made.
Therefore, we give this property 6 / 10. *Disclaimer: This is our option and does constitute a recommendation or financial advice. Do your own research. *
- Price
- 7
- Condition
- 9
- Location
- 7
- Land
- 2
- Bedrooms
- 2
- Bathrooms
- 1
- Sqft (est)
- 797.00
The heatmap indicates the level of crime in the area. The color of the heatmap indicates the crime severity and recency.
Metrics Year-on-Year
- Average area value
- 333,285.00 £Decreased by 9.11 %
- Est sale value
- 306,845.00 £Decreased by 16.12 %
- Average area rental value
- 1,531.00 £/moDecreased by 16.61 %
- Est letting value
- 797.00 £/moDecreased by 50.00 %
- Est rental Yield
- 5.51 %Decreased by 8.32 %
- Crime Rate
- 18.00 %Unchanged by 0.00 %
Agent Activity
Robinson Jackson created the listing.
Nearby Schools
| Name | Type | Ofsted | Distance |
|---|---|---|---|
| Cherry Orchard Primary Academy | Academy Sponsor Led | 0.13 KM | |
| Swanscombe Children'S Centre | Children's Centre | 0.74 KM | |
| Manor Community Primary School | Academy Converter | Good | 0.74 KM |
| The Ebbsfleet Academy | Academy Sponsor Led | Good | 0.97 KM |
| The Craylands School | Community School | Good | 1.20 KM |
Images
Nearby Streets
| Name | Average Price | Average Sqft | Distance |
|---|---|---|---|
| Fastrack Castle Hill East | £ 0 | 0 | 0.00 KM |
| Mackerness Road | £ 0 | 0 | 0.00 KM |
| DS20 | £ 0 | 0 | 0.00 KM |
| The Observatory | £ 0 | 0 | 0.00 KM |
| Christabel Close | £ 500,000 | 0 | 0.00 KM |
Nearby Transport
| Name | NLC | TLC | Distance |
|---|---|---|---|
| Swanscombe | 5156 | SWM | 1.47 KM |
| Ebbsfleet International | 5566 | EBD | 1.85 KM |
| Northfleet | 5120 | NFL | 2.33 KM |
| Greenhithe For Bluewater | 5138 | GNH | 3.19 KM |
| Longfield | 5114 | LGF | 4.52 KM |
Nearby Listings
| Address | Price | Type | Score | Distance |
|---|---|---|---|---|
| Norman Lane, Castle Hill, Ebbsfleet Valley, Swanscombe, DA10 | £ 101,500 | BUY | 6 / 10 | 0.00 KM |
| Norman Lane, Castle Hill, Ebbsfleet Valley, Swanscombe, DA10 | £ 103,250 | BUY | 6 / 10 | 0.00 KM |
| Castle Hill Eastern Quarry, Ebbsfleet, Kent, DA10 1GY | £ 514,995 | BUY | 6 / 10 | 0.06 KM |
| Alkerden Heights, Castle Hill, Ebbsfleet, DA10 1GY | £ 306,995 | BUY | 6 / 10 | 0.06 KM |
| Castle Hill Eastern Quarry, Ebbsfleet, Kent, DA10 1GY | £ 489,995 | BUY | 6 / 10 | 0.06 KM |
Nearby Properties
| Address | Price | Distance |
|---|---|---|
| 45 Bailey Drive | £ 447,000 | 0.21 KM |
| 23 Forrest Shaw | £ 450,000 | 0.37 KM |
| 12 Forrest Shaw | £ 415,000 | 0.37 KM |
| 74 Leonard Avenue | £ 285,000 | 0.41 KM |
| 28 Leonard Avenue | £ 367,000 | 0.41 KM |