The Street, Alveston, South Gloucestershire, BS35
By Milburys
£ 1,375,000
Reviews
3 out of 5 stars
Milburys says ..
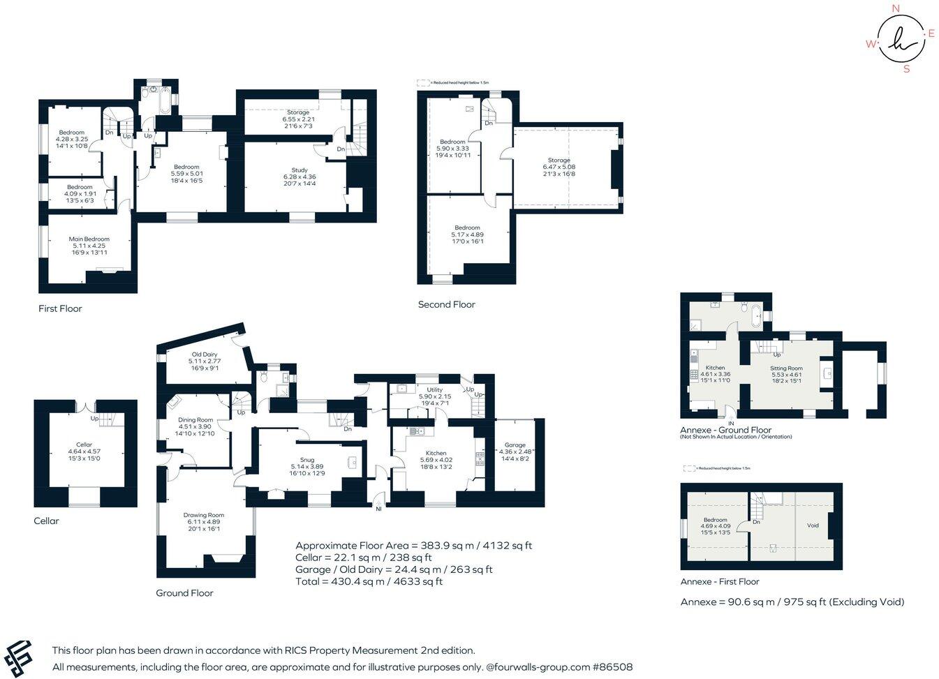
Just imagine the many family histories this wonderful home has witnessed over the centuries! Grade II Listed and dated 1628 over the front door, it is a period house of note with a detailed and illustrated entry within ‘The Rural Houses of North Avon & South Gloucestershire 1400-1720...
Property Oracle says ..
This is a substantial farmhouse located in the village of Alveston, South Gloucestershire. The property features seven bedrooms and three bathrooms. While the square footage is not provided, the images suggest a spacious interior. The property includes a large garden and additional land, making it suitable for a variety of uses. The interior retains many original features, giving it a traditional feel. While the property appears to be in reasonable condition, some aspects could benefit from modernisation. The property is located near local schools and amenities, but it is not located in a major urban center. Nearby train stations are approximately 8km away.
Therefore, we give this property 6 / 10. *Disclaimer: This is our option and does constitute a recommendation or financial advice. Do your own research. *
- Price
- 5
- Condition
- 6
- Location
- 7
- Land
- 9
- Bedrooms
- 7
- Bathrooms
- 3
The heatmap indicates the level of crime in the area. The color of the heatmap indicates the crime severity and recency.
Metrics Year-on-Year
- Average area value
- 697,500.00 £Increased by 25.15 %
- Average area rental value
- 1,408.00 £/moDecreased by 13.35 %
- Est rental Yield
- 2.42 %Decreased by 30.86 %
- Crime Rate
- 0.00 %
Agent Activity
Milburys created the listing.
Nearby Schools
| Name | Type | Ofsted | Distance |
|---|---|---|---|
| St Helen'S Church Of England Primary School | Voluntary Controlled School | Outstanding | 0.78 KM |
| Marlwood School | Academy Sponsor Led | Requires improvement | 1.58 KM |
| Gillingstool Primary School | Community School | Requires improvement | 1.95 KM |
| Thornbury Children'S Centre | Children's Centre Linked Site | 1.99 KM | |
| St Mary'S Church Of England Primary School, Thornbury | Voluntary Aided School | Outstanding | 2.55 KM |
Images
Nearby Streets
| Name | Average Price | Average Sqft | Distance |
|---|---|---|---|
| Barnwell Place | £ 442,500 | 0 | 0.00 KM |
| Locks Acre | £ 100,000 | 0 | 0.00 KM |
| West View | £ 0 | 0 | 0.00 KM |
| Lime Grove | £ 0 | 0 | 0.00 KM |
| Tanners Court | £ 160,000 | 0 | 0.00 KM |
Nearby Transport
| Name | NLC | TLC | Distance |
|---|---|---|---|
| Patchway | 3213 | PWY | 8.26 KM |
| Bristol Parkway | 3230 | BPW | 8.70 KM |
Nearby Listings
| Address | Price | Type | Score | Distance |
|---|---|---|---|---|
| The Street, Alveston, South Gloucestershire, BS35 | £ 1,375,000 | BUY | 6 / 10 | 0.00 KM |
| Barnwell Place, Bristol, United Kingdom, BS35 | £ 425,000 | BUY | 8 / 10 | 0.29 KM |
| Courville Close, Alveston, BS35 | £ 305,000 | BUY | 7 / 10 | 0.30 KM |
| Courville Close (Alverston Grange), Alveston | £ 299,000 | BUY | 6 / 10 | 0.31 KM |
| Courville Close, Alveston, Bristol | £ 285,000 | BUY | 7 / 10 | 0.34 KM |
Nearby Properties
| Address | Price | Distance |
|---|---|---|
| Crossways House | £ 400,000 | 0.34 KM |
| The Wickets | £ 610,000 | 0.34 KM |
| 8 Thornbury Road | £ 235,000 | 0.34 KM |
| 6 Thornbury Road | £ 310,000 | 0.34 KM |
| 1 Thornbury Road | £ 302,500 | 0.34 KM |