FO
Richborne Terrace, Oval, London, SW8
By Foxtons
£ 620,000
Reviews
3 out of 5 stars
Foxtons says ..
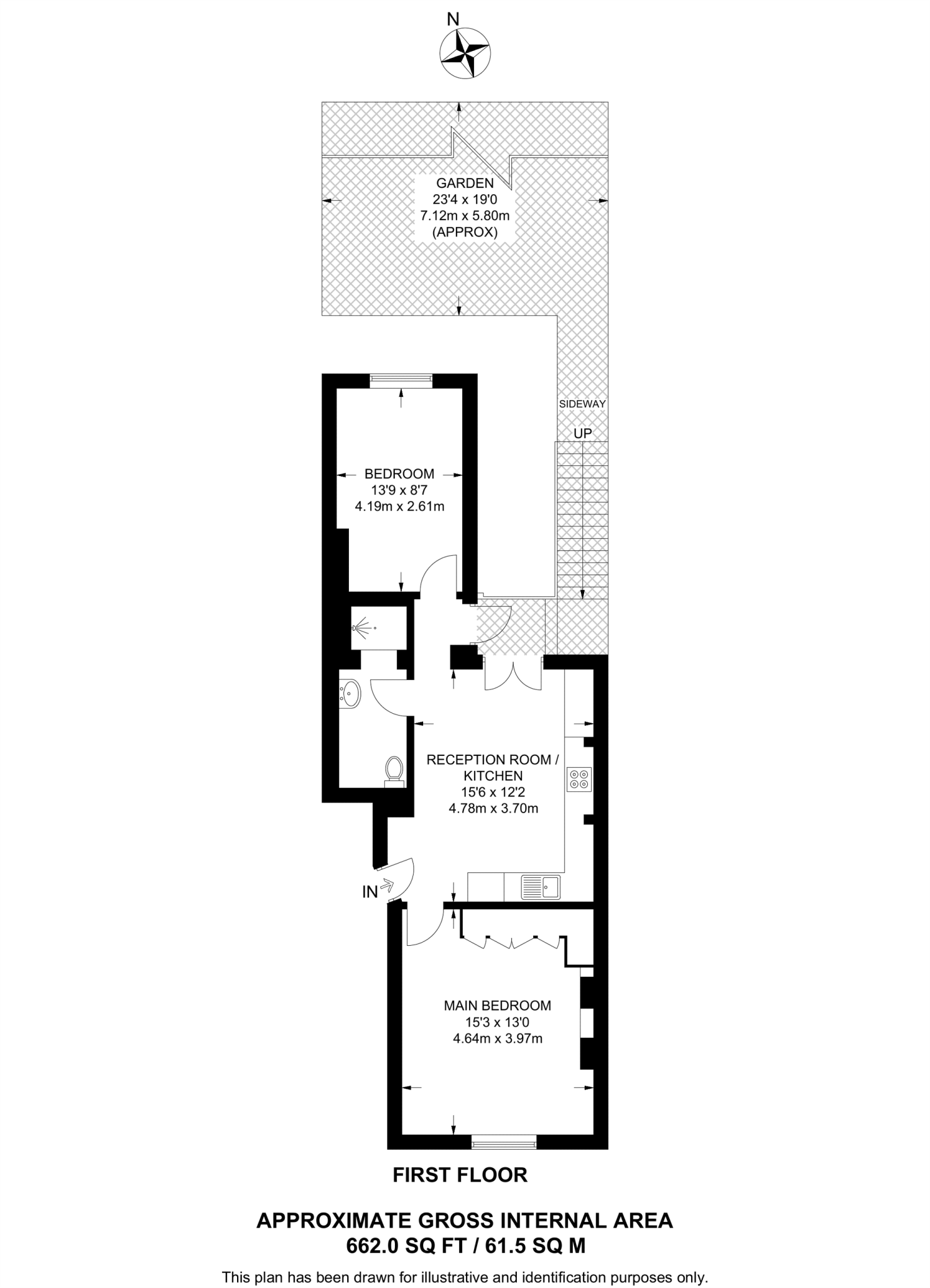
This stunning period property offers 2 double bedrooms, open plan reception with modern integrated kitchen, and gorgeous private garden all finished to a high standard.
Property Oracle says ..
Therefore, we give this property 7 / 10. *Disclaimer: This is our option and does constitute a recommendation or financial advice. Do your own research. *
- Price
- 7
- Condition
- 8
- Location
- 8
- Land
- 7
- Bedrooms
- 2
- Bathrooms
- 1
- Sqft (est)
- 661.98
The heatmap indicates the level of crime in the area. The color of the heatmap indicates the crime severity and recency.
Metrics Year-on-Year
- Average area value
- 1,317,905.00 £Decreased by 10.65 %
- Est sale value
- 1,255,114.08 £Increased by 28.72 %
- Average area rental value
- 2,872.00 £/moDecreased by 3.72 %
- Est letting value
- 2,647.92 £/moIncreased by 100.00 %
- Est rental Yield
- 2.62 %Increased by 7.82 %
- Crime Rate
- 2.00 %Unchanged by 0.00 %
from 1,474,911.00 £
from 975,096.54 £
from 2,983.00 £/mo
from 1,323.96 £/mo
from 2.43 %
from 2.00 %
Agent Activity
Foxtons created the listing.
Nearby Schools
| Name | Type | Ofsted | Distance |
|---|---|---|---|
| Reay Primary School | Foundation School | Outstanding | 0.28 KM |
| Archbishop Tenison'S School | Academy Sponsor Led | 0.38 KM | |
| Ashmole Primary School | Community School | Outstanding | 0.39 KM |
| St Stephens Ce Primary School & Children'S Centre | Children's Centre | 0.58 KM | |
| St Stephen'S Church Of England Primary School | Voluntary Aided School | Good | 0.60 KM |
Images
Nearby Streets
| Name | Average Price | Average Sqft | Distance |
|---|---|---|---|
| Offley Road | £ 0 | 0 | 0.00 KM |
| Offley Road | £ 0 | 0 | 0.00 KM |
| Offley Road | £ 0 | 0 | 0.00 KM |
| Alphabet Mews | £ 0 | 0 | 0.00 KM |
| Vauxhall Street | £ 871,250 | 0 | 0.00 KM |
Nearby Transport
| Name | NLC | TLC | Distance |
|---|---|---|---|
| Vauxhall | 5597 | VXH | 1.02 KM |
| Brixton | 5081 | BRX | 1.80 KM |
| Loughborough Junction | 5082 | LGJ | 2.17 KM |
| Clapham High Street | 5301 | CLP | 2.30 KM |
| Wandsworth Road | 5372 | WWR | 2.59 KM |
Nearby Listings
| Address | Price | Type | Score | Distance |
|---|---|---|---|---|
| Richborne Terrace, Oval, London, SW8 | £ 620,000 | BUY | 7 / 10 | 0.00 KM |
| Top Floor Flat, Richborne Terrace, London, SW8 1AS | £ 450,000 | BUY | 6 / 10 | 0.02 KM |
| Horton House, Richborne Terrace, London, SW8 | £ 325,000 | BUY | 6 / 10 | 0.04 KM |
| Palfrey Place, Oval | £ 675,000 | BUY | 7 / 10 | 0.05 KM |
| Palfrey Place, Oval | £ 600,000 | BUY | 7 / 10 | 0.06 KM |
Nearby Properties
| Address | Price | Distance |
|---|---|---|
| 26 Richborne Terrace | £ 585,000 | 0.02 KM |
| 30 Richborne Terrace | £ 417,500 | 0.02 KM |
| 12 Richborne Terrace | £ 843,000 | 0.02 KM |
| 18 Richborne Terrace | £ 2,200,000 | 0.02 KM |
| 26a Richborne Terrace | £ 325,000 | 0.02 KM |