Macron Place, Hackney Downs, London, E8
By Foxtons
£ 700,000
Reviews
3 out of 5 stars
Foxtons says ..
A lovely 3 bedroom flat situated on the ground floor of a of a secure gated development boasting ample outside space and an excellent Hackney Downs location.
Property Oracle says ..
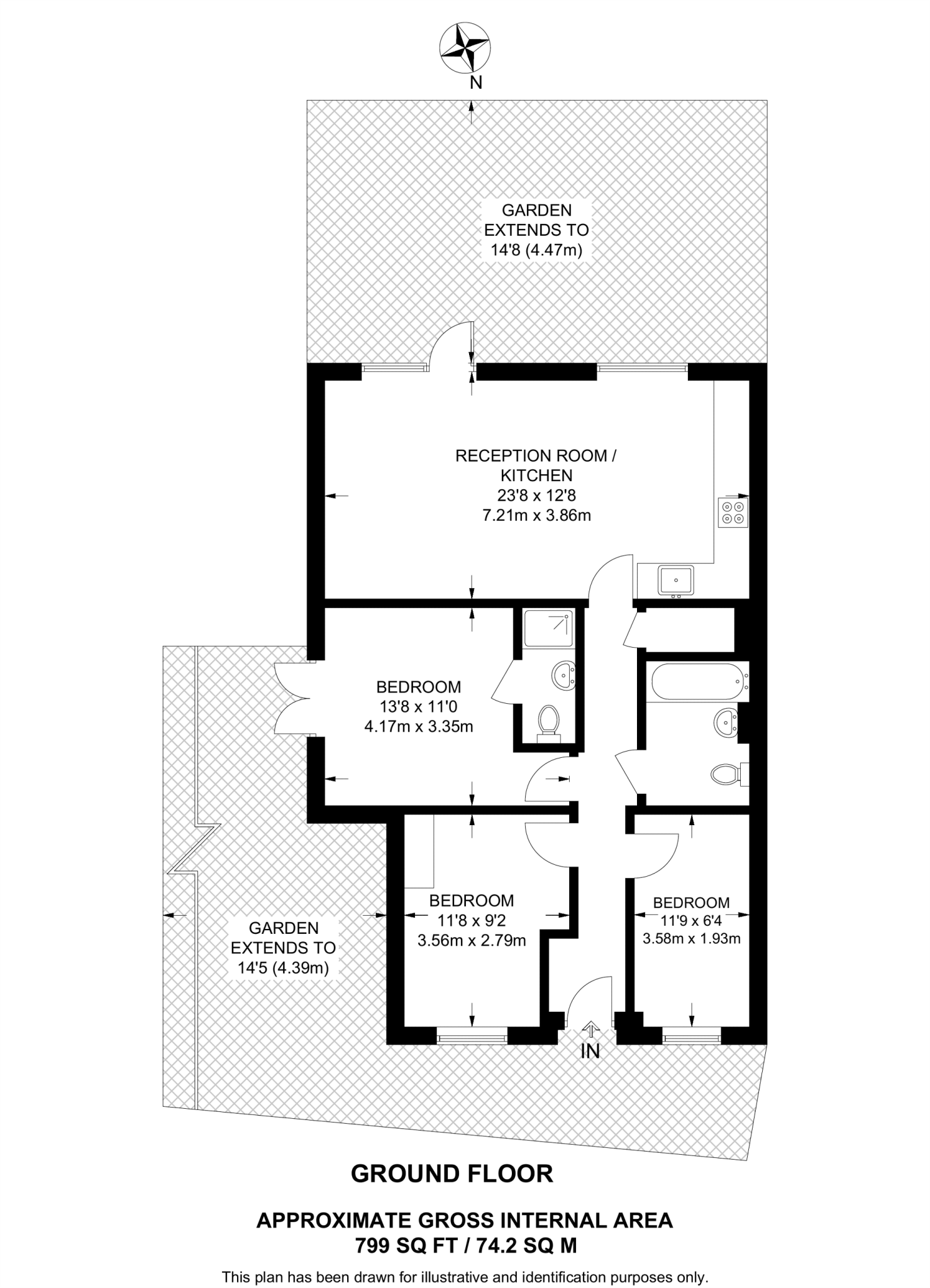
This three-bedroom, two-bathroom flat is located in Macron Place, Hackney Downs, London, E8. The property benefits from being close to Hackney Downs Overground station (0.15km), providing convenient access to central London. Several well-regarded schools are also within a reasonable distance, including Mossbourne Parkside Academy (Good Ofsted rating) and Mossbourne Community Academy (Outstanding Ofsted rating). The flat itself appears to be in good condition based on the provided images, with a modern kitchen and updated bathrooms. The images show a small, paved patio garden. While the list price of £700,000 is higher than the average price for the area (£545,333), the property’s size (799 sqft) and modern condition may justify the premium compared to other nearby properties. The lack of plot size data for comparable properties makes a precise price comparison difficult.
Therefore, we give this property 6 / 10. *Disclaimer: This is our option and does constitute a recommendation or financial advice. Do your own research. *
- Price
- 7
- Condition
- 8
- Location
- 9
- Land
- 3
- Bedrooms
- 3
- Bathrooms
- 2
- Sqft (est)
- 799.00
The heatmap indicates the level of crime in the area. The color of the heatmap indicates the crime severity and recency.
Metrics Year-on-Year
- Average area value
- 440,000.00 £Decreased by 31.24 %
- Est sale value
- 609,637.00 £Increased by 0.26 %
- Average area rental value
- 2,681.00 £/moIncreased by 3.51 %
- Est letting value
- 3,196.00 £/moIncreased by 33.33 %
- Est rental Yield
- 7.31 %Increased by 50.41 %
- Crime Rate
- 5.00 %Unchanged by 0.00 %
Agent Activity
Foxtons created the listing.
Nearby Schools
| Name | Type | Ofsted | Distance |
|---|---|---|---|
| Mossbourne Parkside Academy | Academy Converter | Good | 0.16 KM |
| Brook Satellite Children'S Centre | Children's Centre Linked Site | 0.16 KM | |
| Mossbourne Community Academy | Academy Sponsor Led | Outstanding | 0.45 KM |
| Gayhurst Community School | Community School | Good | 0.60 KM |
| Stormont House School | Community Special School | Outstanding | 0.61 KM |
Images
Nearby Streets
| Name | Average Price | Average Sqft | Distance |
|---|---|---|---|
| Spurstowe Road | £ 0 | 0 | 0.00 KM |
| Greenwood Road | £ 700,000 | 0 | 0.00 KM |
| Hillman Street | £ 625,000 | 0 | 0.00 KM |
| Casterton Street | £ 700,000 | 0 | 0.00 KM |
| Tolsford Road | £ 0 | 0 | 0.00 KM |
Nearby Transport
| Name | NLC | TLC | Distance |
|---|---|---|---|
| Hackney Downs | 6867 | HAC | 0.15 KM |
| Hackney Central | 6977 | HKC | 0.61 KM |
| London Fields | 6966 | LOF | 0.83 KM |
| Rectory Road | 6967 | REC | 1.42 KM |
| Dalston Junction | 1443 | DLJ | 1.51 KM |
Nearby Listings
| Address | Price | Type | Score | Distance |
|---|---|---|---|---|
| Macron Place, Hackney Downs, London, E8 | £ 700,000 | BUY | 6 / 10 | 0.00 KM |
| Cottrill Gardens, Marcon Place, London, E8 | £ 499,995 | BUY | 7 / 10 | 0.03 KM |
| Marcon Place, Hackney | £ 350,000 | BUY | 6 / 10 | 0.06 KM |
| Marcon Place, Hackney | £ 550,000 | BUY | 6 / 10 | 0.08 KM |
| Marcon Place, Hackney | £ 525,000 | BUY | 6 / 10 | 0.08 KM |
Nearby Properties
| Address | Price | Distance |
|---|---|---|
| 8 Marcon Place | £ 395,000 | 0.07 KM |
| 38 Marcon Place | £ 325,000 | 0.07 KM |
| 28 Marcon Place | £ 325,000 | 0.10 KM |
| 212a Dalston Lane | £ 585,500 | 0.10 KM |
| 214 Dalston Lane | £ 491,000 | 0.11 KM |