Fairy Cross, Bideford
ST

Fairy Cross, Bideford

By Stags

£ 500,000

Reviews

3 out of 5 stars

Stags says ..

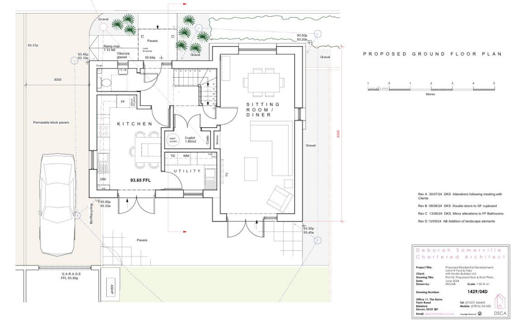
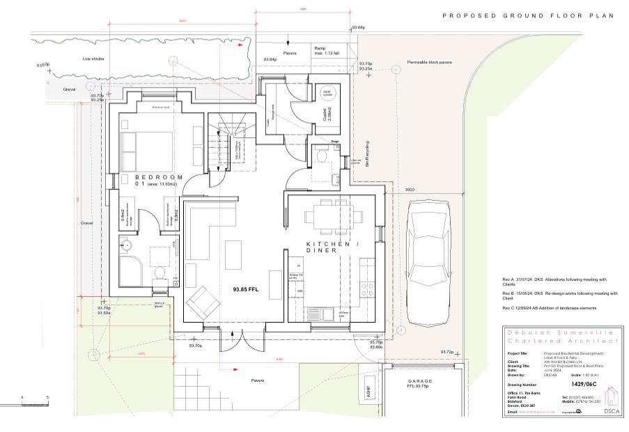
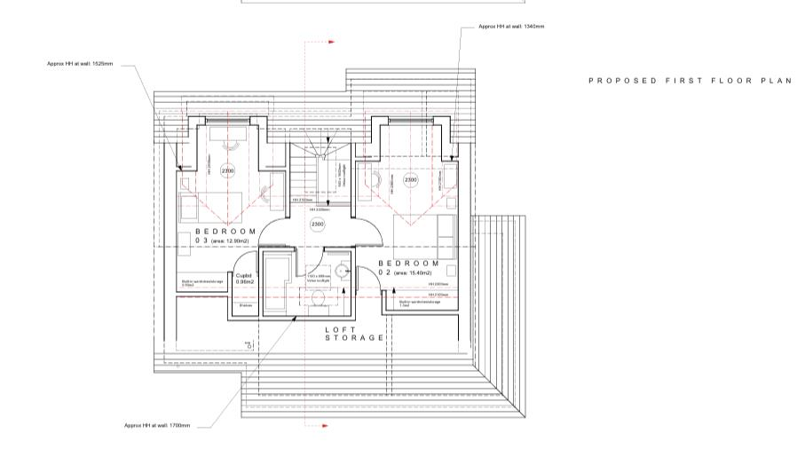
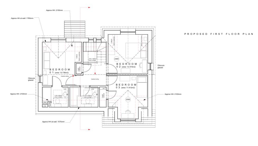
A superb development site with full planning permission granted for the erection of three detached dwellings set in a semi-rural position with excellent access to the North Devon Link Road, offering convenient connections to Bideford, Barnstaple and beyond.

Property Oracle says ..

The property is listed as land for sale with planning permission for a detached house with a garage and garden. The land appears to be a substantial plot, suitable for development. The asking price of £500,000 is higher than the average property price in the area, but this is for a plot of land with development potential. Architectural drawings suggest potential for a modern detached house with a garage and garden. The drawings also indicate the inclusion of solar panels.

Therefore, we give this property 7 / 10. *Disclaimer: This is our option and does constitute a recommendation or financial advice. Do your own research. *

Price
5
Condition
10
Location
6
Land
7
Bedrooms
0
Bathrooms
0

The heatmap indicates the level of crime in the area. The color of the heatmap indicates the crime severity and recency.

Metrics Year-on-Year

Average area value
346,250.00 £
Increased by 44.46 %
from 239,681.00 £
Average area rental value
785.00 £/mo
Decreased by 22.05 %
from 1,007.00 £/mo
Est rental Yield
2.72 %
Decreased by 46.03 %
from 5.04 %
Crime Rate
106.00 %
Unchanged by 0.00 %
from 106.00 %

Agent Activity

  • Stags created the listing.

Nearby Schools

NameTypeOfstedDistance
St Helen'S Church Of England SchoolAcademy Converter3.81 KM
Parkham Primary SchoolFoundation SchoolGood4.14 KM
Buckland Brewer Primary SchoolFoundation SchoolGood4.63 KM
Bideford CollegeAcademy Sponsor LedRequires improvement6.51 KM
Kingsley SchoolOther Independent School6.85 KM

Images

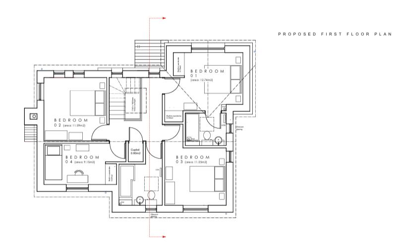
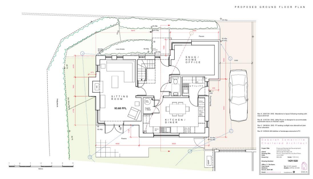
Boundaries v3.jpg 1429 3d Visualisation 02 (1).jpg 1429 3d Visualisation 05.jpg 1429 3d Visualisation 08.jpg 1429 3d Visualisation 01 (1).jpg 1429 3d Visualisation 03.jpg DJI_0803.jpg Plot 1 Plot 2 Plot 2 1429 3d Visualisation 10.jpg Boundaries v2.jpg Plot 1 Plot 1 Plot 1 Plot 2 Plot 3 Site Plan-page-001.jpg Plot 1 Plot 2 Plot 2 Plot 3 Plot 3 Plot 3 Plot 3 Plot 1 ground floor plan.png Plot 1 First floor plan.png Plot 1 roof plan.png Plot 2 ground floor plan.png Plot 2 first floor plan.png Plot 2 roof plan.png Plot 3 ground floor plan.png Plot 3 first floor plan.png Plot 3 roof plan.png

Nearby Streets

NameAverage PriceAverage SqftDistance
Almshouses £ 000.00 KM
Church Park £ 000.00 KM
Woodtown £ 519,98300.00 KM
Merrymeeting £ 000.00 KM

Nearby Listings

AddressPriceTypeScoreDistance
Fairy Cross, Bideford £ 500,000BUY7 / 100.00 KM
Portledge Place, Fairy Cross £ 395,000BUY7 / 100.12 KM
Portledge Place, Fairy Cross, Bideford, Devon, EX39 £ 221,000BUY6 / 100.13 KM
Portledge Place, Fairy Cross, Bideford, Devon, EX39 £ 330,000BUY6 / 100.14 KM
Fairy Cross, Bideford, Devon, EX39 £ 375,000BUY6 / 100.55 KM

Nearby Properties

AddressPriceDistance
11 Portledge Place £ 240,0000.13 KM
Rosebank £ 255,0000.13 KM
19 Portledge Place £ 195,0000.14 KM
5 Portledge Place £ 165,0000.14 KM
2 Portledge Place £ 174,0000.14 KM