Foxhill Road, Reading, RG1
By AH Lansley Residential
£ 325,000
Reviews
3 out of 5 stars
AH Lansley Residential says ..
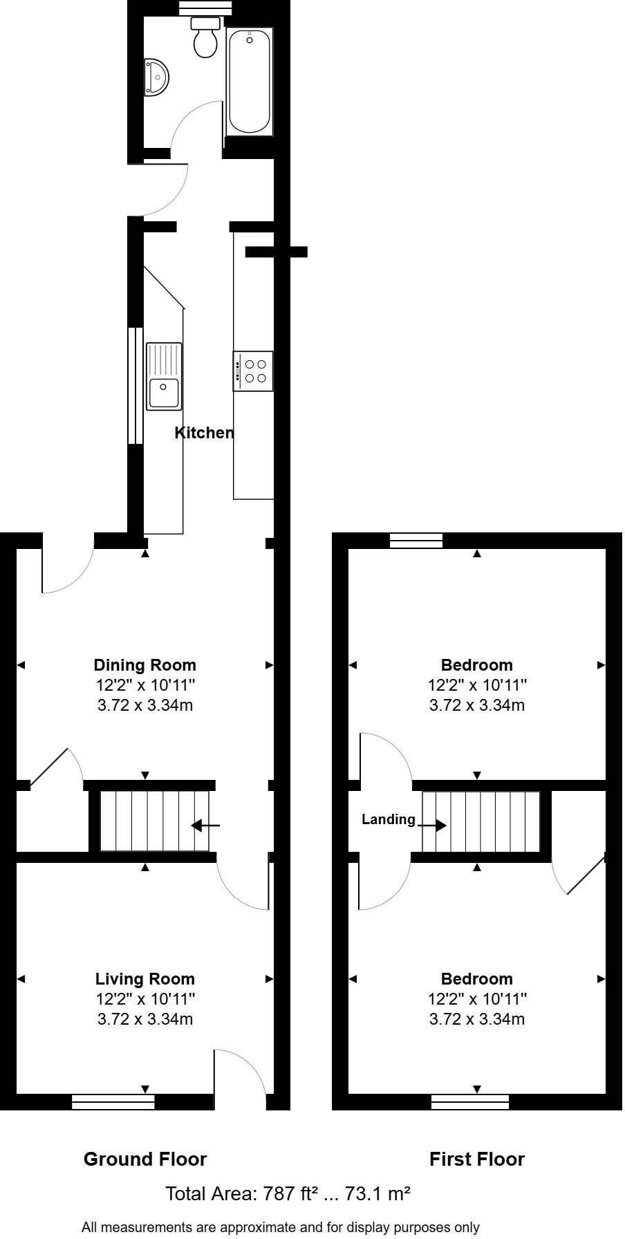
Lansley - Offered to the market with no onward chain complications is this, in our opinion, well-presented terraced home located in the sought University area. The internal accommodation comprises two separate reception rooms, modern kitchen, three piece bathroom and two double bedrooms whilst ex...
Property Oracle says ..
Therefore, we give this property 7 / 10. *Disclaimer: This is our option and does constitute a recommendation or financial advice. Do your own research. *
- Price
- 9
- Condition
- 7
- Location
- 8
- Land
- 7
- Bedrooms
- 2
- Bathrooms
- 1
- Sqft (est)
- 787.00
The heatmap indicates the level of crime in the area. The color of the heatmap indicates the crime severity and recency.
Metrics Year-on-Year
- Average area value
- 429,375.00 £Increased by 2.76 %
- Est sale value
- 519,420.00 £Increased by 67.94 %
- Average area rental value
- 1,283.00 £/moIncreased by 0.16 %
- Est letting value
- 787.00 £/moUnchanged by 0.00 %
- Est rental Yield
- 3.59 %Decreased by 2.45 %
- Crime Rate
- 7.00 %Unchanged by 0.00 %
from 417,832.00 £
from 309,291.00 £
from 1,281.00 £/mo
from 787.00 £/mo
from 3.68 %
from 7.00 %
Agent Activity
AH Lansley Residential created the listing.
Nearby Schools
| Name | Type | Ofsted | Distance |
|---|---|---|---|
| Redlands Primary School | Community School | Good | 0.12 KM |
| St Joseph'S College | Other Independent School | 0.18 KM | |
| Maiden Erlegh School In Reading | Free Schools | Good | 0.77 KM |
| University Of Reading | Higher Education Institutions | 0.77 KM | |
| Utc Reading | University Technical College | Outstanding | 0.77 KM |
Images
Nearby Streets
| Name | Average Price | Average Sqft | Distance |
|---|---|---|---|
| Lydford Road | £ 0 | 0 | 0.00 KM |
| Oaklands | £ 223,333 | 0 | 0.00 KM |
| Wokingham Road | £ 0 | 0 | 0.00 KM |
| Villa Mews | £ 0 | 0 | 0.00 KM |
| King's Road | £ 0 | 0 | 0.00 KM |
Nearby Transport
| Name | NLC | TLC | Distance |
|---|---|---|---|
| Reading | 3149 | RDG | 2.98 KM |
| Earley | 5694 | EAR | 3.33 KM |
| Reading West | 3160 | RDW | 4.80 KM |
| Winnersh Triangle | 5698 | WTI | 6.32 KM |
| Winnersh | 5697 | WNS | 8.04 KM |
Nearby Listings
| Address | Price | Type | Score | Distance |
|---|---|---|---|---|
| Foxhill Road, Reading, RG1 | £ 325,000 | BUY | 7 / 10 | 0.00 KM |
| Foxhill Road, Reading, RG1 | £ 335,000 | BUY | 6 / 10 | 0.00 KM |
| Foxhill Road, Reading, RG1 | £ 300,000 | BUY | 7 / 10 | 0.04 KM |
| Foxhill Road, Reading, Berkshire, RG1 | £ 300,000 | BUY | Unknown | 0.04 KM |
| Foxhill Road, Reading, RG1 | £ 325,000 | BUY | 6 / 10 | 0.04 KM |
Nearby Properties
| Address | Price | Distance |
|---|---|---|
| 64 Foxhill Road | £ 189,500 | 0.03 KM |
| 54 Foxhill Road | £ 313,000 | 0.03 KM |
| 5 Foxhill Road | £ 144,250 | 0.03 KM |
| 41 Foxhill Road | £ 200,000 | 0.03 KM |
| 15 Foxhill Road | £ 50,750 | 0.03 KM |