Burlington Road, Portishead, Bristol, BS20
By Reeds Rains
£ 265,000
Reviews
3 out of 5 stars
Reeds Rains says ..
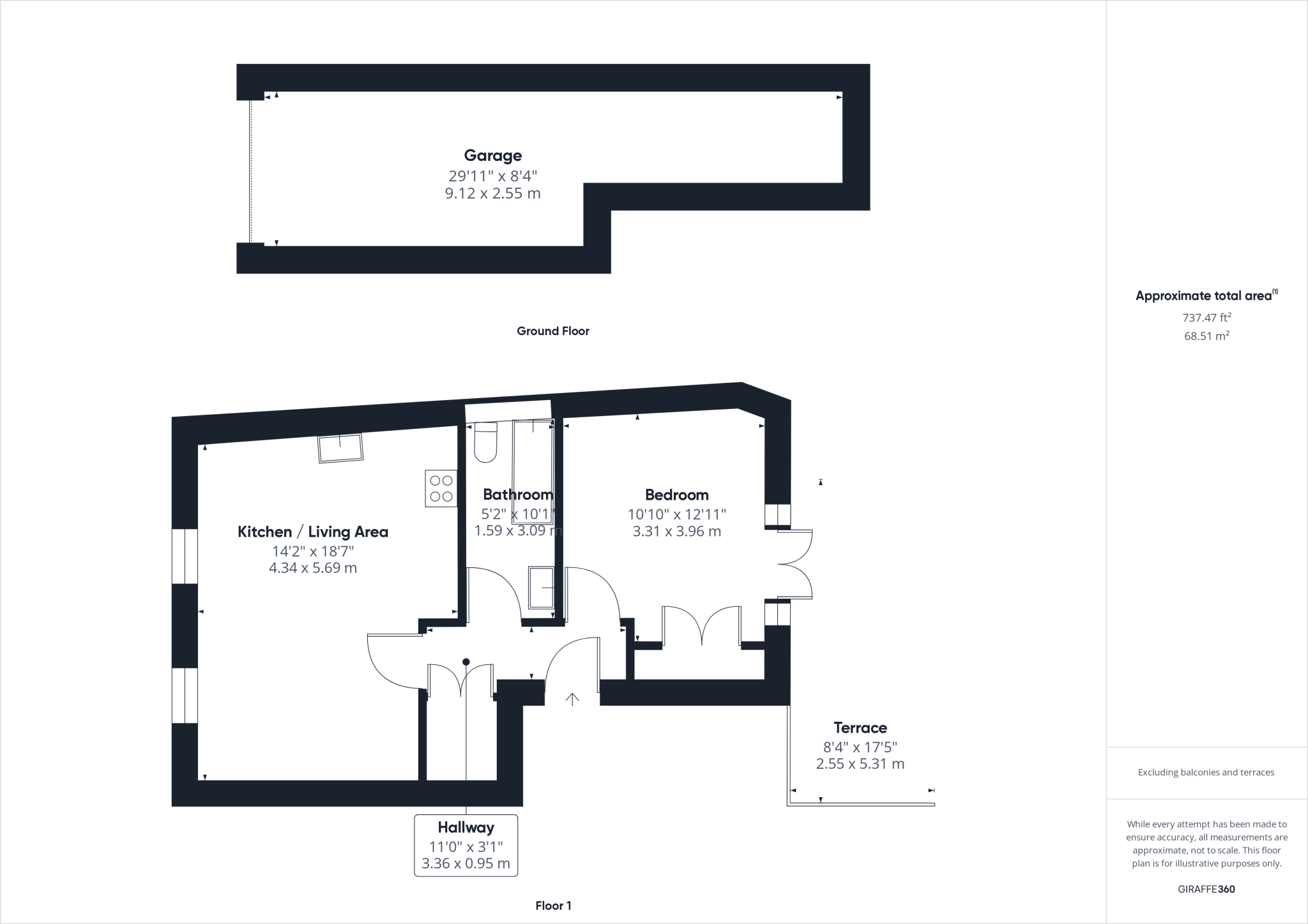
For sale with NO ONWARD CHAIN, a rare opportunity to acquire a spacious one bedroom apartment overlooking Jubilee Park, offering a private garden, garage and off street parking. Perfect for first time buyers or investors, the apartment has been wonderfully modernised by its current owners, with a...
Property Oracle says ..
This is a one-bedroom property on Burlington Road, Portishead. The property appears to be in good condition, with a modern interior and a small garden. The location is desirable, with good schools and local amenities nearby. The price seems reasonable for the area and the property type. It benefits from nearby transportation links and is located in a popular residential area. The property includes a garage.
Therefore, we give this property 7 / 10. *Disclaimer: This is our option and does constitute a recommendation or financial advice. Do your own research. *
- Price
- 7
- Condition
- 8
- Location
- 7
- Land
- 6
- Bedrooms
- 1
- Bathrooms
- 1
- Sqft (est)
- 890.22
The heatmap indicates the level of crime in the area. The color of the heatmap indicates the crime severity and recency.
Metrics Year-on-Year
- Average area value
- 881,250.00 £Increased by 10.74 %
- Est sale value
- 614,251.80 £Increased by 54.71 %
- Average area rental value
- 1,300.00 £/moDecreased by 43.36 %
- Est letting value
- 890.22 £/moUnchanged by 0.00 %
- Est rental Yield
- 1.77 %Decreased by 48.84 %
- Crime Rate
- 7.00 %Unchanged by 0.00 %
Agent Activity
Reeds Rains created the listing.
Nearby Schools
| Name | Type | Ofsted | Distance |
|---|---|---|---|
| Portishead Primary School | Academy Converter | Good | 0.37 KM |
| St Peter'S Church Of England Primary School | Academy Converter | Good | 1.29 KM |
| Trinity Anglican-Methodist Primary School | Academy Converter | Good | 1.38 KM |
| St Joseph'S Catholic Primary School | Voluntary Aided School | Good | 1.72 KM |
| Gordano School | Academy Converter | Outstanding | 2.00 KM |
Images
Nearby Streets
| Name | Average Price | Average Sqft | Distance |
|---|---|---|---|
| Kingsway Park | £ 155,706 | 0 | 0.00 KM |
| Portishead Quays | £ 320,000 | 0 | 0.00 KM |
| Wyndham Way | £ 210,000 | 0 | 0.00 KM |
| High Street | £ 0 | 0 | 0.00 KM |
| High Street | £ 0 | 0 | 0.00 KM |
Nearby Transport
| Name | NLC | TLC | Distance |
|---|---|---|---|
| Avonmouth | 3200 | AVN | 7.04 KM |
| St Andrews Road | 3252 | SAR | 7.70 KM |
| Nailsea And Backwell | 3389 | NLS | 8.12 KM |
| Shirehampton | 3206 | SHH | 9.24 KM |
Nearby Listings
| Address | Price | Type | Score | Distance |
|---|---|---|---|---|
| Burlington Road, Portishead, Bristol, BS20 | £ 265,000 | BUY | 7 / 10 | 0.00 KM |
| Burlington Road, Portishead | £ 215,000 | BUY | 6 / 10 | 0.04 KM |
| Burlington Road, Portishead | £ 215,000 | BUY | 5 / 10 | 0.04 KM |
| Burlington Road, Portishead, North Somerset, BS20 | £ 539,000 | BUY | 7 / 10 | 0.05 KM |
| Burlington Road, Portishead, North Somerset | £ 550,000 | BUY | 8 / 10 | 0.05 KM |
Nearby Properties
| Address | Price | Distance |
|---|---|---|
| 49 Burlington Road | £ 461,400 | 0.04 KM |
| 67 Burlington Road | £ 220,000 | 0.04 KM |
| 109 Burlington Road | £ 450,000 | 0.04 KM |
| 51 Burlington Road | £ 227,000 | 0.04 KM |
| 69 Burlington Road | £ 240,000 | 0.04 KM |