Bellmans Croft, Copmanthorpe, YO23
By Wishart Estate Agents
£ 320,000
Reviews
3 out of 5 stars
Wishart Estate Agents says ..
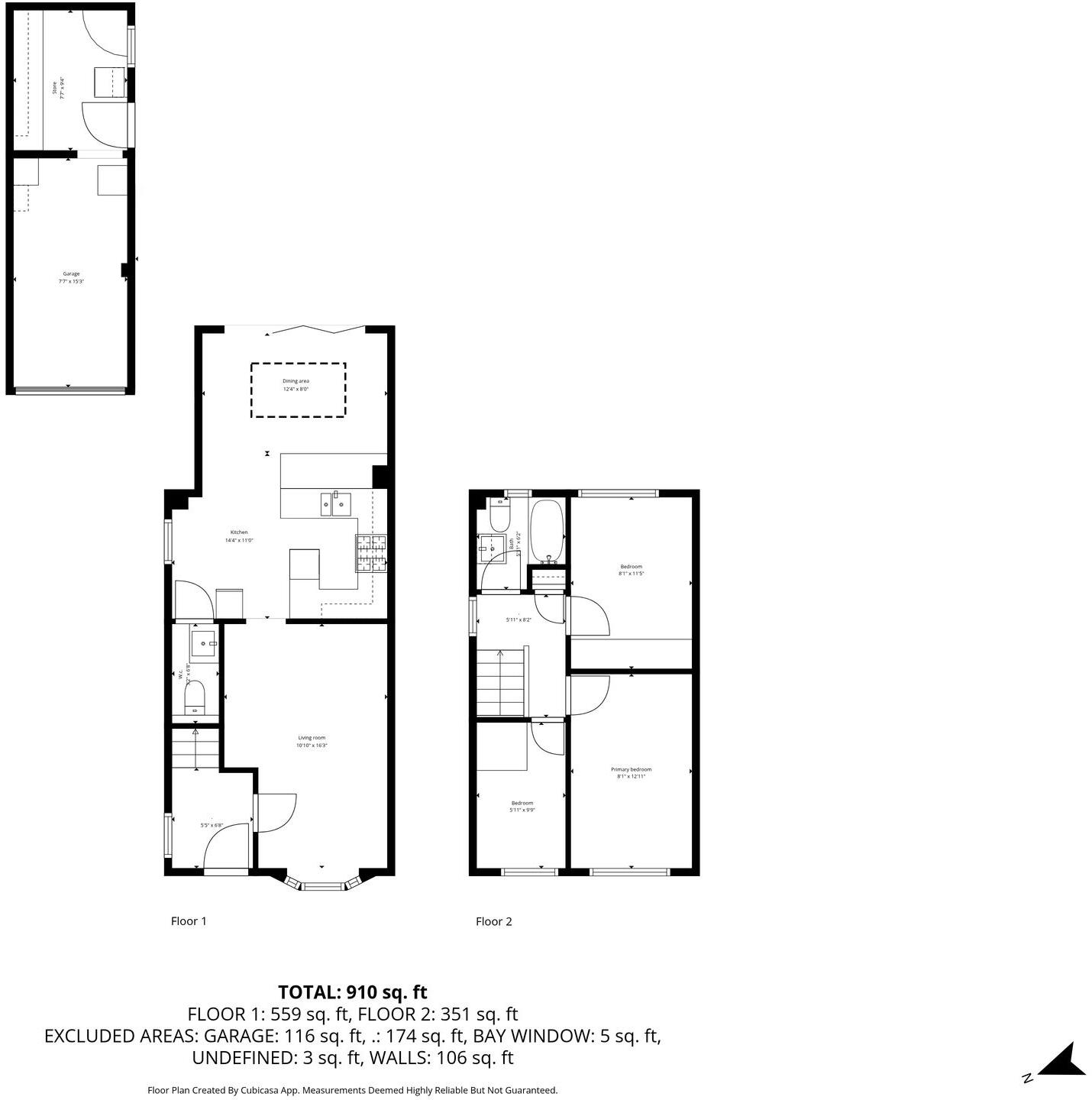
Three bedroom semi-detached offered in turn-key condition. Featuring an extended garage with utility room, ground-floor WC, modern open-plan kitchen, recently fitted bathroom and enclosed rear garden.
Property Oracle says ..
This is a well-presented, modern semi-detached property in the village of Copmanthorpe. The property benefits from a modern kitchen and bathroom, and a reasonable sized garden. Copmanthorpe is a popular village with good access to York and local amenities.
Therefore, we give this property 7 / 10. *Disclaimer: This is our option and does constitute a recommendation or financial advice. Do your own research. *
- Price
- 7
- Condition
- 8
- Location
- 7
- Land
- 6
- Bedrooms
- 3
- Bathrooms
- 1
The heatmap indicates the level of crime in the area. The color of the heatmap indicates the crime severity and recency.
Metrics Year-on-Year
- Average area value
- 591,875.00 £Increased by 5.13 %
- Average area rental value
- 1,194.00 £/moDecreased by 3.63 %
- Est rental Yield
- 2.42 %Decreased by 8.33 %
- Crime Rate
- 96.00 %Unchanged by 0.00 %
Agent Activity
Wishart Estate Agents created the listing.
Nearby Schools
| Name | Type | Ofsted | Distance |
|---|---|---|---|
| Copmanthorpe Primary School | Community School | Good | 0.33 KM |
| Askham Bryan College | Further Education | Good | 2.67 KM |
| Woodthorpe Primary School | Academy Converter | 2.77 KM | |
| York College | Further Education | Outstanding | 3.72 KM |
| York High School | Academy Sponsor Led | 4.00 KM |
Images
Nearby Streets
| Name | Average Price | Average Sqft | Distance |
|---|---|---|---|
| Saint Giles Way | £ 290,000 | 0 | 0.00 KM |
| Station Road | £ 325,000 | 0 | 0.00 KM |
| Church Street | £ 425,000 | 0 | 0.00 KM |
| Fletcher's Croft | £ 0 | 0 | 0.00 KM |
| Saint Nicholas Crescent | £ 425,000 | 0 | 0.00 KM |
Nearby Transport
| Name | NLC | TLC | Distance |
|---|---|---|---|
| Poppleton | 8254 | POP | 7.01 KM |
| York | 8263 | YRK | 7.02 KM |
Nearby Listings
| Address | Price | Type | Score | Distance |
|---|---|---|---|---|
| Bellmans Croft, Copmanthorpe, YO23 | £ 320,000 | BUY | 7 / 10 | 0.00 KM |
| Bellmans Croft, Copmanthorpe, YO23 | £ 310,000 | BUY | Unknown | 0.01 KM |
| Barons Crescent, Copmanthorpe, YO23 | £ 485,000 | BUY | Unknown | 0.11 KM |
| Fairfax Croft, Copmanthorpe, York | £ 230,000 | BUY | 8 / 10 | 0.14 KM |
| Reygate Grove, Copmanthorpe, York | £ 250,000 | BUY | 6 / 10 | 0.15 KM |
Nearby Properties
| Address | Price | Distance |
|---|---|---|
| 14 Bellmans Croft | £ 270,000 | 0.01 KM |
| 11 Bellmans Croft | £ 285,000 | 0.01 KM |
| 5 Bellmans Croft | £ 200,000 | 0.01 KM |
| 2 Bellmans Croft | £ 305,000 | 0.01 KM |
| 10 Bellmans Croft | £ 180,000 | 0.01 KM |